Villa en venta en Teulada zona Moraira
Datos básicos
- IA-99261
- 1.850.000 €
- 487 m2(3.799 €/m2)
- Alicante
- Teulada
- Moraira
Distribución e instalaciones
- 3
- 3
Varios
- Sí
Certificado energético
Detalles
1.850.000 €
Esta Villa es una de las seis residencias exclusivas del proyecto residencial Bay View, diseñado para ofrecer lujo, privacidad y conexión con el entorno natural. Este modelo combina la arquitectura contemporánea con un toque mediterráneo, ofreciendo vistas panorámicas, un diseño excepcional y funcionalidad.
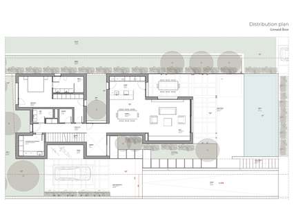
La planta baja de la villa cuenta con un amplio salón, comedor, cocina, un dormitorio principal con baño en suite y vestidor, así como un aseo de invitados. La zona de estar conecta a la perfección con el exterior a través de amplias terrazas cubiertas, una piscina privada y hermosos jardines mediterráneos.
La primera planta incluye dos dormitorios en suite con vestidores, que ofrecen unas vistas impresionantes.
Especificaciones
PARCELA: 1.000,00m².
CASA: 319,41m²
TERRAZA: 83,72m²
PORCHE SOBRE PARKING - Opcional: 40,11m²
PISCINA: 10x4m
ORIENTACIÓN: Sur - Este
No dude en contactar con nosotros.
La planta baja de la villa cuenta con un amplio salón, comedor, cocina, un dormitorio principal con baño en suite y vestidor, así como un aseo de invitados. La zona de estar conecta a la perfección con el exterior a través de amplias terrazas cubiertas, una piscina privada y hermosos jardines mediterráneos.
La primera planta incluye dos dormitorios en suite con vestidores, que ofrecen unas vistas impresionantes.
Especificaciones
PARCELA: 1.000,00m².
CASA: 319,41m²
TERRAZA: 83,72m²
PORCHE SOBRE PARKING - Opcional: 40,11m²
PISCINA: 10x4m
ORIENTACIÓN: Sur - Este
No dude en contactar con nosotros.
- 14/10/2025
- 487 m2
- 3.798,77 €/m2
- 3
- 3
Immo Toro
Contactar
Compartir
Tu opinión








