Villa en venta en Teulada zona Moraira
Datos básicos
- CH3348
- 2.264.000 €
- Alicante
- Teulada
- Moraira
Distribución e instalaciones
- 4
- 4
Varios
- Sí
Certificado energético
Detalles
2.264.000 €
Proyecto: Moderna villa de lujo en Moraira, a tan solo un paseo del centro, servicios y playas.
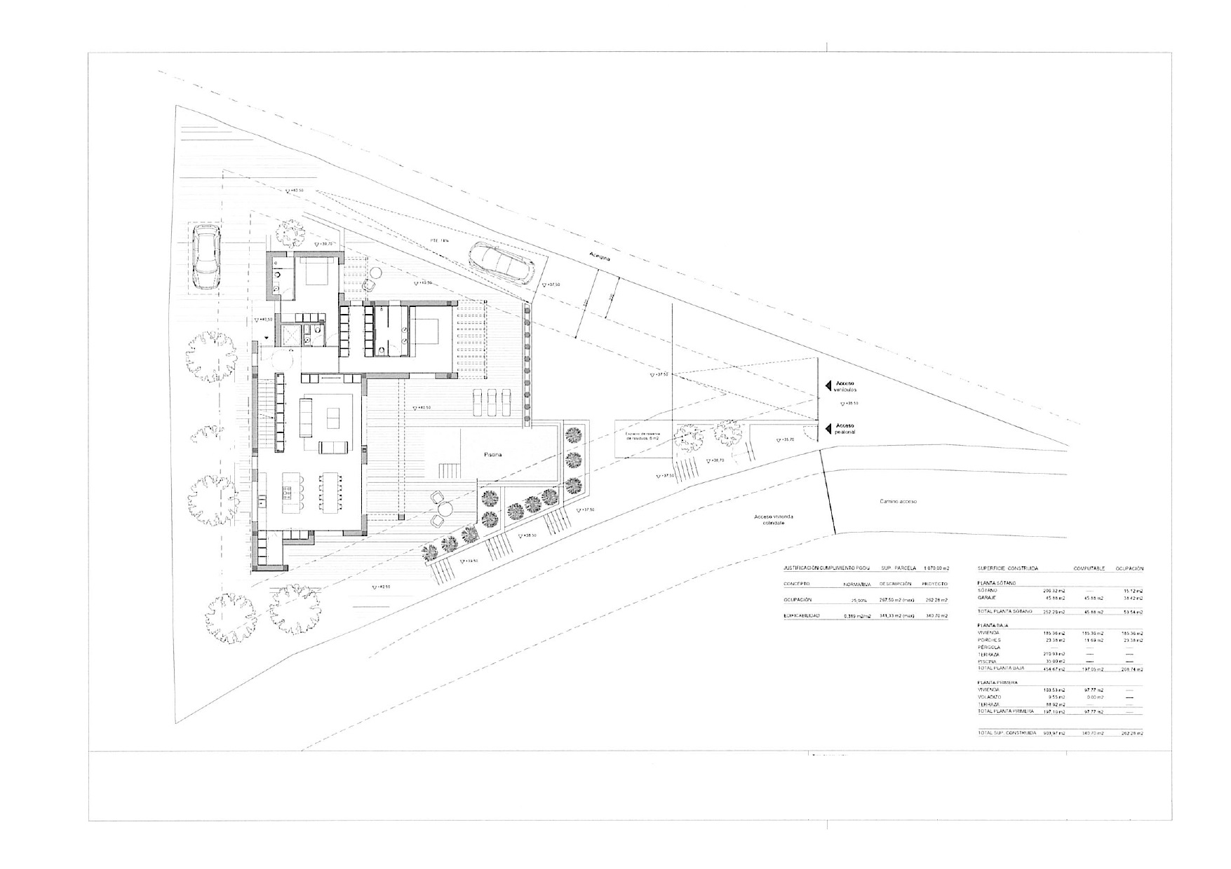
La vivienda consta de 3 plantas y se distribuyen de la siguiente manera:
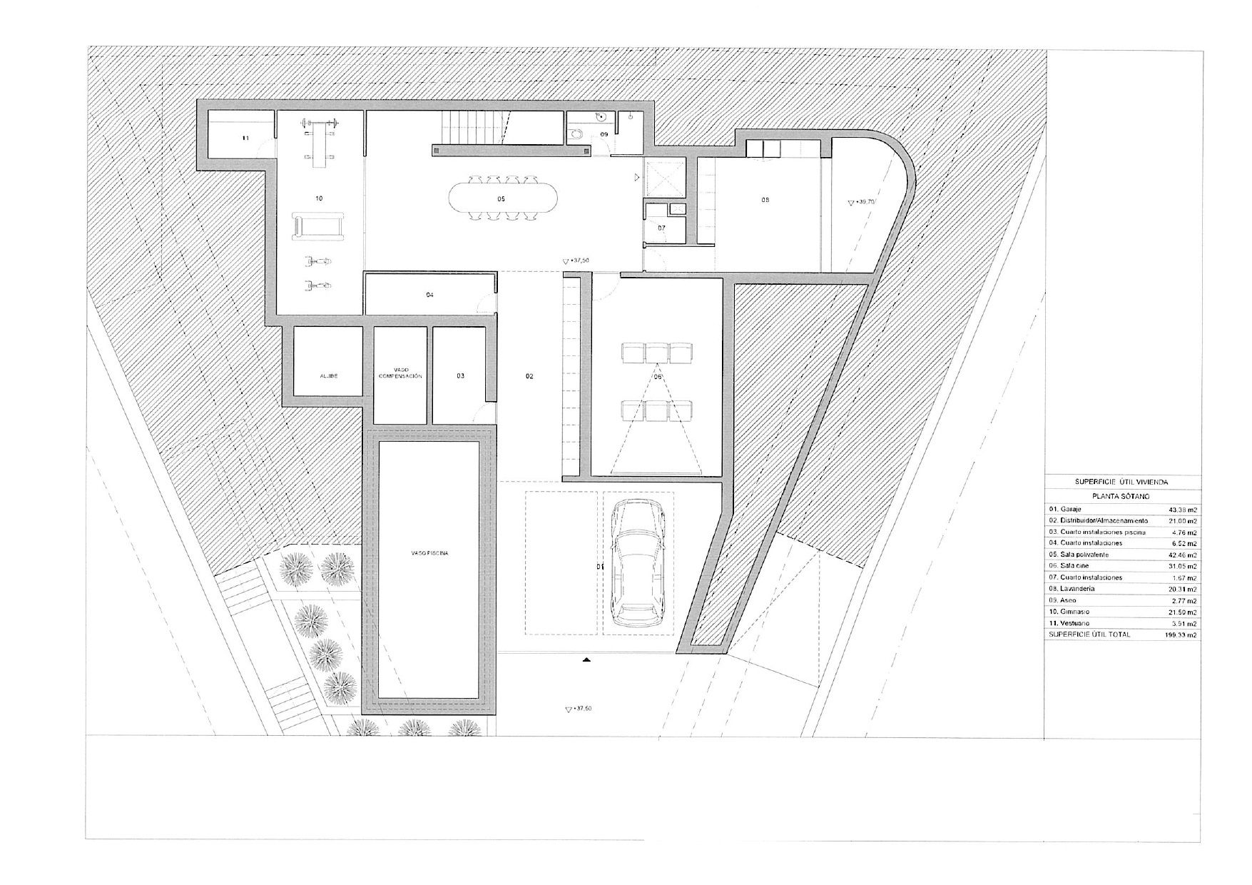
Planta sótano: garaje, distribuidor, cuarto de instalaciones para piscina, cuarto de instalaciones para la vivienda, sala polivalente y aseo de cortesía, zona habilitada para gimnasio con vestidor, sala de cine, un amplio lavadero, otro cuarto de instalaciones y ascensor.
Planta baja: acceso principal a la vivienda, hall, distribuidor, amplio salón-comedor con salida a porche y a terraza piscina, gran cocina abierta con isla y despensa, equipada con electrodomésticos de alta gama, 2 dormitorios dobles, ambos con sus respectivos en-suite baños, uno de ellos con vestidor y el otro con armarios empotrados.
Planta alta: distribuidor, amplia zona que se puede aprovechar como oficina, 2 dormitorios dobles con armarios empotrados y ambos con salida a terraza.
Equipado con grandes ventanas de aluminio con cristal doblede seguridad y cámara de aire, que permiten la entrada de luz natural,persianas eléctricas, calefacción por suelo radiante con bomba de calor yaire acondicionado por conductos.
El exterior cuenta con piscina desbordante, amplio jardín acabado con especies vegetales autóctonas yriego automático, parking para 2 vehículos, puerta de entrada automática para vehículos y acceso peatonal.
La vivienda consta de 3 plantas y se distribuyen de la siguiente manera:
Planta sótano: garaje, distribuidor, cuarto de instalaciones para piscina, cuarto de instalaciones para la vivienda, sala polivalente y aseo de cortesía, zona habilitada para gimnasio con vestidor, sala de cine, un amplio lavadero, otro cuarto de instalaciones y ascensor.
Planta baja: acceso principal a la vivienda, hall, distribuidor, amplio salón-comedor con salida a porche y a terraza piscina, gran cocina abierta con isla y despensa, equipada con electrodomésticos de alta gama, 2 dormitorios dobles, ambos con sus respectivos en-suite baños, uno de ellos con vestidor y el otro con armarios empotrados.
Planta alta: distribuidor, amplia zona que se puede aprovechar como oficina, 2 dormitorios dobles con armarios empotrados y ambos con salida a terraza.
Equipado con grandes ventanas de aluminio con cristal doblede seguridad y cámara de aire, que permiten la entrada de luz natural,persianas eléctricas, calefacción por suelo radiante con bomba de calor yaire acondicionado por conductos.
El exterior cuenta con piscina desbordante, amplio jardín acabado con especies vegetales autóctonas yriego automático, parking para 2 vehículos, puerta de entrada automática para vehículos y acceso peatonal.
- 15/01/2025
- 4
- 4
Ferrando
Contactar
Compartir
Tu opinión



















