Villa en venta en Teulada zona Moraira
Datos básicos
- C15ZH-41457
- 2.950.000 €
- 517 m2(5.706 €/m2)
- Alicante
- Teulada
- Moraira
Distribución e instalaciones
- 4
- 4
Certificado energético
Detalles
2.950.000 €
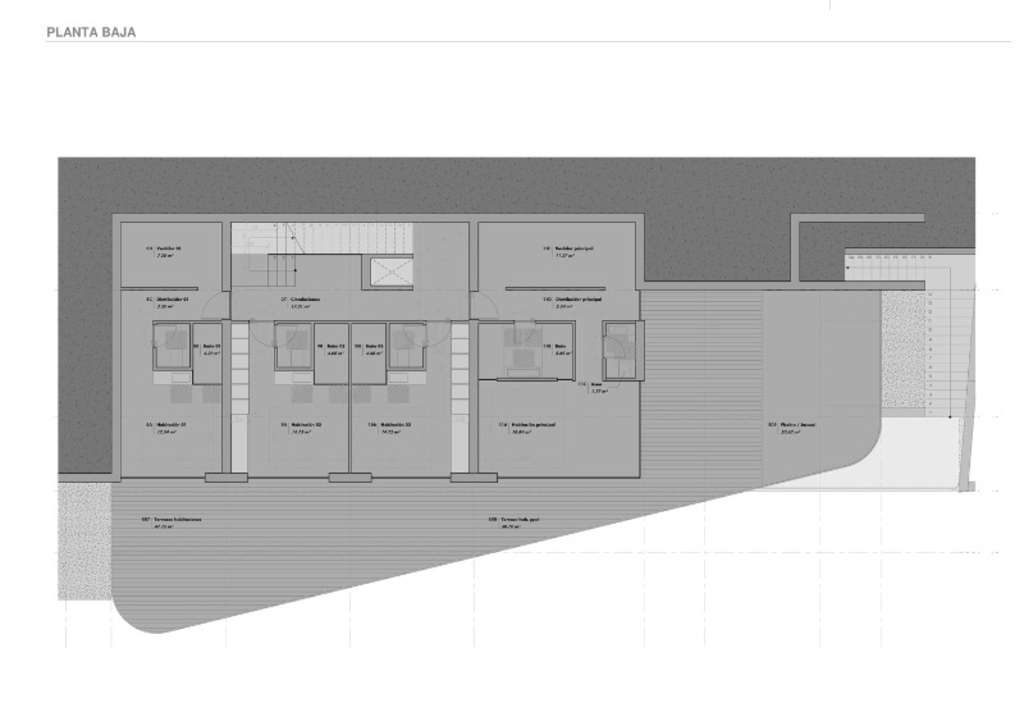
Villa de lujo con vistas al mar en venta en Benimeit, Moraira. Esta maravillosa villa se va a construir en una de las mejores parcelas de la zona, ofreciendo maravillosas vistas sobre la ciudad y el mar Mediterráneo. La villa se distribuye en tres plantas conectadas por un ascensor, la primera planta incluye una gran sala de estar de planta abierta con una cocina de lujo totalmente equipada y acceso a la magnífica terraza parcialmente cubierta y la piscina. También en este nivel hay un aseo de invitados y un baño externo y un trastero. La planta baja consta de dos dormitorios dobles con baños en suite, un dormitorio doble con baño en suite y vestidor y el dormitorio principal que tiene baño en suite, vestidor y una gran terraza privada que incluye piscina infinita. El sótano tiene una sala muy grande para ser utilizada como desee el comprador [home cinema, área de bienestar, etc.], una sala técnica, un aseo de invitados, un amplio lavadero y una habitación que se puede utilizar como gimnasio. - Puntos clave: - 517m2 de construcción - Piscina infinita fuera de la espaciosa sala de estar principal - 4 dormitorios, todos con baños de lujo en suite - Dormitorio principal con terraza privada y piscina infinita que incluye jacuzzi - 2 aseos de invitados - Cuarto de ducha exterior - Aire acondicionado frío / calor - Calefacción por suelo radiante - Cocina de lujo totalmente equipada - Sistema de domótica - Juegos / Home Cinema - Gimnasio - Zona de barbacoa - Jardín privado ajardinado - Para obtener más información, no dude en contactarnos.
- 3/11/2025
- 517 m2
- 5.706 €/m2
- 4
- 4
Zebra Homes
Contactar
Compartir
Tu opinión




























