Villa en venta en Teulada zona Moraira
Datos básicos
- C15ZH-84187
- 1.585.000 €
- 471 m2(3.365 €/m2)
- Alicante
- Teulada
- Moraira
Distribución e instalaciones
- 4
- 4
Varios
- Sí
Certificado energético
Detalles
1.585.000 €
La villa está diseñada en tres niveles:
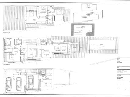
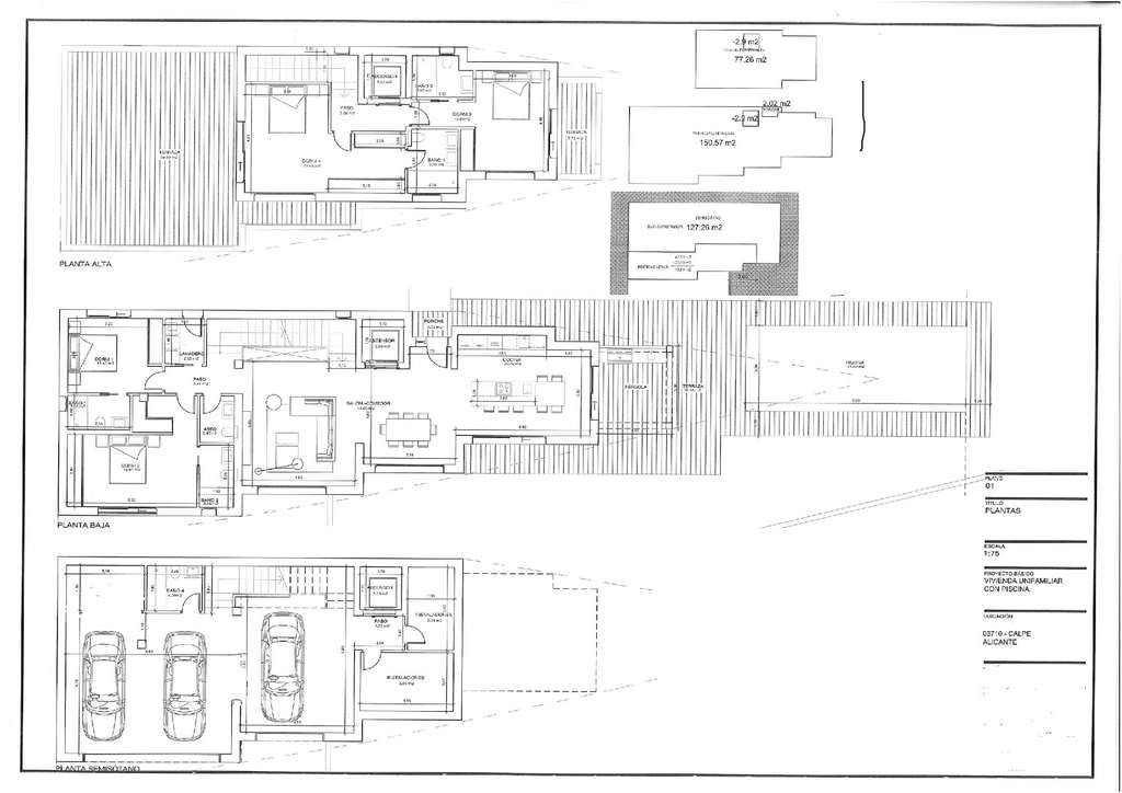
En la planta sótano encontramos el garaje para dos vehículos, un trastero, un lavadero, un aseo, un lavadero, un gimnasio y una escalera interior que conduce a la planta baja.
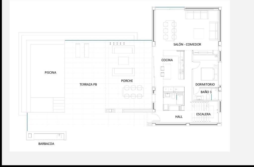
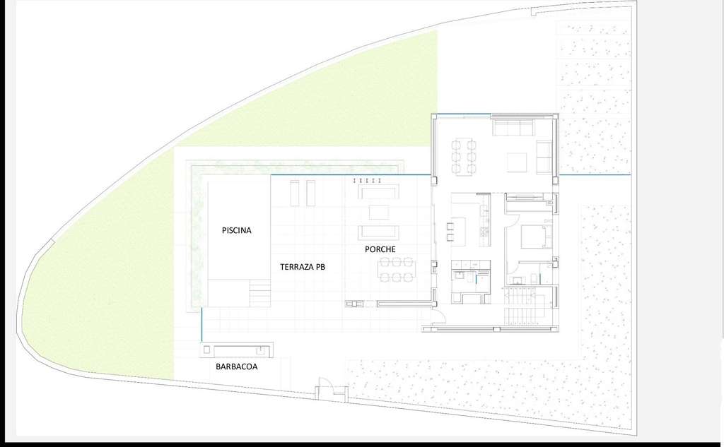
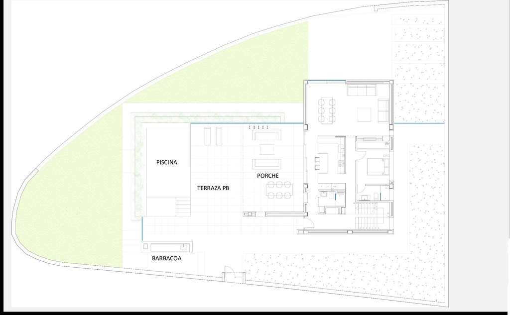
La planta baja se distribuye en salón-comedor diáfano y moderna cocina americana totalmente equipada, conectado a una fantástica terraza exterior con piscina, barbacoa y baño exterior. También hay un dormitorio con baño en suite en esta planta.
La planta superior se distribuye en tres dormitorios, uno de ellos con baño en suite, vestidor independiente y amplia terraza, y otro baño compartido por los otros dos dormitorios.
Informe de calidad:
- Climatización : El aire acondicionado es el sistema AEROTERMAL de aire frío y caliente y suelo radiante o radiadores en toda la casa y agua caliente con depósito de almacenamiento.
- Seguridad : La propiedad contará con un equipo de seguridad compuesto por alarma de seguridad preinstalada, puerta de entrada a la propiedad antirrobo y cristales de seguridad, así como videoportero conectado a la entrada peatonal desde la calle.
- Carpintería interior : puerta antirrobo pintada de gris con cerradura de seguridad y cuatro puntos antirrotura. Puertas de paso lisas pintadas en blanco mate. Armarios modulares con puertas lisas lacadas en blanco y revestimiento interior símil madera de melamina, totalmente equipados con baldas, colgadores, bandejas y cajones.
- Cocina : Mobiliario de cocina de diseño con muebles altos y bajos lacados en blanco mate y encimera de mármol exótico. Incluye electrodomésticos SIEMENS o marca similar: placa de inducción, campana extractora silenciosa, horno y microondas. Fregadero de acero inoxidable integrado en la encimera con grifería flexible.
- Baño : Los sanitarios son de color blanco, modelo MERIDIAN COMPAC o similar. Platos de ducha extraplanos fabricados en resina blanca de alta resistencia y paredes de cristal templado con tratamiento antical. Los lavabos se colocan sobre muebles de baño suspendidos con cajones extraíbles. Se instaló un espejo con iluminación LED integrada y placa anticondensación. Mezclador monomando. Se instalan toalleros calefactables, toalleros y portarrollos.
- Carpintería exterior : Es de aluminio de primeras marcas nacionales, pintada en negro y con perfilería con rotura de puente térmico.
- Acristalamiento : vidrio de seguridad CLIMALIT 6+6/146/4+4
- Solados : Revestimiento interior de la vivienda y terraza de la piscina con gres porcelánico nacional de primeras marcas en color gris. Sábanas de porcelánico marfil en baños y solería de mármol blanco Macael en pasillo y escaleras.
- Zona exterior : piscina de 7,9 x 4 m con escalera integrada, tarima de mosaico y dos focos LED. Fácil paisajismo y riego automático con temporizador.
- Vallado de la propiedad : con muros de hormigón. Acceso peatonal cubierto y puerta de apertura automática desde la vivienda mediante portero automático. Portón de entrada motorizado para coches. Barandilla de terraza fabricada en cristal templado de 6+6 mm.
Está previsto que la villa esté terminada en febrero de 2024.
Árbitro.: M200357
Precio: 1.585.000 €
Ubicación: España alicante costablanca
Tipo de propiedad: Casa / Villa / Chalet Nuevo edificio Villa de lujo Villa de diseño moderno
Clasificación de la propiedad: En oferta
Construir: 471 m2
País: 800 m2
Baño: 5
Alojamiento: 4
Solicitar más información
Características adicionales: piscina cochera
Descarga el PDF
Parte
Facebook
Piar
correo electrónico
Whatsapp
Gmail Etiqueta energética para edificios
Propiedades similares
En la planta sótano encontramos el garaje para dos vehículos, un trastero, un lavadero, un aseo, un lavadero, un gimnasio y una escalera interior que conduce a la planta baja.
La planta baja se distribuye en salón-comedor diáfano y moderna cocina americana totalmente equipada, conectado a una fantástica terraza exterior con piscina, barbacoa y baño exterior. También hay un dormitorio con baño en suite en esta planta.
La planta superior se distribuye en tres dormitorios, uno de ellos con baño en suite, vestidor independiente y amplia terraza, y otro baño compartido por los otros dos dormitorios.
Informe de calidad:
- Climatización : El aire acondicionado es el sistema AEROTERMAL de aire frío y caliente y suelo radiante o radiadores en toda la casa y agua caliente con depósito de almacenamiento.
- Seguridad : La propiedad contará con un equipo de seguridad compuesto por alarma de seguridad preinstalada, puerta de entrada a la propiedad antirrobo y cristales de seguridad, así como videoportero conectado a la entrada peatonal desde la calle.
- Carpintería interior : puerta antirrobo pintada de gris con cerradura de seguridad y cuatro puntos antirrotura. Puertas de paso lisas pintadas en blanco mate. Armarios modulares con puertas lisas lacadas en blanco y revestimiento interior símil madera de melamina, totalmente equipados con baldas, colgadores, bandejas y cajones.
- Cocina : Mobiliario de cocina de diseño con muebles altos y bajos lacados en blanco mate y encimera de mármol exótico. Incluye electrodomésticos SIEMENS o marca similar: placa de inducción, campana extractora silenciosa, horno y microondas. Fregadero de acero inoxidable integrado en la encimera con grifería flexible.
- Baño : Los sanitarios son de color blanco, modelo MERIDIAN COMPAC o similar. Platos de ducha extraplanos fabricados en resina blanca de alta resistencia y paredes de cristal templado con tratamiento antical. Los lavabos se colocan sobre muebles de baño suspendidos con cajones extraíbles. Se instaló un espejo con iluminación LED integrada y placa anticondensación. Mezclador monomando. Se instalan toalleros calefactables, toalleros y portarrollos.
- Carpintería exterior : Es de aluminio de primeras marcas nacionales, pintada en negro y con perfilería con rotura de puente térmico.
- Acristalamiento : vidrio de seguridad CLIMALIT 6+6/146/4+4
- Solados : Revestimiento interior de la vivienda y terraza de la piscina con gres porcelánico nacional de primeras marcas en color gris. Sábanas de porcelánico marfil en baños y solería de mármol blanco Macael en pasillo y escaleras.
- Zona exterior : piscina de 7,9 x 4 m con escalera integrada, tarima de mosaico y dos focos LED. Fácil paisajismo y riego automático con temporizador.
- Vallado de la propiedad : con muros de hormigón. Acceso peatonal cubierto y puerta de apertura automática desde la vivienda mediante portero automático. Portón de entrada motorizado para coches. Barandilla de terraza fabricada en cristal templado de 6+6 mm.
Está previsto que la villa esté terminada en febrero de 2024.
Árbitro.: M200357
Precio: 1.585.000 €
Ubicación: España alicante costablanca
Tipo de propiedad: Casa / Villa / Chalet Nuevo edificio Villa de lujo Villa de diseño moderno
Clasificación de la propiedad: En oferta
Construir: 471 m2
País: 800 m2
Baño: 5
Alojamiento: 4
Solicitar más información
Características adicionales: piscina cochera
Descarga el PDF
Parte
Piar
correo electrónico
Gmail Etiqueta energética para edificios
Propiedades similares
- 3/11/2025
- 471 m2
- 3.365,18 €/m2
- 4
- 4
Zebra Homes
Contactar
Compartir
Tu opinión


















