Villa en venta en Teulada zona Moraira
Datos básicos
- CH3373
- 675.000 €
- Alicante
- Teulada
- Moraira
Distribución e instalaciones
- 3
- 2
Varios
- Sí
Certificado energético
Detalles
675.000 €
Muy buena oportunidad para amantes de la prestigiosa zona del Portet. Villa estilo tradicional en la exclusiva zona de El Portet, en una parcela de 840 m2, con ligera pendiente, con jardín, vallada. Se sitúa en una calle sin salida. Sitio tranquilo. Privada. A tan solo 1 km de la playa y a 2,5 km del centro de Moraira.
La casa tiene 2 plantas y se comunican interiormente. La planta baja consta de: terraza, porche con una vista muy agradable al mar y abierta que nunca perderá para disfrutar con la familia, y donde se hace la vida, salón-comedor con chimenea con estufa de leña, cocina con barra americana, 1 dormitorio simple y 1 aseo con ducha (renovado en 2018).
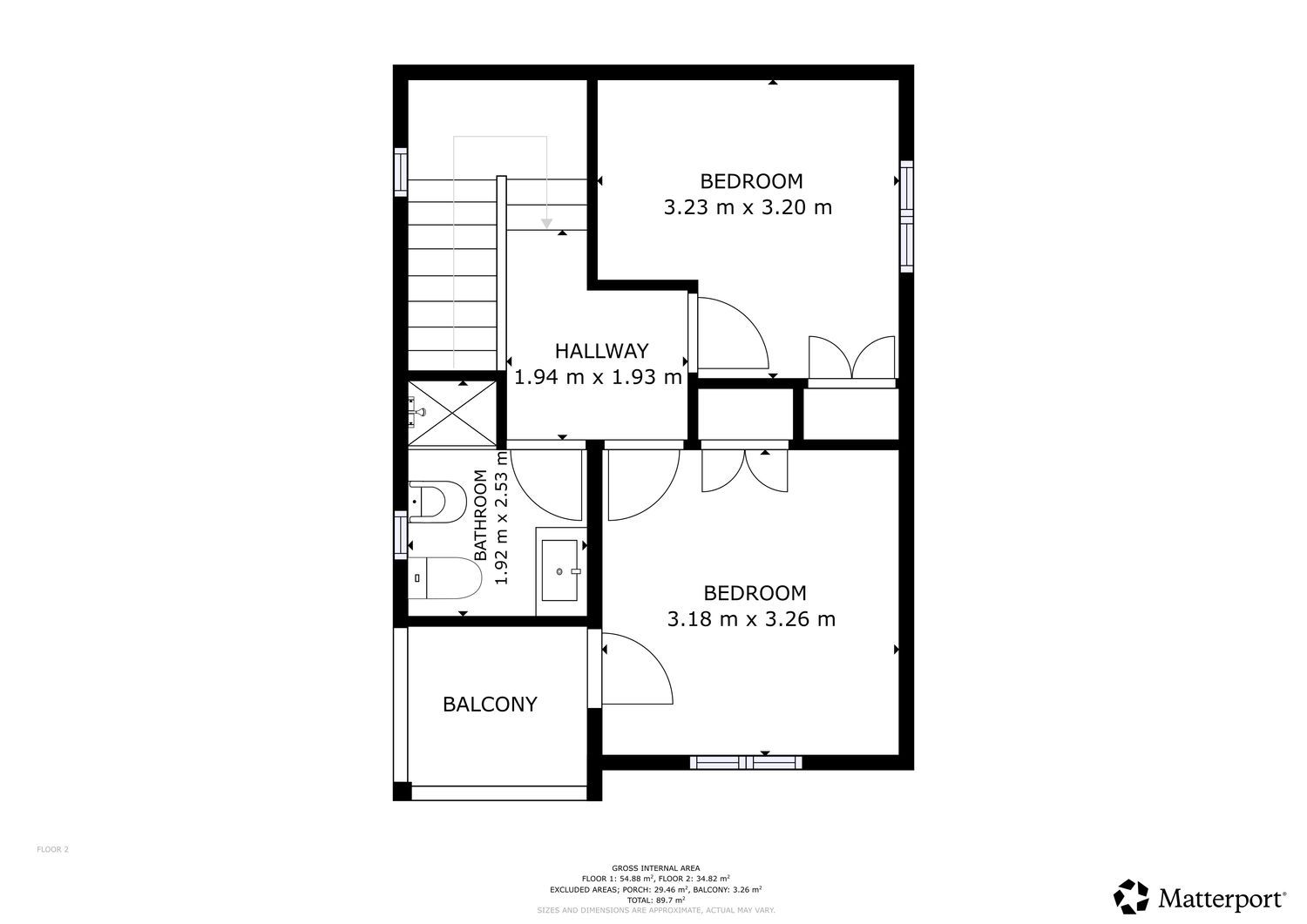
La planta alta consta de: 2 dormitorios dobles con armarios empotrados, uno de ellos con salida a porche, con unas bonitas vistas al mar, al Peñón d'Ifach y a Bernia y 1 aseo con ducha familiar (renovado en 2018). En la planta inferior está el garaje. Aire acondicionado (frío-calor) en el salón y en las escaleras de la planta alta. Ventanas de aluminio con cristal doble.
Piscina (8 x 4 m) con terraza. Orientación suroeste. Linda con zona verde.
La casa podría utilizarse tal y como se encuentra para vacaciones, pero tiene un amplio potencial para incluso ampliarla, es muy raro encontrar parcelas en este enclave único.
Para mas información y una posible visita, no dude contactarnos, Ferrando inmobiliaria en Moraira, su agencia de confianza desde 1988.
La casa tiene 2 plantas y se comunican interiormente. La planta baja consta de: terraza, porche con una vista muy agradable al mar y abierta que nunca perderá para disfrutar con la familia, y donde se hace la vida, salón-comedor con chimenea con estufa de leña, cocina con barra americana, 1 dormitorio simple y 1 aseo con ducha (renovado en 2018).
La planta alta consta de: 2 dormitorios dobles con armarios empotrados, uno de ellos con salida a porche, con unas bonitas vistas al mar, al Peñón d'Ifach y a Bernia y 1 aseo con ducha familiar (renovado en 2018). En la planta inferior está el garaje. Aire acondicionado (frío-calor) en el salón y en las escaleras de la planta alta. Ventanas de aluminio con cristal doble.
Piscina (8 x 4 m) con terraza. Orientación suroeste. Linda con zona verde.
La casa podría utilizarse tal y como se encuentra para vacaciones, pero tiene un amplio potencial para incluso ampliarla, es muy raro encontrar parcelas en este enclave único.
Para mas información y una posible visita, no dude contactarnos, Ferrando inmobiliaria en Moraira, su agencia de confianza desde 1988.
- 23/10/2025
- 3
- 2
Ferrando
Contactar
Compartir
Tu opinión










































