Villa en venta en Teulada zona Moraira
Datos básicos
- NB-99486
- 1.650.000 €
- 242 m2(6.818 €/m2)
- Alicante
- Teulada
- Moraira
Distribución e instalaciones
- 3
- 2
Varios
- Sí
Certificado energético
Detalles
1.650.000 €
Moderna villa de nueva construcción cerca del mar en Moraira
Esta moderna villa de lujo presenta un diseño minimalista y elegante, con líneas limpias y una armoniosa combinación de materiales naturales como madera, piedra y vidrio.
A 5 minutos a pie del mar (300m). Sus amplios ventanales de suelo a techo y puertas correderas permiten una integración fluida entre los espacios interiores y exteriores, inundando la vivienda de luz natural. La zona exterior cuenta con un elegante salón cubierto, una terraza solárium y una piscina rodeada de un jardín paisajístico. La paleta de colores neutros y la arquitectura contemporánea crean un ambiente sofisticado y acogedor, ideal para el descanso y el entretenimiento.
Además, existe la posibilidad de añadir un sótano por un costo adicional, ofreciendo espacio extra para adaptarlo a necesidades específicas.
Cerca de Playa La Galera y con un supermercado cerca.
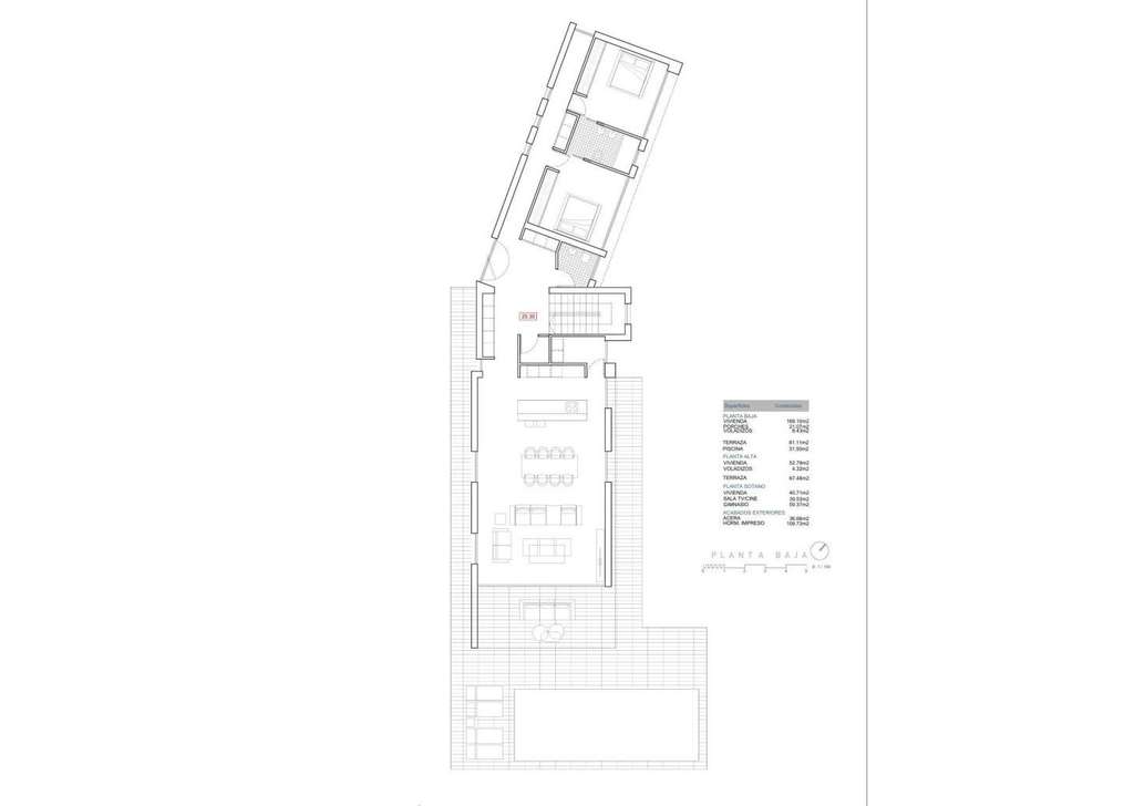
La villa se distribuye en dos plantas e incluye
Salón y comedor diáfanos con acceso directo a las terrazas y la piscina
Cocina abierta totalmente amueblada
3 dormitorios y 2 baños, además de 1 aseo de invitados
Lavadero y despensa
Jardín privado, terrazas y zona de piscina
Suite principal privada y estilo de vida al aire libre
La planta baja incluye dos dormitorios, un baño, un aseo y amplias zonas comunes. En la planta superior, el dormitorio principal ofrece un refugio privado con baño en suite, un amplio vestidor y una terraza de 67 m2, perfecta para disfrutar de las vistas del amanecer y la brisa mediterránea. El espacio exterior ha sido diseñado para el relax, con una piscina privada, terrazas para tomar el sol y un entorno exuberante que garantiza la tranquilidad y la privacidad.
Ubicación privilegiada en la Costa Blanca Norte
Moraira ofrece un estilo de vida excepcional con hermosas playas, rutas de senderismo, puertos deportivos, campos de golf y restaurantes gourmet.
- hace 28 días
- 242 m2
- 6.818,18 €/m2
- 3
- 2
Naranja Spain
Contactar
Compartir
Tu opinión



