Villa en venta en Teulada zona Moraira
Datos básicos
- FTBS-T2971
- 1.990.000 €
- 754 m2(2.639 €/m2)
- Alicante
- Teulada
- Moraira
Distribución e instalaciones
- 4
- 4
Varios
- Totalmente amueblado
- 1.046 m2
- Sí
Certificado energético
Detalles
1.990.000 €
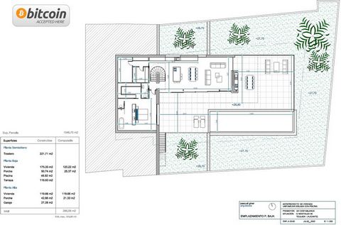
Descubra el encanto de esta hermosa villa de lujo, ubicada en una parcela de 1046 m² con dos accesos peatonales y para vehículos, incluyendo uno a través de la zona comunitaria de la urbanización. Estratégicamente situada a poca distancia de las hermosas playas y del centro de Moraira, esta propiedad ofrece una experiencia de vida excepcional.
DISTRIBUCIÓN DE LA VILLA:
Esta villa, distribuida en 3 plantas, se destaca por su diseño moderno y su distribución inteligente:
PLANTA BAJA: Amplia sala de estar luminosa junto a una cocina abierta con isla, un aseo de invitados y un dormitorio con baño en suite. En el exterior, una impresionante piscina infinity, rodeada por una amplia terraza y la zona de barbacoa, crea un ambiente perfecto para el entretenimiento.
PLANTA ALTA: 3 amplias habitaciones, cada una con su propio baño en suite y un balcón privado para disfrutar de las impresionantes vistas. En el exterior de esta planta se encuentra el garaje, proporcionando comodidad y espacio para su vehículo.
PLANTA SÓTANO: Alberga un generoso trastero de 221 m², añadiendo funcionalidad y espacio de almacenamiento.
EXTRAS DESTACADOS:
La villa está equipada con las mejores calidades y comodidades de lujo, que incluyen:
Carpintería Technal con cristal de seguridad.
Cocina completa con electrodomésticos Siemens.
Baños y grifería completos de la prestigiosa marca Roca.
Iluminación LED.
Sistema de aerotermia para agua caliente y calefacción por suelo radiante.
Aire acondicionado por conductos (frío y calor) en toda la vivienda.
Pre-instalación placas solares.
Panel Solar agua sanitaria.
Armarios empotrados.
Persianas eléctricas.
Alarma interior, preinstalación de alarma exterior y cámaras de seguridad.
EXTERIORES Y CLASIFICACIÓN ENERGÉTICA:
Piscina rectangular con sistema desbordante.
Zona de barbacoa.
Lavadero.
Jardín perfectamente terminado.
Puertas de acceso automáticas.
Clasificación energética A.
Orientación Sur.
Este proyecto forma parte de una pequeña urbanización compuesta por seis viviendas modernas, cada una con su propio parking. Situado en la parcela 4, este proyecto ofrece una oportunidad única para aquellos que buscan una residencia de lujo en un entorno exclusivo y tranquilo.
DISTRIBUCIÓN DE LA VILLA:
Esta villa, distribuida en 3 plantas, se destaca por su diseño moderno y su distribución inteligente:
PLANTA BAJA: Amplia sala de estar luminosa junto a una cocina abierta con isla, un aseo de invitados y un dormitorio con baño en suite. En el exterior, una impresionante piscina infinity, rodeada por una amplia terraza y la zona de barbacoa, crea un ambiente perfecto para el entretenimiento.
PLANTA ALTA: 3 amplias habitaciones, cada una con su propio baño en suite y un balcón privado para disfrutar de las impresionantes vistas. En el exterior de esta planta se encuentra el garaje, proporcionando comodidad y espacio para su vehículo.
PLANTA SÓTANO: Alberga un generoso trastero de 221 m², añadiendo funcionalidad y espacio de almacenamiento.
EXTRAS DESTACADOS:
La villa está equipada con las mejores calidades y comodidades de lujo, que incluyen:
Carpintería Technal con cristal de seguridad.
Cocina completa con electrodomésticos Siemens.
Baños y grifería completos de la prestigiosa marca Roca.
Iluminación LED.
Sistema de aerotermia para agua caliente y calefacción por suelo radiante.
Aire acondicionado por conductos (frío y calor) en toda la vivienda.
Pre-instalación placas solares.
Panel Solar agua sanitaria.
Armarios empotrados.
Persianas eléctricas.
Alarma interior, preinstalación de alarma exterior y cámaras de seguridad.
EXTERIORES Y CLASIFICACIÓN ENERGÉTICA:
Piscina rectangular con sistema desbordante.
Zona de barbacoa.
Lavadero.
Jardín perfectamente terminado.
Puertas de acceso automáticas.
Clasificación energética A.
Orientación Sur.
Este proyecto forma parte de una pequeña urbanización compuesta por seis viviendas modernas, cada una con su propio parking. Situado en la parcela 4, este proyecto ofrece una oportunidad única para aquellos que buscan una residencia de lujo en un entorno exclusivo y tranquilo.
- hace 3 horas
- 754 m2
- 2.639,26 €/m2
- 4
- 4
- 1.046 m2
ArKadia Publishing Ltd 2
Contactar
Compartir
Tu opinión
Mapa












