Villa en venta en Teulada zona Moraira
Datos básicos
- AC-31833
- 1.545.000 €
- 340 m2(4.544 €/m2)
- Alicante
- Teulada
- Moraira
Distribución e instalaciones
- 4
- 4
Varios
- Sí
Certificado energético
Detalles
1.545.000 €
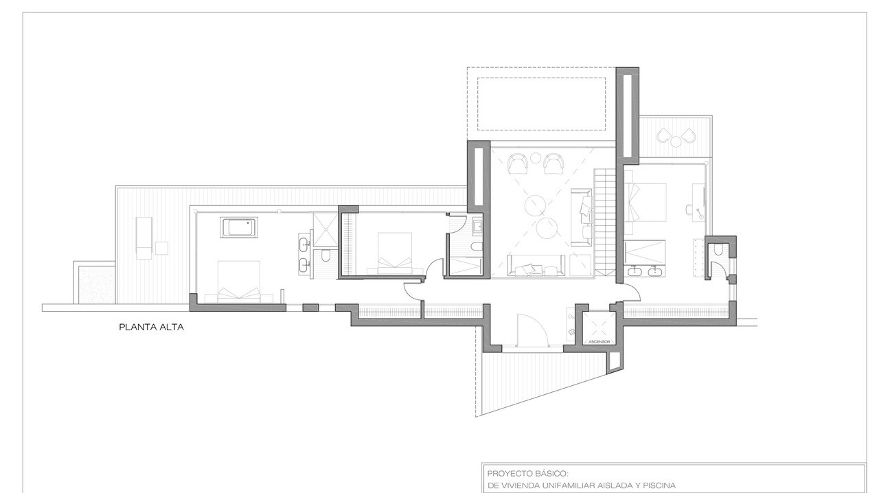
La villa está dividida en 2 plantas. La planta baja tiene un luminoso salón / comedor con cocina totalmente equipada y un dormitorio doble con baño en suite. En el primer piso hay 3 habitaciones dobles con baños. En el exterior hay una gran piscina infinita con zona chill out y un jardín muy privado. La villa está equipada con calefacción por suelo radiante, aire acondicionado, sistema de alarma y un ascensor.
- 10/02/2022
- 340 m2
- 4.544,12 €/m2
- 4
- 4
Contactar
Compartir
Tu opinión







