Apartamento en venta en Torrevieja zona Acequion
Datos básicos
- SL-88049
- 189.900 €
- 100 m2(1.899 €/m2)
- Alicante
- Torrevieja
- Acequion
Distribución e instalaciones
- 3
- 2
Certificado energético
Detalles
189.900 €
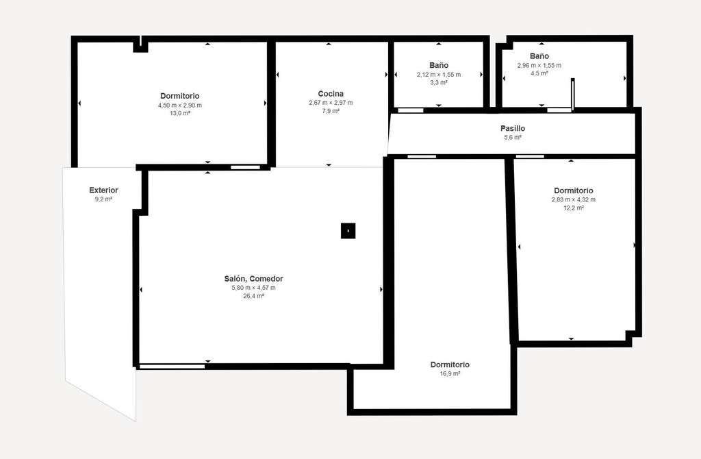
Una oportunidad única en Torrevieja – Zona AcequionTe invitamos a descubrir una verdadera joya inmobiliaria en una de las zonas más exclusivas de Torrevieja: el prestigioso barrio de Acequion. Este apartamento totalmente reformado combina elegancia moderna, máximo confort y una ubicación privilegiada.Desde el primer momento sentirás la calidez de un espacio cuidadosamente diseñado, pensado hasta el último detalle para ofrecer una atmósfera acogedora. La distribución incluye tres amplios dormitorios, todos ellos bañados por luz natural, que transmiten serenidad y comodidad. El dormitorio principal cuenta con vistas al mar Mediterráneo, creando despertares inolvidables frente al horizonte.Los dos baños, de diseño contemporáneo, son auténticos espacios de bienestar: materiales de alta calidad, duchas amplias y acabados elegantes que convierten cada momento en una experiencia de relajación.El corazón de la vivienda es el gran salón con cocina integrada en concepto abierto, lleno de luz, donde la modernidad se une a la convivencia. La cocina está totalmente equipada con electrodomésticos de alta gama, ideal para preparar tus platos favoritos mientras compartes momentos únicos con familiares y amigos.Además, dispone de un práctico trastero y un balcón orientado al sureste, un auténtico refugio soleado. Aquí podrás disfrutar de un café al amanecer o de una copa al atardecer mientras contemplas las impresionantes vistas al mar Mediterráneo.Este apartamento es ideal tanto si buscas una residencia permanente junto al mar como una propiedad vacacional exclusiva en una de las zonas más demandadas de la Costa Blanca. Su distribución funcional, las vistas al mar, la orientación sureste y la cercanía a la playa y al centro de Torrevieja lo convierten en una oportunidad única. Cada detalle ha sido pensado para garantizar un día a día cómodo y agradable.Este apartamento no es solo una vivienda, es un estilo de vida exclusivo en uno de los rincones más deseados del Mediterráneo.
- 31/10/2025
- 100 m2
- 1.899 €/m2
- 3
- 2
Global Spain
Contactar
Compartir
Tu opinión










