Apartamento en venta en Torrevieja zona Torrevieja
Datos básicos
- PF-69752
- 209.000 €
- 129 m2(1.620 €/m2)
- Alicante
- Torrevieja
- Torrevieja
Distribución e instalaciones
- 3
- 2
Certificado energético
Detalles
209.000 €
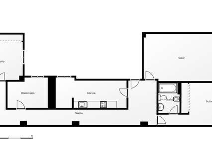
Apartamento -piso señorial en pleno centro de Torrevieja ✨. . Presentamos un piso-apartamento único, de los que ya no se construyen, con 129 m² construidos, ubicado en el corazón de Torrevieja y a tan solo 600 metros del puerto y del paseo marítimo. Esta vivienda es mucho más que un piso: es un hogar con amplitud, solidez y carácter, pensado para familias que valoran espacio, comodidad y estilo. El edificio cuenta con una única vivienda por planta, lo que garantiza la máxima privacidad, siendo en total cinco pisos en el inmueble.. . El piso dispone de 3 habitaciones, todas equipadas con armarios empotrados, 2 baños completos y una gran cocina independiente, lista para disfrutar de la vida en familia. Su amplio salón con salida directa al balcón se convierte en el lugar perfecto para momentos de relax o reuniones con amigos y familiares, mientras que el dormitorio principal cuenta con un precioso mirador que llena de luz y encanto la estancia. Cada detalle de esta vivienda refleja la elegancia y practicidad de las casas de antes, con un diseño pensado para vivir cómodamente sin renunciar al estilo.. . La ubicación es inmejorable: muy cerca de colegios, supermercados, transporte público y todos los servicios que puedas necesitar, además de disfrutar de la cercanía al puerto y al paseo marítimo. Este piso no es cualquiera, es una auténtica joya con historia, amplitud y carácter, lista para convertirse en el hogar ideal para quienes buscan lo mejor en el centro de Torrevieja.. . Una oportunidad unica en Torrevieja !! Especialistas en Orihuela Costa
- hace 6 días
- 129 m2
- 1.620,16 €/m2
- 3
- 2
Contactar
Compartir
Tu opinión
































