Apartamento en venta en Torrevieja zona Lago Jardin
Datos básicos
- REDSP-68660
- 330.000 €
- 75 m2(4.400 €/m2)
- Alicante
- Torrevieja
- Lago Jardin
Distribución e instalaciones
- 2
- 2
Varios
- Sí
Certificado energético
Detalles
330.000 €
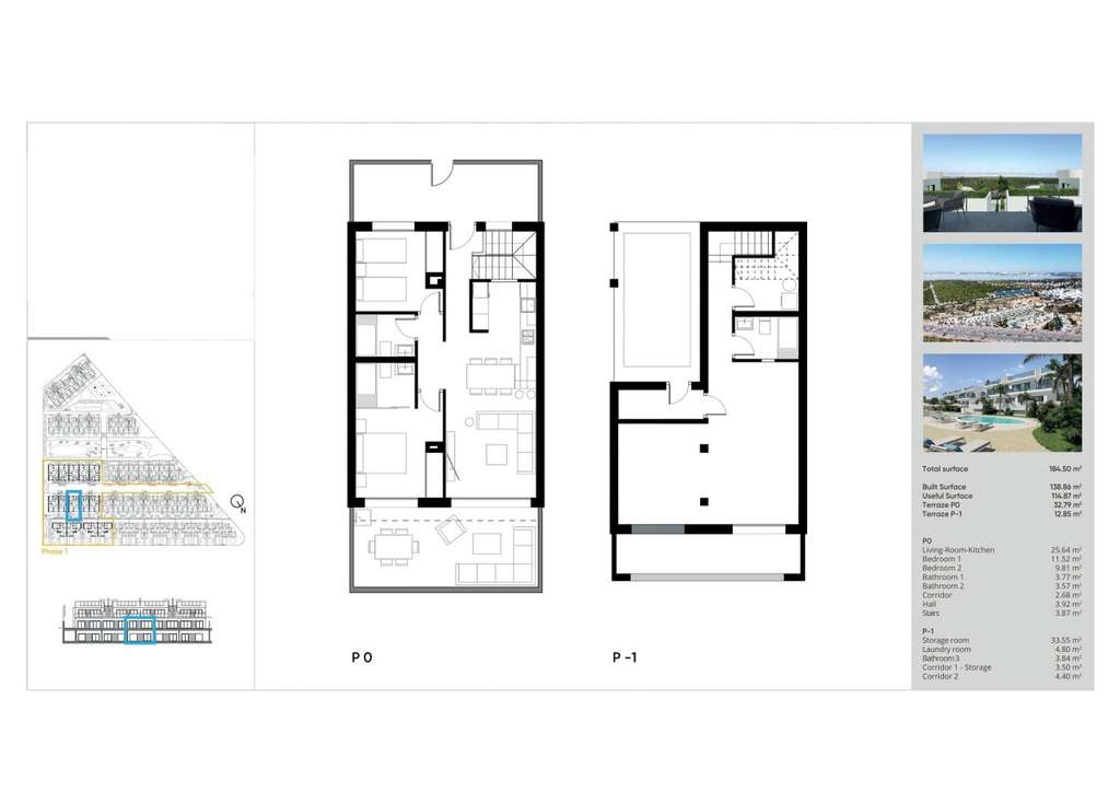
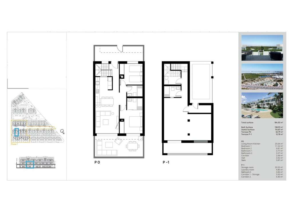
RESIDENCIAL DE OBRA NUEVA EN LOS BALCONES, TORREVIEJA
Complejo residencial de nueva construcción de pareados y bungalows situado en Los Balcones con vistas al lago rosa.
Los bungalows de planta alta disponen de 2 dormitorios, 2 baños, cocina americana con amplio salón, armarios empotrados, terraza, solarium privado y plaza de aparcamiento subterráneo.
Nuevo y exclusivo residencial con grandes zonas comunes; jardines, jardín-gimnasio, parque infantil, 2 grandes piscinas comunitarias - una de ellas para adultos, y la otra para niños.
Los Balcones es un pequeño pueblo situado cerca del sur de Torrevieja.
Torrevieja es una ciudad española en la provincia de Alicante, en la Costa Blanca.
Es conocida por su clima y su costa típicamente mediterráneos. Cuenta con paseos marítimos con complejos turísticos a lo largo de sus playas de arena.
El pequeño Museo del Mar y la Sal alberga exposiciones sobre la historia pesquera y salinera de la ciudad.
En el interior, el Parque Natural de las Lagunas de La Mata-Torrevieja cuenta con senderos y dos lagunas saladas, una rosa y otra verde.
El aeropuerto de Alicante se encuentra a 40 minutos y el de Murcia a una hora.
- hace 11 días
- 75 m2
- 4.400 €/m2
- 2
- 2
Contactar
Compartir
Tu opinión





















