Casa en venta en Torrevieja zona Torrevieja
Datos básicos
- NB-77471
- 330.000 €
- 225 m2(1.467 €/m2)
- Alicante
- Torrevieja
- Torrevieja
Distribución e instalaciones
- 2
- 3
Varios
- Sí
Certificado energético
Detalles
330.000 €
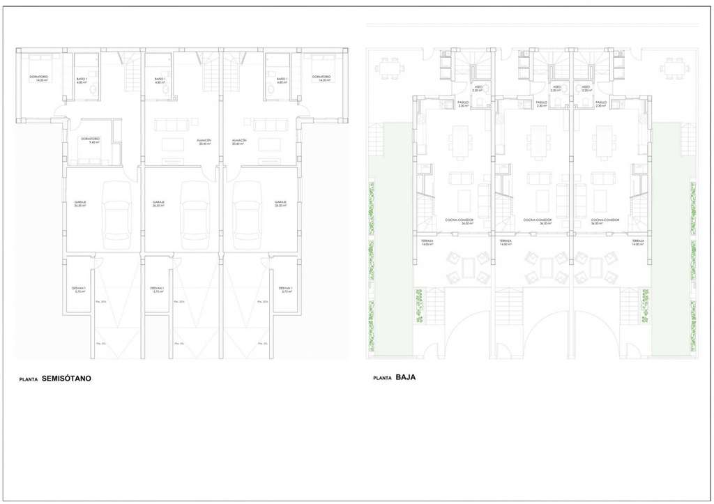
PRECIOSO ADOSADO EN LOS ALTOS, TORREVIEJA
Llave en mano Adosado nuevo en Los Altos situado a pocos minutos del Hospital de Torrevieja y de la laguna rosa.
Adosado de estilo mediterráneo con 2 dormitorios, 3 baños, salón, cocina, terrazas, garaje y solarium con vistas a la laguna rosa.
Los Altos es una popular zona residencial en el sur de Torrevieja, cerca del lago de la sal.
A poca distancia se encuentran todo tipo de servicios como bares, tiendas, supermercados, farmacias, etc. Lo que lo convierte en un lugar perfecto para vivir todo el año.
Además, está a sólo 2 km de las hermosas playas.
Torrevieja es una localidad española de la provincia de Alicante, en la Costa Blanca.
Es conocida por su clima y su costa típicamente mediterráneos. Cuenta con paseos marítimos con complejos turísticos a lo largo de sus playas de arena.
El pequeño Museo del Mar y la Sal alberga exposiciones sobre la historia pesquera y salinera de la ciudad.
En el interior, el Parque Natural de las Lagunas de La Mata-Torrevieja cuenta con senderos y dos lagunas saladas, una rosa y otra verde.
El aeropuerto de Alicante se encuentra a 40 minutos y el de Murcia a una hora.
- 31/10/2025
- 225 m2
- 1.466,67 €/m2
- 2
- 3
Procare Estates
Contactar
Compartir
Tu opinión




























