Casa en venta en Torrevieja zona Los Balcones - Los Altos del Edén
Datos básicos
- M-61514
- 164.900 € (antes 169.000 €)
- 52 m2(3.171 €/m2)
- Alicante
- Torrevieja
- Los Balcones - Los Altos del Edén
Distribución e instalaciones
- 2
- 2
Varios
- Sí
Certificado energético
Detalles
164.900 € 169.000 €
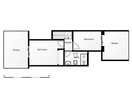
Descubre este acogedor adosado ubicado en la deseada zona de Los Balcones en Torrevieja. Con una superficie construida de unos 60 m2 incluyendo la ampliación de la cocina, esta propiedad es perfecta para disfrutar del sol y el confort mediterráneo gracias a su orientación sur.. . Ofrece una amplia terraza privada de 30 m2, ideal para relajarte o compartir momentos inolvidables con amigos y familiares.. . En la planta baja encontrarás un luminoso salón comedor perfecto para tus reuniones sociales, junto a una cocina funcional y aseo adicional.. . En la primera planta se sitúan dos dormitorios, cada uno cuenta con acceso a su propia terraza donde podrás contemplar las vistas al entorno natural que rodea tu nuevo hogar.. . Además, dispone de piscina comunitaria y podrás aparcar tu coche dentro de la parcela si lo deseas.. . Ubicada estratégicamente cerca del mar (solo a 1500 metros) así como servicios esenciales como colegios, hospitales y centros comerciales, esta vivienda te ofrece tanto tranquilidad como comodidad diaria.. . Viene completamente amueblada lista para entrar a vivir: solo trae tus maletas!. No pierdas la oportunidad única de adquirir este encantador refugio costero.
- hace 11 días
- 52 m2
- 3.171,15 €/m2
- 2.4%
- 2
- 2
Procare Estates
Contactar
Compartir
Tu opinión






























