Chalet en venta en Torrevieja
Datos básicos
- BCLW-T2912
- 595.000 €
- 248 m2(2.399 €/m2)
- Alicante
- Torrevieja
Distribución e instalaciones
- 0
- 0
- 1
- 1
Certificado energético
Detalles
595.000 €
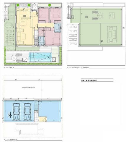
Descripción del objeto: Villas modernos que constan de una superficie de unas 357 m² - 439 m² (incluyendo solario) con 3 dormitorios, 2 cuartos de baño (1 en-suite), 1 vestidor, 1 salón / comedor con cocina moderna, 1 trastero en sótano (a unos 29 m² - 60 m²), 1 garage en sótano (a unos 41 m² - 93 m²), 1 terraza (a unos 29 m²) y 1 solario (a unos 116 m²). Las parcelas tienen un tamaño de unos 248 m² - 336 m². Un residencial de 15 villas de estilo moderno y contemporáneo, cada una con solario, aparcamiento privado en el garaje subterráneo y piscina privada. Imagina despertar cada mañana con la suave brisa del Mediterráneo acariciando tu piel. Sales a la terraza con tu café recién hecho y contemplas el espectáculo de la Laguna Rosa, que cambia de tonalidad con los primeros rayos del sol. La paz que se respira en el ambiente es absoluta. Bajas las escaleras y te sumerges en tu piscina privada, el agua cristalina refleja el cielo despejado de la Costa Blanca. Aquí, en tu villa de Torrevieja, cada día es una experiencia de lujo y bienestar. El diseño de esta exclusiva promoción de villas independientes ha sido pensado para quienes buscan más que una casa: un estilo de vida sofisticado y sereno. 3 amplios dormitorios te envuelven en confort, mientras que los dos baños ofrecen un refugio de relajación. El solárium privado se convierte en el lugar perfecto para noches estrelladas con una copa de vino en la mano. Tu hogar está estratégicamente ubicado en un entorno privilegiado donde la exclusividad se une a la cercanía con el mar, los campos de golf y los mejores servicios de la zona. Equipamiento adicional: Las viviendas constan - entre otras cosas - de pre-instalación de aire acondicionado, carpintería exterior en aluminio con doble acristalamiento, persianas motorizadas, puertas de seguridad, armarios empotrados en dormitorios, cocinas amuebladas (sin electrodomésticos), mamparas y muebles de baños, videoportero, piscinas privadas y aparcamientos privados en el garaje subterráneo. Ubicación de casa/solar: El complejo residencial está situado en la Costa Blanca Sur, en la localidad de Torrevieja, muy cerca del hospital privado Quirónsalud. Disfrutar del mar Mediterráneo es posible y a muy pocos minutos del complejo. A pocos minutos, tienes la playa de La Mata con el Parque del Molino del Agua y la playa de Cabo Cervera, al igual que cala Higuera y cala La Zorra. El residencial está tan bien comunicado que es muy fácil acceder a playas más céntricas como la playa de Los Locos, la playa de Los Náufragos, la playa del Cura o Cala Ferris. También, podrás ir a las playas de Orihuela Costa como playa de Punta Prima, playa Flamenca, playa La Glea, cala Capitán, cala de Aguamarina, playa La Zenia, playa Cabo Roig o playa Mil Palmeras. El residencial está ubicado en un entorno natural privilegiado, muy próximo al Parque Natural de las Lagunas de La Mata y la Laguna Rosa de Torrevieja, además del espacio natural de Lo Albentosa, ideal para realizar rutas de cicloturismo y senderismo. El residencial está junto al Auditorio Internacional de Torrevieja y el Hospital Quirón. La comunicación por carretera es excelente: acceso directo a la N-332, a pocos minutos de la autovía A-7 y a 40 minutos en coche, el aeropuerto de Alicante-Elche junto con el servicio de AVE en Alicante. La zona tiene una amplia gama de servicios: el centro comercial Habaneras, polideportivo, restaurantes, tiendas, colegios, institutos y hasta el mercadillo más grande del área, que tiene lugar todos los viernes. El puerto de Torrevieja ofrece deportes náuticos como la vela o el remo y en las playas de la zona, puedes practicar diversas actividades de ocio deportivo como paddle surf, surf, motos de agua, flyboard o parasailing. El proyecto incluye el centro deportivo y de ocio, un Sport & Wellness Club, con instalaciones tanto al aire libre como en el interior.
- hace 3 días
- 248 m2
- 2.399,19 €/m2
- 0
- 0
ArKadia Publishing Ltd 4
Contactar
Compartir
Tu opinión
Mapa










