Villa en venta en Torrevieja zona Los Balcones
Datos básicos
- NB-88123
- 700.000 €
- 120 m2(5.833 €/m2)
- Alicante
- Torrevieja
- Los Balcones
Distribución e instalaciones
- 3
- 2
Varios
- Sí
Certificado energético
Detalles
700.000 €
Chalets de obra nueva de una planta con piscina privada en Torrevieja
Villas modernas en la exclusiva zona de Los Balcones
Descubra estas impresionantes villas de nueva construcción, perfectamente ubicadas en la urbanización Los Balcones de Torrevieja. Diseñadas para el confort y la elegancia, estas viviendas de una sola planta ofrecen amplios interiores, acabados de alta calidad y piscina privada, lo que las convierte en la elección perfecta para aquellos que buscan un estilo de vida mediterráneo moderno.
Situadas en una zona tranquila y bien comunicada, estas villas están rodeadas de una amplia gama de servicios, incluyendo restaurantes, bares, centros comerciales y centros de salud, garantizando comodidad y una alta calidad de vida.
Diseño espacioso y funcional
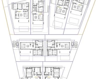
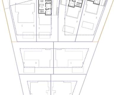
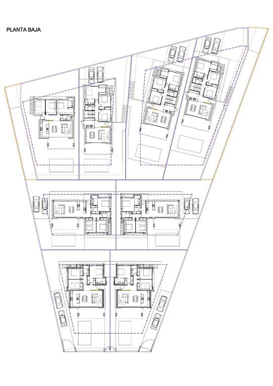
Cada una de las 8 villas independientes está construida sobre una generosa parcela de más de 400m², proporcionando un amplio espacio exterior. Las viviendas cuentan con:
3 amplios dormitorios y 2 cuartos de baño totalmente equipados.
Un gran salón-comedor de planta abierta, diseñado para ofrecer luz natural y comodidad.
Una moderna cocina abierta, perfectamente integrada en el salón.
Piscina privada, perfecta para refrescarse y entretenerse.
Plaza de aparcamiento para dos coches en la parcela.
Solarium privado con vistas abiertas, ideal para tomar el sol y relajarse.
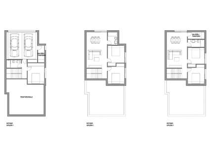
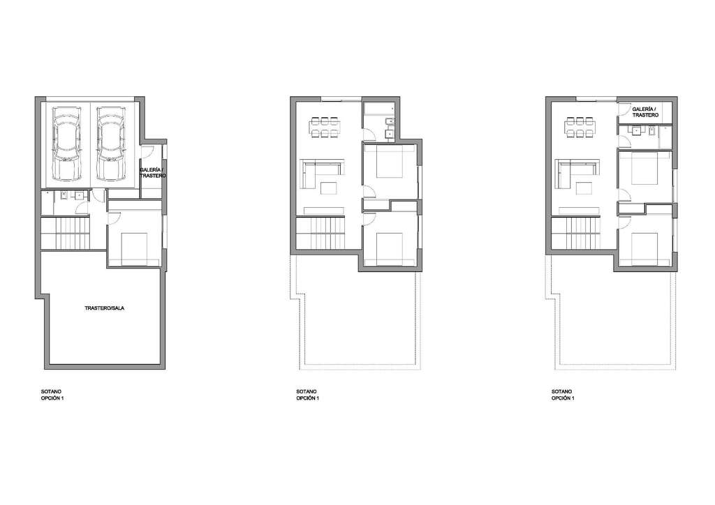
Sótano opcional disponible para espacio adicional de vivienda o almacenamiento (con coste adicional).
Características y acabados de alta calidad
Construidas con materiales de primera calidad y diseñadas para un estilo de vida lujoso, estas villas incluyen:
Calefacción por suelo radiante en los baños, que garantiza el confort durante todo el año.
Paquete de iluminación incluido, que mejora el ambiente y la funcionalidad.
Diversas opciones de personalización, que permiten a los compradores adaptar los acabados a sus preferencias.
Ubicación privilegiada cerca de playas y servicios
Los Balcones es una zona residencial muy solicitada de Torrevieja, conocida por su ambiente tranquilo a la vez que cercana a los servicios esenciales. Estas villas disfrutan de una excelente conectividad con lugares clave:
Playas de Torrevieja - A sólo 3 km.
Aeropuerto Internacional de Alicante - 40 km (aprox. 35 minutos en coche).
Centros Comerciales (La Zenia Boulevard, Habaneras) - 10-15 minutos en coche.
Campos de Golf (Villamartín, Las Ramblas, Campoamor) - 15-20 minutos en coche.
Centro de Torrevieja - 3 km.
Una excelente inversión y la casa de sus sueños
Con su ubicación privilegiada, diseño moderno y acabados de primera calidad, estas villas ofrecen una oportunidad increíble para inversión, vacaciones o residencia permanente en la Costa Blanca.
Póngase en contacto con nosotros para más información o para concertar una visita.
- 31/10/2025
- 120 m2
- 5.833,33 €/m2
- 3
- 2
Procare Estates
Contactar
Compartir
Tu opinión













































