Villa en venta en Torrevieja zona Costa Blanca
Datos básicos
- GSR-66904
- 499.000 €
- Alicante
- Torrevieja
- Costa Blanca
Distribución e instalaciones
- 3
- 2
Certificado energético
Detalles
499.000 €
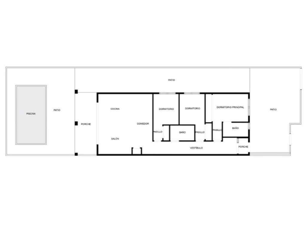
Esta villa independiente recientemente renovada en la tranquila zona residencial de El Chaparral, Torrevieja, ofrece una combinación perfecta de elegancia, comodidad y eficiencia. Elaborada con materiales de primera calidad, cuenta con tres amplios dormitorios con armarios empotrados y dos elegantes baños, incluido un lujoso cuarto de baño. Ambos baños cuentan con elegantes duchas a ras de suelo y calefacción por suelo radiante. El corazón de la villa es una luminosa sala de estar de planta abierta conectada a la perfección con una cocina moderna totalmente equipada. Este acogedor espacio se abre a una terraza cubierta con vistas a una piscina privada con ducha exterior, perfecta para disfrutar de la soleada orientación suroeste.Diseñada para la comodidad durante todo el año, la villa incluye persianas eléctricas en la sala de estar, aire acondicionado por conductos y características de ahorro de energía como paneles solares y un calentador de agua solar. La propiedad también ofrece una puerta de entrada eléctrica, estacionamiento privado, un trastero separado y un sistema de seguridad avanzado.El Chaparral es una tranquila zona residencial a las afueras de Torrevieja, rodeada de naturaleza y cerca de los icónicos lagos de agua salada de La Mata y Torrevieja. Conocido por su ambiente familiar, esta ubicación ofrece una amplia gama de servicios y excelentes conexiones de transporte. Las hermosas playas de Torrevieja y Guardamar están a poca distancia en coche.Esta villa es ideal tanto para vivir todo el año como para unas vacaciones inolvidables, ya que ofrece privacidad, comodidad y un estilo de vida relajado y de alta calidad en un entorno pintoresco.
- hace 19 días
- 3
- 2
Global Spain
Contactar
Compartir
Tu opinión


























