Villa en venta en Cuevas del Almanzora zona Desert Springs Golf Club
Datos básicos
- SP-68628
- 875.000 €
- 146 m2(5.993 €/m2)
- Almería
- Cuevas del Almanzora
- Desert Springs Golf Club
Distribución e instalaciones
- 3
- 4
Varios
- Sí
Certificado energético
- B
Detalles
875.000 €
IMPRESIONANTES VILLAS DE NUEVA CONSTRUCCIÓN EN DESERT SPRINGS RESORT
Esta hermosa urbanización moderna y elegante ocupa una posición envidiable en el complejo Desert Springs y ofrece una selección de villas de tres dormitorios con impresionantes vistas al campo de golf Indiana y a las montañas.
Un patio delantero cerrado, amplios porches sombreados, un jardín privado con vistas directas al campo de golf, piscina individual, barbacoa de obra y amplias terrazas en la azotea son sólo algunas de las características exteriores de las propiedades.
El diseño contemporáneo y la luz natural, con una sensación general de espacio, son las características más destacadas de los sofisticados interiores, que ofrecen viviendas elegantes con un atractivo moderno.
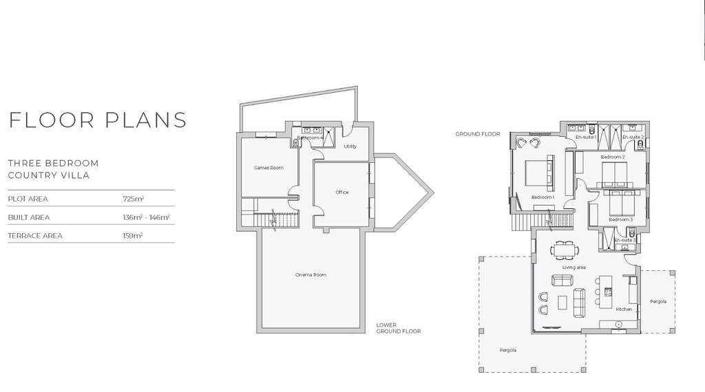
Las características incluyen una espaciosa zona de recepción interna que se abre con un suelo "nivelado" a los porches cubiertos y al jardín para ofrecer más de 93m2 de espacio interior/exterior combinado de salón y comedor, diseñado para ser utilizado como uno solo en el clima especialmente privilegiado de la región.
El dormitorio principal, con baño en suite, tiene acceso directo a la amplia terraza y a la piscina. Hay dos dormitorios más, ambos con baño en suite y aseo.
En la planta baja hay una sala de juegos, una sala de cine, un lavadero, un despacho y un cuarto baño.
Doble acristalamiento, cocina amueblada de alta calidad, electrodomésticos y armarios empotrados en los dormitorios, y accesorios de seguridad son estándar en todas partes.
Un sistema de ventilación mecánica en la planta baja y la planta baja y paneles fotovoltaicos conectados al acumulador de agua caliente con unidades de aire acondicionado frío/calor controladas individualmente en el salón y los dormitorios, satisfacen plenamente todas las necesidades de control de temperatura.
- 29/09/2025
- 146 m2
- 5.993,15 €/m2
- 3
- 4
WGN Spain
Contactar
Compartir
Tu opinión











