Villa en venta en Cuevas del Almanzora zona Desert Springs Golf Club
Datos básicos
- NBZH-59135
- 1.025.000 €
- 146 m2(7.021 €/m2)
- Almería
- Cuevas del Almanzora
- Desert Springs Golf Club
Distribución e instalaciones
- 3
- 4
Varios
- Sí
Certificado energético
Detalles
1.025.000 €
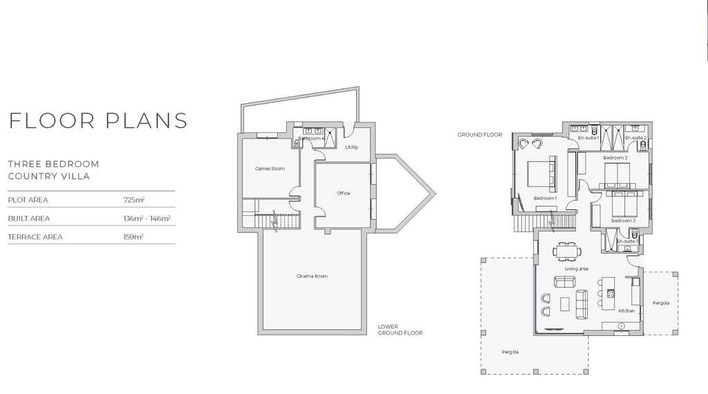
IMPRESIONANTES VILLAS DE NUEVA CONSTRUCCIÓN EN DESERT SPRINGS RESORT #13; #13;Esta hermosa urbanización moderna y elegante ocupa una posición envidiable en el complejo Desert Springs y ofrece una selección de villas de tres dormitorios con impresionantes vistas al campo de golf Indiana y a las montañas. #13; #13;Un patio delantero cerrado, amplios porches sombreados, un jardín privado con vistas directas al campo de golf, piscina individual, barbacoa de obra y amplias terrazas en la azotea son sólo algunas de las características exteriores de las propiedades. #13; #13;El diseño contemporáneo y la luz natural, con una sensación general de espacio, son las características más destacadas de los sofisticados interiores, que ofrecen viviendas elegantes con un atractivo moderno. #13; #13;Las características incluyen una espaciosa zona de recepción interna que se abre con un suelo "nivelado" a los porches cubiertos y al jardín para ofrecer más de 93m2 de espacio interior/exterior combinado de salón y comedor, diseñado para ser utilizado como uno solo en el clima especialmente privilegiado de la región. #13; #13;El dormitorio principal, con baño en suite, tiene acceso directo a la amplia terraza y a la piscina. Hay dos dormitorios más, ambos con baño en suite y aseo. #13; #13;En la planta baja hay una sala de juegos, una sala de cine, un lavadero, un despacho y un cuarto baño. #13; #13;Doble acristalamiento, cocina amueblada de alta calidad, electrodomésticos y armarios empotrados en los dormitorios, y accesorios de seguridad son estándar en todas partes. #13; #13;Un sistema de ventilación mecánica en la planta baja y la planta baja y paneles fotovoltaicos conectados al acumulador de agua caliente con unidades de aire acondicionado frío/calor controladas individualmente en el salón y los dormitorios, satisfacen plenamente todas las necesidades de control de temperatura. #13;
- hace 23 días
- 146 m2
- 7.020,55 €/m2
- 3
- 4
Zebra Homes
Contactar
Compartir
Tu opinión











