Villa en venta en Pulpí zona San Juan de los Terreros
Datos básicos
- SP-31039
- 394.500 €
- 125 m2(3.156 €/m2)
- Almería
- Pulpí
- San Juan de los Terreros
Distribución e instalaciones
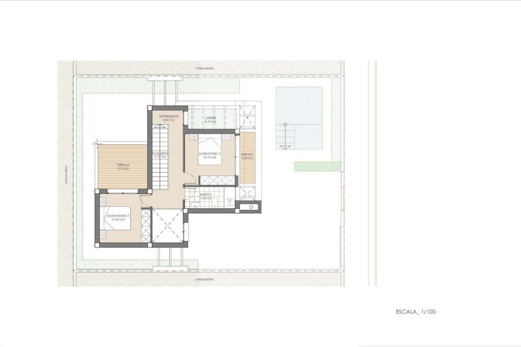
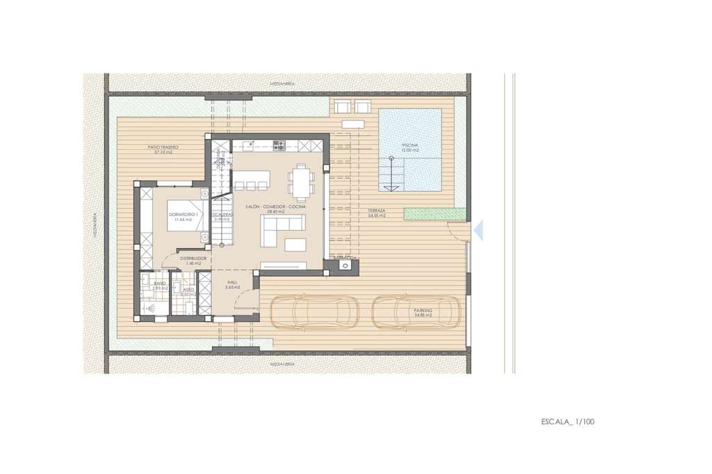
- 3
- 2
Varios
- Sí
Certificado energético
- B
Detalles
394.500 €
VILLAS DE OBRA NUEVA EN SAN JUAN DE LOS TERREROS
La arquitectura contemporánea e innovadora de las villas modernas llega para crear un complejo residencial situado en la localidad de San Juan de los Terreros en Pulpí, Almería, en el sur de España.
Estas cuidadas viviendas y complejo residencial combinan un excepcional nivel de diseño y calidad con los más altos estándares de sostenibilidad y bienestar. Viviendas meticulosamente diseñadas por el equipo técnico de arquitectos, para que la luz, la amplitud y la orientación doten a cada vivienda y parcela de un carácter especial. Espacios únicos que abren la puerta a un nuevo estilo de vida para disfrutar.
La cimentación y estructura de las viviendas están resueltas con hormigón armado y bajo garantía decenal.
Fachadas diseñadas para reducir la demanda energética de la vivienda, combinadas con diversos materiales para conseguir una estética coherente en cuanto a composición y color como se refleja en la infografía.
Amplias terrazas dotadas de sólidos antepechos para proporcionar seguridad en las barandillas de las terrazas, otorgando amplitud y luminosidad.
Los cerramientos exteriores de la parcela se tratarán con los mismos materiales utilizados en la vivienda, garantizando la integración en el conjunto residencial.
Cubiertas planas ventiladas y aisladas sobre forjados, con diferentes acabados según su ubicación y uso.
La puerta de entrada a la vivienda será blindada. Las puertas del dormitorio principal, baños secundarios y aseos incluirán cerraduras.
La carpintería exterior constará de ventanas y balconeras de Aluminio lacado
con persianas enrollables de lamas de aluminio, motorizadas en salones.
Sistema de video portero, que garantiza el control de acceso individual para cada una de las viviendas.
Los cuartos de baño estarán equipados con lavabo, inodoro y ducha, y los aseos dispondrán de inodoro y lavabo.
Los baños cuentan con sanitarios de diseño moderno, de porcelana vitrificada acabada en blanco, de la marca Roca y modelo Gap, con grifería monomando cromada o negro mate a elegir.
Las mamparas de ducha irán fijadas con cristal templado de 8mm con una longitud de 80cm.
Cada preinstalación está diseñada para un sistema de hasta 10 paneles, que pueden instalarse con un inversor solar conectado a la red eléctrica de la vivienda para minimizar el consumo eléctrico.
Estos paneles se integrarán en el tejado, en la zona de instalación, ocultos desde el exterior de la vivienda.
La entrada de aire a las viviendas se asegurará mediante la incorporación de un sistema de microventilación en las ventanas de salones y dormitorios.
Salida de humos independiente para campana extractora de cocina.
Preinstalación de domótica en la vivienda con preparación para una futura instalación de domótica para control de climatización y calefacción de habitaciones, persianas y posibles sistemas de alarma de intrusión.
Preinstalación de videovigilancia en la zona de aparcamiento y zonas interiores de la parcela.
Cada vivienda dispondrá de una cocina totalmente instalada y acabada en color blanco mate, según diseño, con sistema GOLA.
Los armarios interiores serán blancos, con puertas abatibles y cajones con freno bajo placa vitrocerámica, listos para instalar electrodomésticos vistos. Los electrodomésticos no están incluidos.
Los dormitorios con armarios empotrados se entregarán con puertas correderas en color blanco mate.
Estas viviendas se caracterizarán por su eficiencia y ahorro energéticos, así como por su baja contaminación.
Están diseñadas con un enfoque de mayor eficiencia para un menor consumo energético, promoviendo un uso racional de la energía a la vez que se cuida el medio ambiente, la calidad y el confort climático dentro de la vivienda.
Los vidrios de baja emisividad evitan la pérdida de calor hacia el exterior, lo que se traduce en un ahorro económico al retener el calor en la vivienda durante el invierno y evitar la entrada de calor durante el v...
- hace 5 días
- 125 m2
- 3.156 €/m2
- 3
- 2
Global Spain
Contactar
Compartir
Tu opinión





















