Villa en venta en Vera zona Vera Playa
Datos básicos
- M-49612
- 459.000 €
- 125 m2(3.672 €/m2)
- Almería
- Vera
- Vera Playa
Distribución e instalaciones
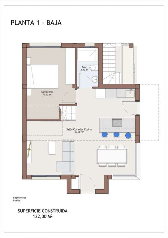
- 3
- 3
Varios
- Sí
Certificado energético
- B
Detalles
459.000 €
VILLAS DE NUEVA CONSTRUCCIÓN EN VERA, ALMERIA Residencial de obra nueva de bonitos chalets situados en la Costa de . Almería, Vera. Residencial de obra nueva de chalets independientes a elegir entre dos modelos: de doble altura, con tres dormitorios y tres baños y de tres dormitorios con dos baños, todo en una planta. Ambos con piscina de 6x3 metros y sobre una parcela de 230 metros aproximadamente. Como opción, todas las villas pueden disponer de espacio en el sótano con un coste adicional. Chalets situados a tan sólo 200 metros de la playa de Vera. Vera es uno de los mejores lugares naturistas de Europa, reconocido por la calidad y pureza de sus aguas. Ofrece seis kilómetros de playas (Las Marinas-Bolaga, Puerto Rey, El Playazo, Quitapellejos). Vera limita con los famosos destinos turísticos como Mojácar y las Cuevas del Almanzora. Complejo residencial situado a una hora y media en coche del aeropuerto de Murcia - Corvera y a unas 2 horas del aeropuerto de Alicante.
- 13/10/2025
- 125 m2
- 3.672 €/m2
- 3
- 3
Medimar Eiendom
Contactar
Compartir
Tu opinión













































