Villa en venta en Vera
Datos básicos
- ETRV-T4982
- 539.000 €
- 90 m2(5.989 €/m2)
- Almería
- Vera
Distribución e instalaciones
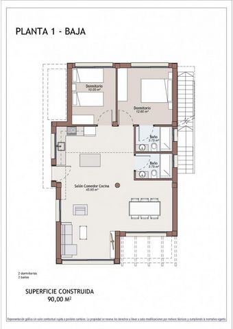
- 2
- 2
Varios
- 248 m2
- Sí
Certificado energético
- B
Detalles
539.000 €
Residencial de obra nueva de bonitos chalets situados en la Costa de Almería, Vera.
Residencial de obra nueva de chalets independientes a elegir entre dos modelos: de doble altura, con 3 dormitorios y tres baños y de 2/3 dormitorios con dos baños, todo en una planta.
Ambos con piscina de 6x3 metros y sobre una parcela de 230 metros aproximadamente.
Como opción, todas las villas pueden disponer de espacio en el sótano con un coste adicional.
Chalets situados a tan sólo 200 metros de la playa de Vera.
Vera es uno de los mejores lugares naturistas de Europa, reconocido por la calidad y pureza de sus aguas.
Ofrece seis kilómetros de playas (Las Marinas-Bolaga, Puerto Rey, El Playazo, Quitapellejos).
Vera limita con los famosos destinos turísticos como Mojácar y las Cuevas del Almanzora.
Complejo residencial situado a una hora y media en coche del aeropuerto de Murcia - Corvera y a unas 2 horas del aeropuerto de Alicante.
- 25/10/2025
- 90 m2
- 5.988,89 €/m2
- 2
- 2
- 248 m2
ArKadia Publishing Ltd 3
Contactar
Compartir
Tu opinión
Mapa













































