Villa en venta en Vera zona Vera Playa

45
Villa en venta en Vera zona Vera Playa
Datos básicos
  • SP-50953
  • 459.000
  • 125 m2(3.672 €/m2)
  • Almería
  • Vera
  • Vera Playa
Distribución e instalaciones
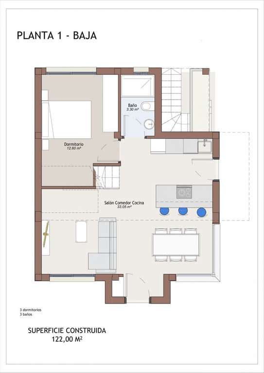
  • 3
  • 3
Varios
Certificado energético
  • B
Detalles
459.000
VILLAS DE NUEVA CONSTRUCCIÓN EN VERA, ALMERIA Residencial de obra nueva de bonitos chalets situados en la Costa de . Almería, Vera. Residencial de obra nueva de chalets independientes a elegir entre dos modelos: de doble altura, con tres dormitorios y tres baños y de tres dormitorios con dos baños, todo en una planta. Ambos con piscina de 6x3 metros y sobre una parcela de 230 metros aproximadamente. Como opción, todas las villas pueden disponer de espacio en el sótano con un coste adicional. Chalets situados a tan sólo 200 metros de la playa de Vera. Vera es uno de los mejores lugares naturistas de Europa, reconocido por la calidad y pureza de sus aguas. Ofrece seis kilómetros de playas (Las Marinas-Bolaga, Puerto Rey, El Playazo, Quitapellejos). Vera limita con los famosos destinos turísticos como Mojácar y las Cuevas del Almanzora. Complejo residencial situado a una hora y media en coche del aeropuerto de Murcia - Corvera y a unas 2 horas del aeropuerto de Alicante. 425
  • hace 5 días
  • 125 m2
  • 3.672 €/m2
  • 3
  • 3
Contactar
Compartir
Tu opinión
×Esta web utiliza cookies técnicas, de personalización y análisis, propias y de terceros, para facilitarle la navegación de forma anónima y analizar estadísticas del uso de la web. Consideramos que si continúa navegando, acepta su uso. Más información.