Apartamento en venta en Ses Salines zona Colònia de Sant Jordi
Datos básicos
- BCLW-T2935
- 595.000 €
- 118 m2(5.042 €/m2)
- Baleares
- Ses Salines
- Colònia de Sant Jordi
Distribución e instalaciones
- 0
- 0
- 1
- 1
Certificado energético
Detalles
595.000 €
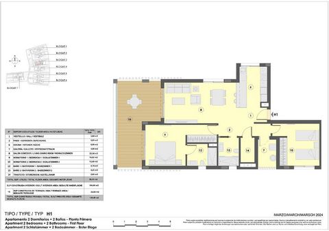
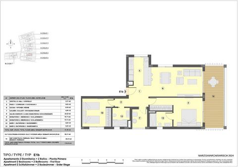
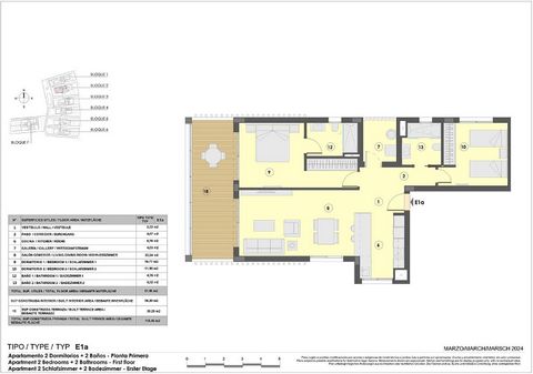
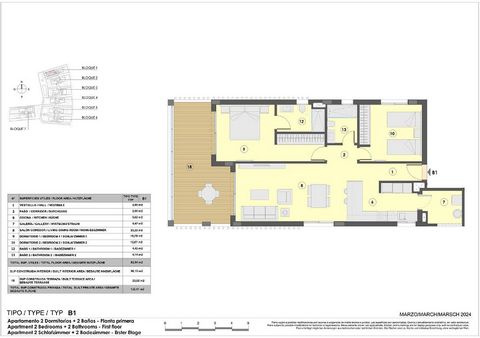
Descripción del objeto: Apartamentos cerca de la playa que constan de una superficie construida de unas 118 m² - 191 m² (varios modelos, incluyendo terrazas) con 2 dormitorios, 2 cuartos de baño (1 en-suite), 1 salón / comedor con cocina moderna, 1 galería y 1 terraza (a unos 20 m² - 93 m²). La urbanización está ubicado en Colonia de Sant Jordi, a 300 metros de la playa Els Estanys y la playa de Es Trenc y junto a las Salinas de S’Avall. Este residencial contará con viviendas de diferente tipología: apartamentos con amplio jardín y terrazas, áticos con solárium y dúplex con jardín. Sus maravillosas zonas comunes incluyen piscina, jacuzzi, tumbonas, playa-piscina y caminos interiores enmarcados en el mismo residencial. Además, todas las viviendas son muy luminosas con amplios ventanales para aprovechar las horas de sol y luz natural. Todas las viviendas contarán con plaza de aparcamiento y trastero. Un proyecto donde vivir y disfrutar del clima mediterráneo. Equipamiento adicional: El equipamiento de alta calidad de las viviendas incluye entre otras cosas aire acondicionado, ventanas y puertas de PVC con doble acristalamiento, puertas de seguridad, cocinas amuebladas con armarios altos y bajos y campana extractora de humos, armarios empotrados en dormitorios y aparatos sanitarios de 1ª calidad, muebles de lavabo con espejo, mamparas y suelo radiante en baños. En los solarios se instalarán una barbacoa, una ducha al aire libre y un armario bajo. Todas las viviendas cuentan con una plaza de aparcamiento en sótano y un trastero Pagando un sobreprecio las viviendas se entregarán también completamente amuebladas, es decir dotadas con muebles nuevos, una cocina integral con electrodomésticos y equipamiento básico de todo tipo de utensilios de cocina (lavadora, cafetera eléctrica, plancha, ollas, vajilla, cubiertos, etc.) así como ropa de cama, toallas, lámparas y cortinas para que uno pueda instalarse enseguida. El estilo del mobiliario y equipamiento es opcional. Ubicación de casa/solar: La Colonia de Sant Jordi es uno de los pueblos más pintorescos de Mallorca. Antiguamente, este pueblo era conocido por su tradición pesquera y por albergar las Salinas de S’Avall, unas de las más antiguas del mundo, y muy bonitas por su característico color rosado. Un lugar donde dejarte cautivar por la belleza de sus atardeceres con las Salinas de S’Avall y la isla de Cabrera en el horizonte. Un paseo marítimo que bordea el litoral de Colonia de Sant Jordi con un puerto marítimo, una amplia oferta de servicios y ocio: restaurantes, varios supermercados, un colegio, servicio de alquiler de coches y un mercadillo semanal con comida, flores, ropa y artesanía. Un pueblo pintoresco con mucho encanto.
- hace 3 días
- 118 m2
- 5.042,37 €/m2
- 0
- 0
ArKadia Publishing Ltd 4
Contactar
Compartir
Tu opinión
Mapa




















