Piso en venta en Sabadell
Datos básicos
- 000532
- 278.894 €
- 68 m2(4.101 €/m2)
- Barcelona
- Sabadell
- Bien
- 2.025(1 años)
Distribución e instalaciones
- 3
- 2 (dobles 1, interiores 1)
- 2
- 1(35 m2)
- 1
Varios
- Acumuladores calor azul
- Sí
Certificado energético
Detalles
278.894 €
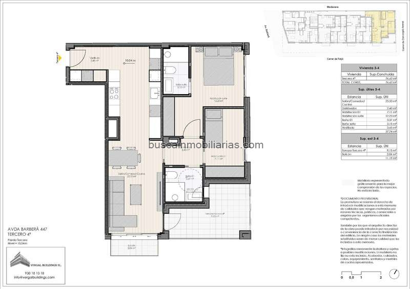
PISOS CASTELLAR COMERCIALIZA PISO CON TERRAZA EN LA CREU DE BARBERÀ
Con una fantástica ubicación, en el punto neurálgico del barrio de la Creu de Barberà, situada en la Avenida Barberà 447, esquina con la Calle de Fatjó. Muy bien comunicada y con todo tipo de servicios, supermercados y comercios alrededor, convierten esta promoción en una fantástica opción de compra.
La promoción consta de 17 viviendas de una, dos y tres habitaciones, un local comercial, plazas de aparcamiento y trasteros.
Ascensor desde la planta sótano hasta la planta cuarta.
3º 4ª. Piso en tercera planta. Consta de 68 m2 construidos distribuidos en dos dormitorios, uno de ellos suite, un segundo baño, salón/comedor con cocina americana de 26 m2 y salida a balcón y a una terraza de 8 m2. Ventanas de techo a suelo para una gran entrada de luz.
Acabados modernos y funcionales, cierres de aluminio con doble acristalamiento y rotura de puente térmico, persianas eléctricas, carpintería interior lacada blanca, suelos de parqué con zócalo blanco, excepto en los baños donde hay gres porcelánico.
Baños equipados con plato de ducha, sanitarios, grifos, mueble, luces, espejo y mampara.
Cocinas con muebles de la marca Santos en una combinación de color blanco y olmo, frontal y encimera de Silestone y equipadas con horno eléctrico, microondas, encimera de inducción, campana extractora y caldera mixta para calefacción y ACS.
La fachada del edificio es de monocapa y obra vista.
En la planta sótano hay ubicadas plazas de aparcamiento y trasteros Y en la planta superior hay una terraza comunitaria.
Quieres conocer más detalles de esta promoción?
Llama ahora o ven a nuestra oficina en Avda. Sant Esteve, 45 de Castellar del Vallès, te mostraremos todo el proyecto y te explicaremos los detalles de construcción, como trabajamos y los acabados que ofrecemos.
*Infografías meramente ilustrativas y sujetas a posibles modificaciones. Mobiliario no incluido, acabados, calidades, colores, equipamiento, sanitarios y muebles de cocina aproximados.
Con una fantástica ubicación, en el punto neurálgico del barrio de la Creu de Barberà, situada en la Avenida Barberà 447, esquina con la Calle de Fatjó. Muy bien comunicada y con todo tipo de servicios, supermercados y comercios alrededor, convierten esta promoción en una fantástica opción de compra.
La promoción consta de 17 viviendas de una, dos y tres habitaciones, un local comercial, plazas de aparcamiento y trasteros.
Ascensor desde la planta sótano hasta la planta cuarta.
3º 4ª. Piso en tercera planta. Consta de 68 m2 construidos distribuidos en dos dormitorios, uno de ellos suite, un segundo baño, salón/comedor con cocina americana de 26 m2 y salida a balcón y a una terraza de 8 m2. Ventanas de techo a suelo para una gran entrada de luz.
Acabados modernos y funcionales, cierres de aluminio con doble acristalamiento y rotura de puente térmico, persianas eléctricas, carpintería interior lacada blanca, suelos de parqué con zócalo blanco, excepto en los baños donde hay gres porcelánico.
Baños equipados con plato de ducha, sanitarios, grifos, mueble, luces, espejo y mampara.
Cocinas con muebles de la marca Santos en una combinación de color blanco y olmo, frontal y encimera de Silestone y equipadas con horno eléctrico, microondas, encimera de inducción, campana extractora y caldera mixta para calefacción y ACS.
La fachada del edificio es de monocapa y obra vista.
En la planta sótano hay ubicadas plazas de aparcamiento y trasteros Y en la planta superior hay una terraza comunitaria.
Quieres conocer más detalles de esta promoción?
Llama ahora o ven a nuestra oficina en Avda. Sant Esteve, 45 de Castellar del Vallès, te mostraremos todo el proyecto y te explicaremos los detalles de construcción, como trabajamos y los acabados que ofrecemos.
*Infografías meramente ilustrativas y sujetas a posibles modificaciones. Mobiliario no incluido, acabados, calidades, colores, equipamiento, sanitarios y muebles de cocina aproximados.
- 4/12/2025
- Bien
- 68 m2
- 4.101,38 €/m2
- 2
- 2
- 2025
Características
Puerta de seguridad | Video portero
PISOS CASTELLAR
Contactar
Compartir
Tu opinión












