Planta baja en venta en Sabadell
Datos básicos
- APS0215-000522
- 273.124 €
- 87 m2(3.139 €/m2)
- Barcelona
- Sabadell
- Bien
- 2.025(1 años)
Distribución e instalaciones
- 3 (dobles 1, interiores 2)
- 2
- 1
Varios
- Acumuladores calor azul
- Sí
Certificado energético
- B
Detalles
273.124 €
MB immobles/ APIALIA SABADELL comercialitza aquesta planta baixa que forma part de la Promoció de pisos amb terrassa a la Creu de Barberà
Excel·lent ubicació al cor del barri de la Creu de Barberà, concretament a l’Avinguda Barberà 447, cantonada amb el carrer de Fatjó. Perfectament comunicada i envoltada de tot tipus de serveis, supermercats i comerç de proximitat, aquesta promoció es presenta com una opció de compra ideal tant per viure-hi com per invertir.
La promoció consta de 17 habitatges d’una, dues i tres habitacions, un local comercial, places d’aparcament i trasters. L’edifici disposa d’ascensor des de la planta soterrani fins a la quarta planta.
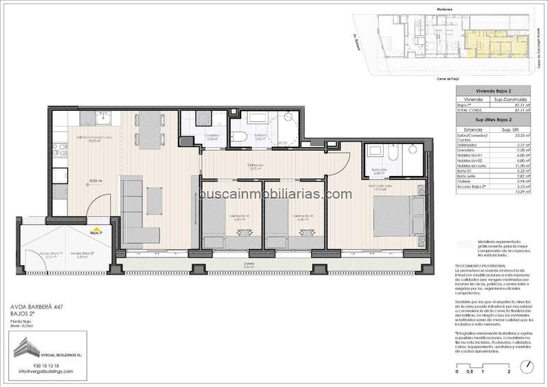
Baixos 2a – Habitatge amb entrada independent i espais amplis a la Creu de Barberà
Pis situat a la planta baixa amb accés independent des del carrer de Fatjó. Disposa de 87,45 m2 construïts, distribuïts en tres dormitoris (un d’ells tipus suite), un segon bany complet, una sala d’estar/menjador amb cuina americana de més de 25 m2, safareig independent i una galeria exterior de més de 5 m2, que garanteix privacitat sense renunciar a la llum natural.
Acabats moderns i funcionals:
Tancaments d’alumini amb doble vidre i trencament de pont tèrmic
Persianes elèctriques
Fusteria interior lacada en blanc
Terres de parquet amb sòcol blanc (gres porcellànic als banys)
Banys completament equipats, amb plat de dutxa, sanitaris, aixetes, mobles, il·luminació, mirall i mampara.
Cuina equipada amb mobiliari de la marca Santos, en combinació de blanc i olivera, amb frontal i encimera de Silestone. Inclou forn elèctric, microones, placa d’inducció, campana extractora i caldera mixta per a calefacció i aigua calenta sanitària.
L’edifici presenta una façana de monocapa i obra vista, que aporta una estètica moderna i duradora.
A la planta soterrani es troben les places d’aparcament i els trasters, i a la planta superior, una terrassa comunitària per a ús i gaudi dels veïns.
No t'ho perdis!
Excel·lent ubicació al cor del barri de la Creu de Barberà, concretament a l’Avinguda Barberà 447, cantonada amb el carrer de Fatjó. Perfectament comunicada i envoltada de tot tipus de serveis, supermercats i comerç de proximitat, aquesta promoció es presenta com una opció de compra ideal tant per viure-hi com per invertir.
La promoció consta de 17 habitatges d’una, dues i tres habitacions, un local comercial, places d’aparcament i trasters. L’edifici disposa d’ascensor des de la planta soterrani fins a la quarta planta.
Baixos 2a – Habitatge amb entrada independent i espais amplis a la Creu de Barberà
Pis situat a la planta baixa amb accés independent des del carrer de Fatjó. Disposa de 87,45 m2 construïts, distribuïts en tres dormitoris (un d’ells tipus suite), un segon bany complet, una sala d’estar/menjador amb cuina americana de més de 25 m2, safareig independent i una galeria exterior de més de 5 m2, que garanteix privacitat sense renunciar a la llum natural.
Acabats moderns i funcionals:
Tancaments d’alumini amb doble vidre i trencament de pont tèrmic
Persianes elèctriques
Fusteria interior lacada en blanc
Terres de parquet amb sòcol blanc (gres porcellànic als banys)
Banys completament equipats, amb plat de dutxa, sanitaris, aixetes, mobles, il·luminació, mirall i mampara.
Cuina equipada amb mobiliari de la marca Santos, en combinació de blanc i olivera, amb frontal i encimera de Silestone. Inclou forn elèctric, microones, placa d’inducció, campana extractora i caldera mixta per a calefacció i aigua calenta sanitària.
L’edifici presenta una façana de monocapa i obra vista, que aporta una estètica moderna i duradora.
A la planta soterrani es troben les places d’aparcament i els trasters, i a la planta superior, una terrassa comunitària per a ús i gaudi dels veïns.
No t'ho perdis!
- hace 8 días
- Bien
- 87 m2
- 3.139,36 €/m2
- 3
- 2
- 2025
Características
Puerta de seguridad | Video portero
MB immobles
Contactar
Compartir
Tu opinión






