Casa en venta en Vacarisses
Datos básicos
- ADO0051
- 439.000 €
- 105 m2(4.181 €/m2)
- Barcelona
- Vacarisses
Distribución e instalaciones
- 4
- 3
Certificado energético
Detalles
439.000 €
CASAOPISO LES PRESENTA ESTA EXCLUSIVA NUEVA PROMOCIÓN EN VACARISSAS de Ubicación Premium y Diseño Excepcional
Descubra esta promoción residencial única de 9 viviendas unifamiliares de alto standing en una ubicación privilegiada en C/ Manresa 40. Un entorno tranquilo y exclusivo, diseñado para ofrecer la máxima calidad de vida y confort.
Características Destacadas de la Promoción
Tipología Variada: La promoción consta de 9 viviendas, incluyendo 3 casas aisladas que ofrecen una mayor privacidad y espacio, y 6 casas adosadas con un diseño moderno y funcional.
Viviendas Espaciosas: Cada una de las casas cuenta con 4 habitaciones dobles, garantizando amplitud y flexibilidad para toda la familia.
Zonas Comunitarias Exclusivas: Disfrute de un estilo de vida de lujo con equipamientos comunitarios de primera:
Piscina para refrescarse y relajarse.
Pista de Pádel la oportunidad perfecta para practicar deporte sin salir de casa.
Parcelas Individuales: Todas las viviendas están situadas en parcelas privadas con amplias zonas ajardinadas, ofreciendo un oasis personal de tranquilidad.
Distribución Interior Detallada
Las viviendas presentan una distribución óptima en dos plantas (Planta Baja y Planta Primera), diseñadas para maximizar la luz natural y el aprovechamiento de cada espacio:
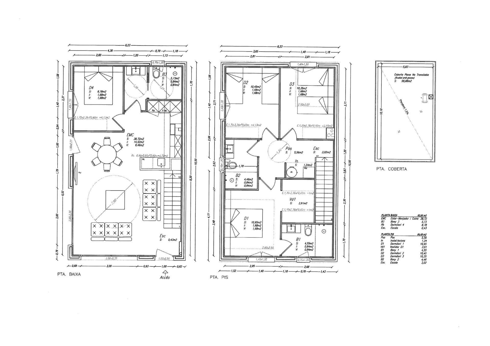
Planta Baja
Salón-Comedor-Cocina: Un espacio diáfano que integra la cocina, el comedor y la sala de estar, creando el corazón social de la casa, con acceso directo al jardín.
Dormitorio Habitación doble
Baño completo.
Escalera Acceso a la planta superior.
Garaje/Parking: Espacio para vehículos.
Planta Primera
Dormitorio 1 Habitación doble con vestidor (V) y baño (B).
Dormitorio 2 (D2): Habitación doble.
Dormitorio 3 (D3): Habitación doble.
Baño 1 (B1) y Baño 2 (B2): Dos baños adicionales, para dar servicio a las habitaciones de esta planta.
Distribuidor/Pasaje (Pas)
Calidades y Acabados
Carpintería exterior de alta eficiencia.
Suelos y revestimientos porcelánicos.
Cocinas totalmente equipadas.
Sistemas de climatización eficientes (Aerotermia).
¡Una oportunidad inmejorable para vivir en una casa de diseño, con todas las comodidades y en un entorno inigualable!
Para concertar una visita o para mas información no dudes en contactar-nos.
ENTREGA EN UN AÑO Y MEDIO.
Descubra esta promoción residencial única de 9 viviendas unifamiliares de alto standing en una ubicación privilegiada en C/ Manresa 40. Un entorno tranquilo y exclusivo, diseñado para ofrecer la máxima calidad de vida y confort.
Características Destacadas de la Promoción
Tipología Variada: La promoción consta de 9 viviendas, incluyendo 3 casas aisladas que ofrecen una mayor privacidad y espacio, y 6 casas adosadas con un diseño moderno y funcional.
Viviendas Espaciosas: Cada una de las casas cuenta con 4 habitaciones dobles, garantizando amplitud y flexibilidad para toda la familia.
Zonas Comunitarias Exclusivas: Disfrute de un estilo de vida de lujo con equipamientos comunitarios de primera:
Piscina para refrescarse y relajarse.
Pista de Pádel la oportunidad perfecta para practicar deporte sin salir de casa.
Parcelas Individuales: Todas las viviendas están situadas en parcelas privadas con amplias zonas ajardinadas, ofreciendo un oasis personal de tranquilidad.
Distribución Interior Detallada
Las viviendas presentan una distribución óptima en dos plantas (Planta Baja y Planta Primera), diseñadas para maximizar la luz natural y el aprovechamiento de cada espacio:
Planta Baja
Salón-Comedor-Cocina: Un espacio diáfano que integra la cocina, el comedor y la sala de estar, creando el corazón social de la casa, con acceso directo al jardín.
Dormitorio Habitación doble
Baño completo.
Escalera Acceso a la planta superior.
Garaje/Parking: Espacio para vehículos.
Planta Primera
Dormitorio 1 Habitación doble con vestidor (V) y baño (B).
Dormitorio 2 (D2): Habitación doble.
Dormitorio 3 (D3): Habitación doble.
Baño 1 (B1) y Baño 2 (B2): Dos baños adicionales, para dar servicio a las habitaciones de esta planta.
Distribuidor/Pasaje (Pas)
Calidades y Acabados
Carpintería exterior de alta eficiencia.
Suelos y revestimientos porcelánicos.
Cocinas totalmente equipadas.
Sistemas de climatización eficientes (Aerotermia).
¡Una oportunidad inmejorable para vivir en una casa de diseño, con todas las comodidades y en un entorno inigualable!
Para concertar una visita o para mas información no dudes en contactar-nos.
ENTREGA EN UN AÑO Y MEDIO.
- ayer
- 105 m2
- 4.180,95 €/m2
- 4
- 3
Casaopiso
Contactar
Compartir
Tu opinión












































