Ático en venta en San Roque zona La Alcaidesa
Datos básicos
- SP-67436
- 813.000 €
- 126 m2(6.452 €/m2)
- Cádiz
- San Roque
- La Alcaidesa
Distribución e instalaciones
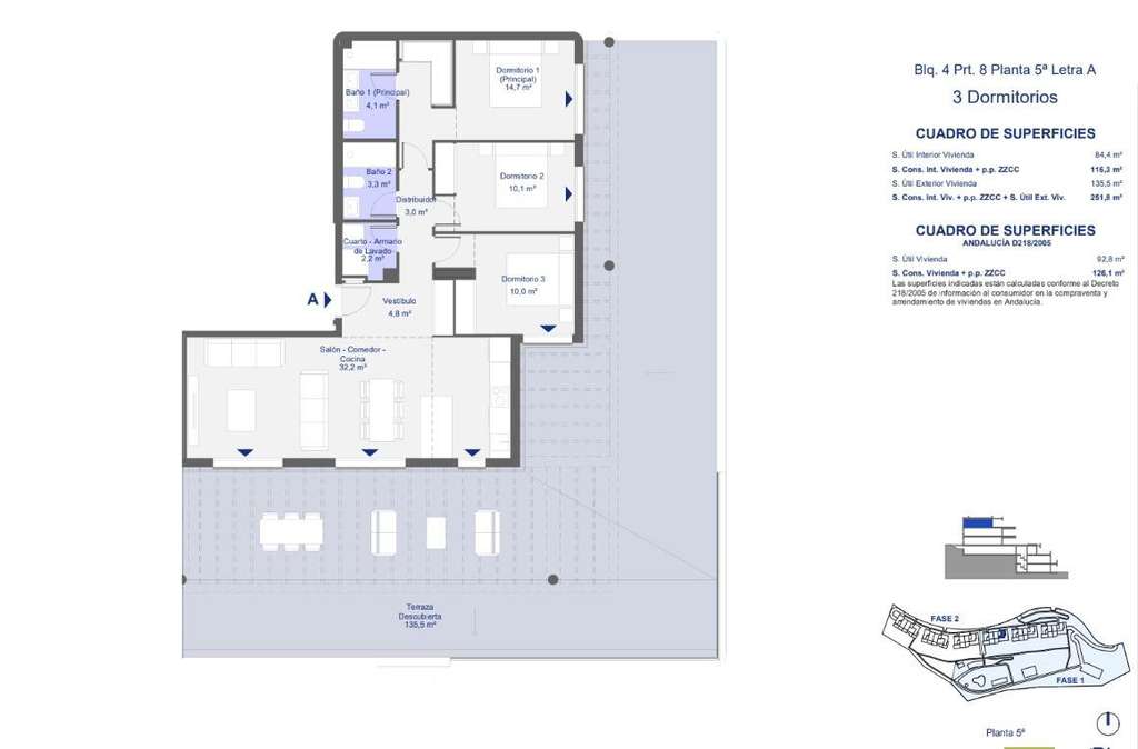
- 3
- 2
Varios
- Sí
Certificado energético
- A
Detalles
813.000 €
Exclusivo Residencial de Obra Nueva en La Alcaidesa con Vistas al Mar y al Golf
Viviendas modernas en una ubicación privilegiada de la Costa del Sol
Descubre este nuevo complejo residencial en La Alcaidesa, un enclave tranquilo y pintoresco junto al mar Mediterráneo. Esta exclusiva promoción ofrece 144 viviendas de obra nueva con 2 y 3 dormitorios, todas ellas con plaza de aparcamiento y trastero incluidos. Situado en primera línea del prestigioso campo de golf Alcaidesa y a solo 1.5 km de la playa, este residencial combina naturaleza, mar y estilo de vida contemporáneo en un entorno de total privacidad.
Diseño elegante, confort moderno y vistas despejadas
Las viviendas han sido diseñadas para maximizar el confort y la eficiencia energética, con orientación sur que proporciona abundante luz natural y espectaculares vistas abiertas al mar desde las plantas superiores. Todas las propiedades incluyen cocina amueblada y equipada con electrodomésticos, puerta de entrada blindada, aire acondicionado por conductos y una calificación energética AA que garantiza un alto ahorro energético y respeto por el medio ambiente.
Zonas comunes que elevan tu estilo de vida
Este complejo ha sido concebido para ofrecer mucho más que una vivienda. Sus extensas zonas comunes incluyen:
Piscina comunitaria con sistema de cloración salina
Jardines con vegetación autóctona y senderos naturales
Gimnasio completamente equipado y zona de meditación al aire libre
Spa, salón comunitario con espacio de co-working
Pista de vóley-playa y zona infantil para el entretenimiento de toda la familia
Entorno natural y acceso a servicios clave
Ubicado en una de las zonas más exclusivas de la Costa del Sol, La Alcaidesa ofrece un entorno natural inigualable y excelentes conexiones:
Playa de La Alcaidesa: 1.5 km
Campo de golf Alcaidesa: 1 km
Gibraltar: 17 km
Sotogrande: 10 km
Aeropuerto de Gibraltar: 22 km
Aeropuerto de Málaga-Costa del Sol: 115 km
Puerto deportivo de Sotogrande: 12 km
Centro comercial en La Línea de la Concepción: 15 km
Haz realidad tu hogar ideal en La Alcaidesa
Vive rodeado de naturaleza, golf y mar en una comunidad privada con todos los servicios. Contacta con nosotros hoy mismo para más información o para programar una visita a este excepcional residencial en La Alcaidesa.
425
- ayer
- 126 m2
- 6.452,38 €/m2
- 3
- 2
Global Spain
Contactar
Compartir
Tu opinión














