Villa en venta en San Roque
Datos básicos
- HQBI-T146
- 869.000 €
- 307 m2(2.831 €/m2)
- Cádiz
- San Roque
- Bien
Distribución e instalaciones
- 4
- 3
- 1
Varios
- Totalmente amueblado
- Sí
Certificado energético
Detalles
869.000 €
Este excepcional adosado, finalizado en 2022, combina un diseño moderno con unas vistas impresionantes al prestigioso San Roque Golf Club. Con 200 m² de espacio cuidadosamente diseñado, es ideal tanto como lujosa residencia vacacional como para vivir todo el año con total comodidad.
La vivienda dispone de 4 dormitorios, 3 baños más un aseo de invitados, un elegante salón-comedor de planta abierta, una moderna cocina totalmente equipada, amplios espacios de almacenamiento y 2 plazas de aparcamiento privadas, logrando una perfecta combinación de confort y funcionalidad.
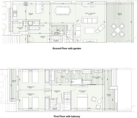
En la planta baja, un luminoso y espacioso salón se abre a una terraza orientada al oeste y a un jardín privado, creando un entorno perfecto para comidas al aire libre y reuniones, siempre con vistas despejadas al campo de golf. La cocina, de diseño moderno, está equipada con electrodomésticos de alta gama, mientras que un aseo de invitados y un trastero completan este nivel.
En la primera planta, la suite principal cuenta con baño en suite y una terraza acristalada privada con vistas al campo. Dos dormitorios adicionales comparten un elegante baño y tienen acceso a un balcón compartido.
La planta superior ofrece un dormitorio u oficina versátil con su propio baño y una terraza panorámica desde la que se pueden contemplar las amplias vistas al mar Mediterráneo, al campo de golf y a los cuidados jardines comunitarios. Los amplios ventanales con marcos de aluminio inundan la casa de luz natural, mientras que un sistema de aerotermia garantiza confort durante todo el año.
Ubicado en una urbanización cerrada con seguridad 24 horas, los residentes disfrutan de acceso exclusivo a instalaciones de primera calidad, que incluyen gimnasio, sauna y piscina comunitaria, todo ello rodeado de jardines exquisitamente mantenidos y alcornoques centenarios. La ubicación ofrece paz y privacidad, a tan solo unos minutos en coche de la playa de Alcaidesa y del puerto deportivo de Sotogrande.
La vivienda dispone de 4 dormitorios, 3 baños más un aseo de invitados, un elegante salón-comedor de planta abierta, una moderna cocina totalmente equipada, amplios espacios de almacenamiento y 2 plazas de aparcamiento privadas, logrando una perfecta combinación de confort y funcionalidad.
En la planta baja, un luminoso y espacioso salón se abre a una terraza orientada al oeste y a un jardín privado, creando un entorno perfecto para comidas al aire libre y reuniones, siempre con vistas despejadas al campo de golf. La cocina, de diseño moderno, está equipada con electrodomésticos de alta gama, mientras que un aseo de invitados y un trastero completan este nivel.
En la primera planta, la suite principal cuenta con baño en suite y una terraza acristalada privada con vistas al campo. Dos dormitorios adicionales comparten un elegante baño y tienen acceso a un balcón compartido.
La planta superior ofrece un dormitorio u oficina versátil con su propio baño y una terraza panorámica desde la que se pueden contemplar las amplias vistas al mar Mediterráneo, al campo de golf y a los cuidados jardines comunitarios. Los amplios ventanales con marcos de aluminio inundan la casa de luz natural, mientras que un sistema de aerotermia garantiza confort durante todo el año.
Ubicado en una urbanización cerrada con seguridad 24 horas, los residentes disfrutan de acceso exclusivo a instalaciones de primera calidad, que incluyen gimnasio, sauna y piscina comunitaria, todo ello rodeado de jardines exquisitamente mantenidos y alcornoques centenarios. La ubicación ofrece paz y privacidad, a tan solo unos minutos en coche de la playa de Alcaidesa y del puerto deportivo de Sotogrande.
- hace 21 días
- Bien
- 307 m2
- 2.830,62 €/m2
- 4
- 3
Características
Aire acondicionado
ArKadia Publishing Ltd 3
Contactar
Compartir
Tu opinión
Mapa































