Chalet en venta en Tomelloso
Datos básicos
- 6681E
- 165.000 €
- 264 m2(625 €/m2)
- Ciudad Real
- Tomelloso
- Bien
- Adosado
Distribución e instalaciones
- 4
- 3
- 1
Certificado energético
Detalles
165.000 €
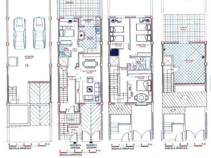
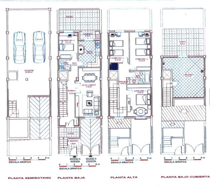
REFERENCIA: 6681E Se vende casa adosada en zona nuevo Mercadona en Tomelloso, Ciudad Real. Ubicada muy próxima a Avda. Juan Carlos I, tiene una superficie construida de 264 m2, distribuidos en dos plantas, buhardilla y garaje.
El garaje es amplio con capacidad para varios vehículos, cuenta con doble puerta automática y habitacióntrastero con ventana al exterior. La planta baja dispone un amplio salóncomedor exterior, cocina, baño completo con ducha, dormitorio con ventana al patio, lavadero y amplio patio. En la primera planta podemos encontrar un halldistribuidor con ventana al exterior y armario empotrado, 3 amplios dormitorios y 1 baño completo con bañera. En planta superior tenemos una amplia buhardilla con baño completo con ducha y ventana, y una espaciosa terraza privada.
La vivienda se encuentra a estrenar y está preparada con todas las preinstalaciones caldera, placas solares, cocina, termo. También se encuentra diseñada para la futura instalación de ascensor. Se entrega según aparece en las fotografías.
Excelentemente comunicada, se encuentra rodeada de todo tipo de servicios.
El garaje es amplio con capacidad para varios vehículos, cuenta con doble puerta automática y habitacióntrastero con ventana al exterior. La planta baja dispone un amplio salóncomedor exterior, cocina, baño completo con ducha, dormitorio con ventana al patio, lavadero y amplio patio. En la primera planta podemos encontrar un halldistribuidor con ventana al exterior y armario empotrado, 3 amplios dormitorios y 1 baño completo con bañera. En planta superior tenemos una amplia buhardilla con baño completo con ducha y ventana, y una espaciosa terraza privada.
La vivienda se encuentra a estrenar y está preparada con todas las preinstalaciones caldera, placas solares, cocina, termo. También se encuentra diseñada para la futura instalación de ascensor. Se entrega según aparece en las fotografías.
Excelentemente comunicada, se encuentra rodeada de todo tipo de servicios.
- 30/10/2025
- Bien
- 264 m2
- 625 €/m2
- Adosado
- 4
- 3
Contactar
Compartir
Tu opinión
Mapa



























