Chalet en venta en Tomelloso
Datos básicos
- 6682F
- 190.000 €
- 264 m2(720 €/m2)
- Ciudad Real
- Tomelloso
- 2.007(19 años)
- Adosado
Distribución e instalaciones
- 4
- 3
- 1
Certificado energético
Detalles
190.000 €
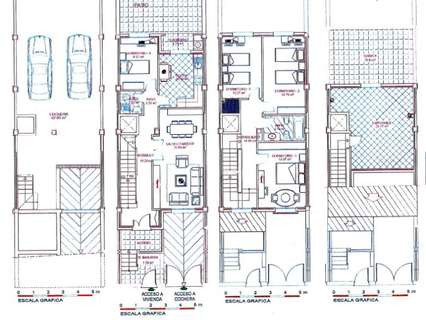
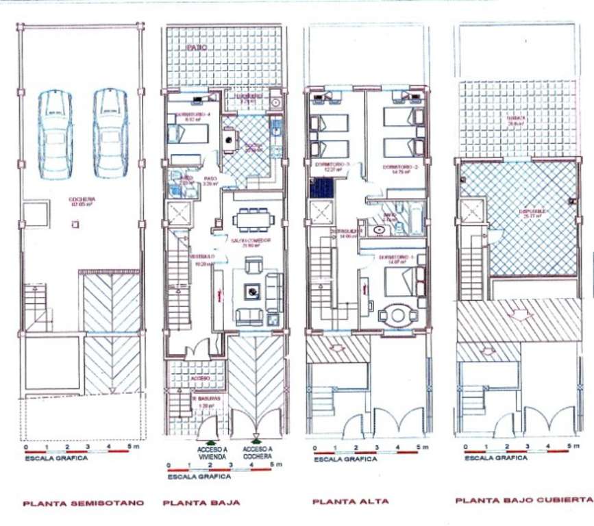
REFERENCIA: 6682F Adaix Tomelloso le ofrece espectacular casa adosada a estrenar en Tomelloso, Ciudad Real. Está situada muy próxima a Avda. Juan Carlos I, en zona nuevo Mercadona y tiene una superficie construida de 264 m2. La vivienda consta de dos plantas, buhardilla y garaje.
La planta baja distribuye un amplio salóncomedor, cocina totalmente amueblada, 1 dormitorio con ventana al patio, 1 baño con plato de ducha, lavadero y un espacioso patio.
En la primera planta podemos encontrar un halldistribuidor con armario empotrado, 3 dormitorios y 1 baño completo con bañera.
En la planta superior disponemos de una amplia buhardilla con baño con ducha y ventana, y una holgada terraza.
La planta inferior cuenta con un amplio garaje para varios vehículos con doble puerta automática y trastero con ventana al exterior.
Todas sus plantas se encuentran conectadas con un estupendo ascensor que facilita la movilidad dentro la vivienda.
El inmueble se encuentra en perfectas condiciones para entrar a vivir, es muy luminoso y dispone de calefacción de gas natural, puertas automáticas, molduras, ojos de buey, placas solares, preinstalación de aire acondicionado, ventiladores de techo, tomas de tv en todas las estancias y carpintería de pvc con climalit.
Perfectamente conectada dada su gran ubicación, cuenta con todo tipo de servicios en sus alrededores.
La planta baja distribuye un amplio salóncomedor, cocina totalmente amueblada, 1 dormitorio con ventana al patio, 1 baño con plato de ducha, lavadero y un espacioso patio.
En la primera planta podemos encontrar un halldistribuidor con armario empotrado, 3 dormitorios y 1 baño completo con bañera.
En la planta superior disponemos de una amplia buhardilla con baño con ducha y ventana, y una holgada terraza.
La planta inferior cuenta con un amplio garaje para varios vehículos con doble puerta automática y trastero con ventana al exterior.
Todas sus plantas se encuentran conectadas con un estupendo ascensor que facilita la movilidad dentro la vivienda.
El inmueble se encuentra en perfectas condiciones para entrar a vivir, es muy luminoso y dispone de calefacción de gas natural, puertas automáticas, molduras, ojos de buey, placas solares, preinstalación de aire acondicionado, ventiladores de techo, tomas de tv en todas las estancias y carpintería de pvc con climalit.
Perfectamente conectada dada su gran ubicación, cuenta con todo tipo de servicios en sus alrededores.
- 30/10/2025
- 264 m2
- 719,7 €/m2
- Adosado
- 4
- 3
- 2007
Contactar
Compartir
Tu opinión
Mapa































