Apartamento en venta en Benalmádena zona Monte Alto
Datos básicos
- NB-69288
- 518.000 €
- 110 m2(4.709 €/m2)
- Málaga
- Benalmádena
- Monte Alto
Distribución e instalaciones
- 2
- 2
Varios
- Sí
Certificado energético
Detalles
518.000 €
Viviendas de nueva construcción con vistas al mar en Benalmádena, Costa del Sol
Viviendas modernas con vistas panorámicas al mar
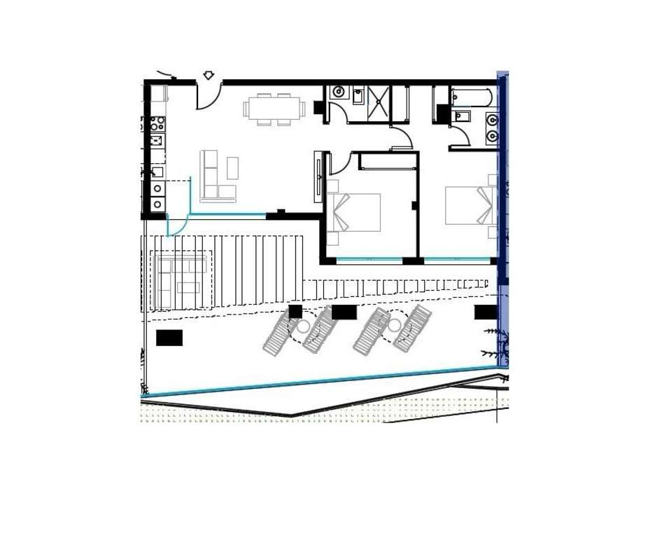
Descubra una exclusiva promoción residencial de 32 viviendas de nueva construcción en la zona de Monte Alto, en Benalmádena. Este proyecto boutique ofrece propiedades de 1, 2 y 3 dormitorios, incluyendo unidades en planta baja con jardines privados, amplios apartamentos en plantas intermedias con generosas terrazas e impresionantes áticos con grandes zonas exteriores y pérgolas. Todas las viviendas disfrutan de vistas panorámicas al mar y espectaculares vistas a la bahía de Benalmádena.
Calidad excepcional y diseño funcional
Diseñadas para mejorar su estilo de vida, estas viviendas combinan el estilo moderno con la comodidad. La orientación sur y las amplias terrazas, con una superficie media de más de 20 m2, garantizan una luz natural excepcional y una vida al aire libre. Cada propiedad incluye una cocina totalmente equipada con electrodomésticos, aire acondicionado por conductos, sistema de agua caliente aerotérmica y plaza de aparcamiento. Los áticos incluyen dos plazas de aparcamiento.
Instalaciones comunitarias de primera calidad
Disfrute de hermosos jardines y de una elegante piscina infinita donde podrá relajarse mientras admira las impresionantes vistas al mar. Manténgase activo en el gimnasio totalmente equipado con vistas al Mediterráneo. Cada detalle ha sido pensado para ofrecer una experiencia residencial tranquila y privilegiada.
Ubicación privilegiada en Benalmádena
Situada a solo 5 minutos a pie del campo de golf de Benalmádena, la urbanización se encuentra en una de las zonas residenciales más cotizadas de la Costa del Sol. Benalmádena ofrece una combinación perfecta entre el encanto tradicional andaluz y la vida costera moderna, con más de 300 días de sol al año.
Cómodo acceso a servicios y atracciones
A solo 3 km de las playas y calas de Benalmádena y perfectamente conectado con el transporte público, esta ubicación ofrece fácil acceso a todos los servicios esenciales, incluyendo centros comerciales, colegios, el hospital regional y tres campos de golf cercanos. El famoso Puerto Marina, uno de los principales destinos náuticos y de ocio de Europa, se encuentra a poca distancia en coche.
Distancias a puntos de interés clave
Aeropuerto de Málaga 15 km
Playa de Benalmádena: 3 km
Benalmádena Golf: 0,4 km
Puerto Marina: 6 km
Centro de Málaga: 20 km
Le espera un lujoso estilo de vida costero
Disfrute de la combinación perfecta de tranquilidad, comodidad y belleza mediterránea en una de las zonas más codiciadas de la Costa del Sol. Póngase en contacto con nosotros hoy mismo y haga realidad la casa de sus sueños con vistas al mar.
505
- 7/02/2026
- 110 m2
- 4.709,09 €/m2
- 2
- 2
Buy in Spain
Contactar
Compartir
Tu opinión










