Villa en venta en Benalmádena zona La Capellanía

38
Villa en venta en Benalmádena zona La Capellanía
Datos básicos
  • SP-58034
  • 2.950.000
  • 508 m2(5.807 €/m2)
  • Málaga
  • Benalmádena
  • La Capellanía
Distribución e instalaciones
  • 4
  • 4
Varios
Certificado energético
  • B
Detalles
2.950.000
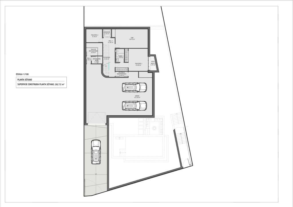
VILLAS DE OBRA NUEVA EN BENALMÁDENA Situada en la prestigiosa zona de La Capellanía, esta exclusiva colección de siete lujosas villas de obra nueva ofrece unas vistas incomparables del mar Mediterráneo, las majestuosas montañas y los pintorescos paisajes de Mijas y Fuengirola. El Concepto Nuestros proyectos se caracterizan por un diseño vanguardista, ubicaciones privilegiadas y una calidad superior, ofreciendo propiedades de ensueño a la clientela más exigente. Situado en el corazón de Benalmádena, La Capellanía, una zona muy encantadora y bien establecida, con hermosas villas blancas tradicionales españolas y verdes jardines alrededor. A sólo 15 minutos del aeropuerto de Málaga y 30 minutos de Marbella, esta promoción está elevando la zona a un nuevo nivel con lo mejor de ambos mundos. Disfrute de la proximidad a hermosas playas, campos de golf de clase mundial, restaurantes gourmet y vibrantes atracciones culturales. La planta baja cuenta con una amplia cocina abierta y sala de estar que se abre a amplias terrazas y una zona chill-out junto a la piscina. La planta superior incluye una suite principal con terraza privada y tres dormitorios adicionales, cada uno con baño privado, que ofrecen mucho espacio para relajarse. El sótano incluye un amplio garaje, una sala de cine y múltiples zonas de almacenamiento, todo ello conectado por un ascensor privado. EXTERIOR CIMIENTOS Y ESTRUCTURA - Hormigón armado mediante forjados aislados y reticulares. CERRAMIENTO EXTERIOR - Cerramiento exterior con ladrillo cerámico de 12 cm. Aislamiento de poliestireno extrusionado EPS, 4 cm de aislamiento Rockwoll o similar y doble trasdosado interior de pladur. CUBIERTA - Cubierta plana no transitable con aislamiento de XPS de 12 cm en la zona cubierta. - Alicatado para paneles solares. FACHADA - Revestimiento monocapa raspado blanco y paredes de piedra decoradas, según las especificaciones del diseño. - Pintado CARPINTERÍA EXTERIOR - Marcos de aluminio Schüco con rotura de puente térmico, empotrados en pavimento de salón. - Persianas venecianas eléctricas integradas en carpintería de Griesser. PAVIMENTO EXTERIOR - Porcelanosa 100×100 cm. ILUMINACIÓN EXTERIOR - Apliques exteriores y balizas de jardín según especificaciones de Diseño Exterior (si procede). EXTERIORES - Zonas comunes ajardinadas: Acabado según especificación de diseño paisajístico con sistema de riego e iluminación. - Piscina infinita privada: Según proyecto de diseño. TABIQUERÍA INTERIOR - Ladrillo acústico, doble, armado, con aislamiento térmico y acústico "lana de roca" si procede en las zonas definidas por la especificación de diseño interior. - Falsos techos en toda la vivienda. - Techos fonoabsorbentes en zonas de estar. PAVIMENTOS INTERIORES - Porcelanosa 100×100 cm y parquet de madera en dormitorios. - Zócalo de 7 cm integrado en las paredes. ILUMINACIÓN INTERIOR - LED interior en toda la vivienda. - Luz LED indirecta en cajas de cortinas y techo insonorizante en salón. - Interruptores y enchufes: Bticino Living Now PINTURA - Blanco liso RAL 9010. REVESTIMIENTOS DE BAÑO - Cerámica de alta gama de Porcelanosa. CALEFACCIÓN Y AIRE ACONDICIONADO - Aire acondicionado por conductos con bomba de calor de expansión directa. - Zona Aire -Toallero eléctrico en baños. - Suelo radiante por agua en toda la vivienda. - Suelo radiante eléctrico en baños. - Calefactor eléctrico aerotérmico. - Instalación de renovación y extracción de aire. En sus inmediaciones dispone de todos los servicios como restaurantes, golf, supermercados, colegios, centros de salud, estación de Renfe, etc. Benalmádena es una de las localidades más dinámicas y atractivas de la Costa del Sol. Su clima suave durante todo el año, sus hermosas playas, su amplia oferta de ocio, sus infraestructuras y sus buenas comunicaciones la convier...
  • hace 5 días
  • 508 m2
  • 5.807,09 €/m2
  • 4
  • 4
Contactar
Compartir
Tu opinión
×Esta web utiliza cookies técnicas, de personalización y análisis, propias y de terceros, para facilitarle la navegación de forma anónima y analizar estadísticas del uso de la web. Consideramos que si continúa navegando, acepta su uso. Más información.