Ático en venta en Casares zona Doña Julia Golf
Datos básicos
- SP-74063
- 750.000 €
- 160 m2(4.688 €/m2)
- Málaga
- Casares
- Doña Julia Golf
Distribución e instalaciones
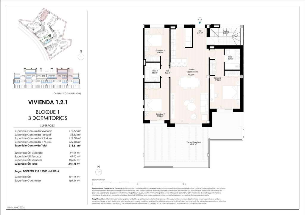
- 3
- 2
Varios
- Sí
Certificado energético
- B
Detalles
750.000 €
Apartamentos de nueva construcción en venta en Doña Julia Golf, Casares Costa
Exclusiva urbanización residencial en el corazón de la Costa del Sol
Descubra esta excepcional promoción de nueva construcción situada en la prestigiosa zona de Doña Julia Golf, en Casares. Con una ubicación perfecta entre Estepona, Sotogrande y Marbella, la residencia disfruta de una excelente conectividad con los principales destinos de la región. Rodeada de famosos campos de golf, se encuentra a solo 700 metros de algunas de las playas más vírgenes de la Costa del Sol y a pocos minutos de exclusivos puertos deportivos y zonas de ocio.
Viviendas modernas con vistas al mar
El complejo consta de 99 apartamentos de alta calidad de 2 y 3 dormitorios, todos ellos diseñados para aprovechar al máximo la luz natural y el estilo de vida mediterráneo. Las viviendas de la planta baja cuentan con jardines privados, mientras que los áticos disponen de soláriums con espectaculares vistas al mar. Todas las viviendas incluyen amplias terrazas, una plaza de aparcamiento privada y un trastero, lo que garantiza el confort y la funcionalidad.
Instalaciones comunes de primera calidad
Disfrute de un estilo de vida saludable y activo con unas excepcionales instalaciones comunes. Jardines paisajísticos, dos piscinas al aire libre para adultos y niños, un gimnasio totalmente equipado, circuito de calistenia, zona de coworking e incluso un simulador de golf cubierto forman parte de este exclusivo complejo. Para una relajación total, los residentes pueden descansar en la sauna y el hammam o disfrutar de la zona chill-out al aire libre con barbacoa. También hay aparcamiento para bicicletas dentro del recinto cerrado.
Interiores y acabados contemporáneos
Cada apartamento cuenta con cocinas de estilo italiano equipadas con electrodomésticos modernos, baños con muebles suspendidos y lavabo doble en las suites principales, y mamparas de ducha correderas.
Ubicación inmejorable y excelente conectividad
Con todas las comodidades a mano, como supermercados, farmacias y restaurantes, esta urbanización ofrece una combinación perfecta de tranquilidad y accesibilidad.
Distancias a los principales puntos de interés:
Playa: 0,7 km (15 minutos a pie)
Puerto deportivo de La Duquesa: 8 km (10 minutos en coche)
Centro de Estepona: 12 km (15 minutos en coche)
Puerto Banús: 28 km (25 minutos en coche)
Sotogrande: 26 km (25 minutos en coche)
Campos de golf (Doña Julia, Finca Cortesín, Estepona, Sotogrande): de 5 a 20 minutos en coche
Aeropuerto de Gibraltar: 40 km (45 minutos en coche)
Aeropuerto de Málaga: 90 km (1 hora y 10 minutos en coche)
Viva el estilo de vida de la Costa del Sol en Casares
Casares, un encantador pueblo blanco andaluz, ofrece una combinación perfecta de paisajes montañosos y playas mediterráneas vírgenes. Ya sea como residencia permanente, refugio vacacional o inversión, esta urbanización ofrece un confort inigualable, un diseño moderno y un entorno privilegiado.
Póngase en contacto con nosotros hoy mismo para asegurarse su nueva vivienda en Casares Costa y empezar a disfrutar del estilo de vida mediterráneo.
- 29/09/2025
- 160 m2
- 4.687,5 €/m2
- 3
- 2
WGN Spain
Contactar
Compartir
Tu opinión















