Villa en venta en Casares zona Pedregales
Datos básicos
- REX-47286
- 5.750.000 €
- 578 m2(9.948 €/m2)
- Málaga
- Casares
- Pedregales
Distribución e instalaciones
- 4
- 4
Varios
- Sí
Certificado energético
Detalles
5.750.000 €
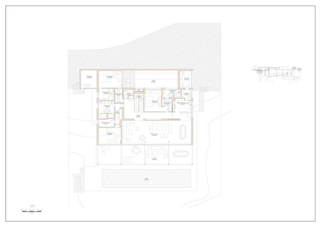
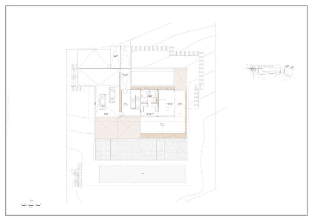
EXCLUSIVA VILLA DE LUJO DE OBRA NUEVA EN FINCA CORTESÍN, CASARES
Esta asombrosa villa es la encarnación de la vida de lujo junto al golf. Meticulosamente diseñada por los prestigiosos arquitectos Vicens & Romans, esta opulenta residencia es una maravilla arquitectónica sin parangón en la Costa del Sol.
Ubicada en una espaciosa parcela en primera línea de golf, la villa cuenta con amplios ventanales que inundan los interiores con abundante luz natural, revelando impresionantes vistas del campo de golf Finca Cortesín y el mar Mediterráneo desde su elevado punto de vista.
Encapsulado por una exuberante vegetación, la privacidad y la tranquilidad están garantizadas. Con generosas terrazas exteriores y fácil acceso al jardín desde todas las zonas, la vida interior/exterior se maximiza para que los residentes aprovechen al máximo el impresionante clima que ofrece este rincón del mundo.
La piscina de gran longitud, decorada con impresionantes azulejos de color aguamarina, invita a todos a darse un chapuzón, mientras que las frondosas palmeras proporcionan sombra y un estético telón de fondo para la relajación. Los interiores destilan refinamiento, con cada detalle meticulosamente curado utilizando los mejores materiales, asegurando una sensación de lujo sin igual. La impresionante cocina, equipada con electrodomésticos Gaggenau de última generación, es un paraíso culinario que combina a la perfección funcionalidad y estética.
Distribuidas en 2 plantas, la mayoría de las habitaciones se encuentran en la planta baja de la propiedad, con impresionantes vistas al campo de golf. El lujoso dormitorio principal se encuentra en el nivel superior de la propiedad, con un oasis privado para el disfrute de los residentes.
El paisajismo de la propiedad es una obra de arte, con un cautivador estanque oculto que adorna la entrada, adornado con exuberante vegetación que evoca un ambiente relajante, fomentando una profunda conexión con la naturaleza. Una obra maestra arquitectónica, esta propiedad goza de una posición privilegiada en primera línea de golf en uno de los resorts más exclusivos de España: Finca Cortesín.
- 24/10/2025
- 578 m2
- 9.948,1 €/m2
- 4
- 4
Immo Toro
Contactar
Compartir
Tu opinión































