Villa en venta en Casares zona Pedregales
Datos básicos
- REX-49078
- 8.700.000 €
- 795 m2(10.943 €/m2)
- Málaga
- Casares
- Pedregales
Distribución e instalaciones
- 6
- 8
Varios
- Sí
Certificado energético
Detalles
8.700.000 €
EXCLUSIVA VILLA DE LUJO DE OBRA NUEVA EN FINCA CORTESÍN, CASARES
Esta excepcional residencia, exclusiva del complejo Finca Cortesín, desprende una cautivadora mezcla de lujo y elegancia. Diseñada por los renombrados arquitectos José María Sierra, esta obra maestra arquitectónica no tiene rival en la Costa del Sol, con una parcela extraordinaria y unas vistas impresionantes.
La propiedad exhibe una abundancia de ventanas de suelo a techo que adornan ambos niveles, permitiendo que la luz natural inunde los interiores. Su llamativa fachada blanca, adornada con detalles de madera, establece el tono para una transición perfecta entre los espacios exteriores e interiores.
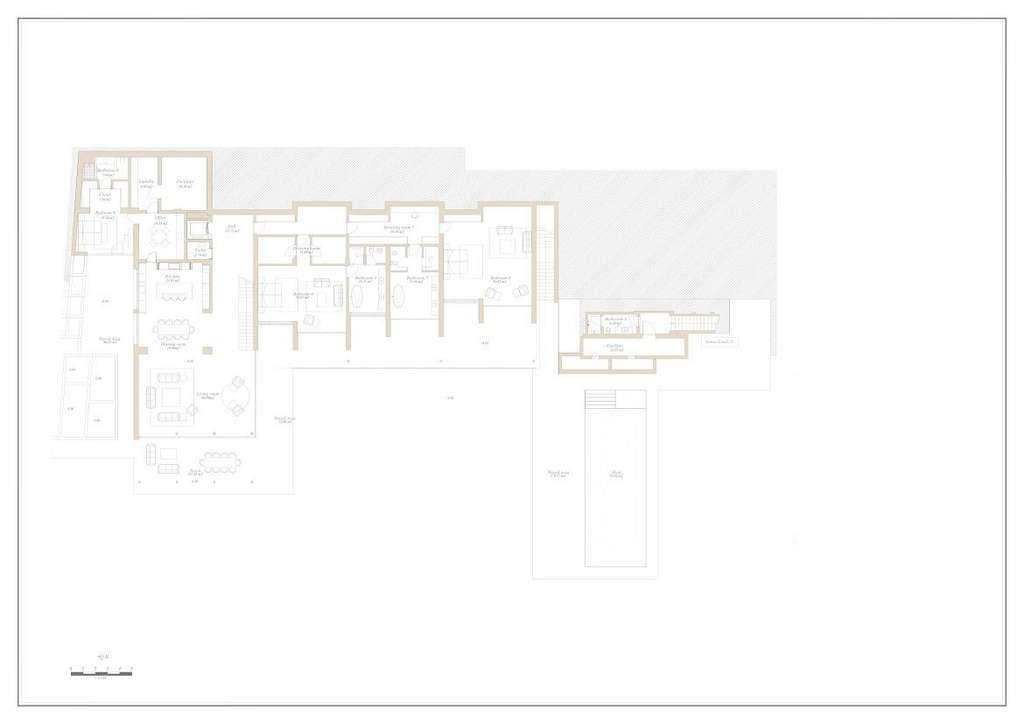
Cabe destacar la impresionante altura del techo, que alcanza los 9 metros en el salón de la planta baja. Una característica única es la sala de estar más pequeña en la planta superior, que ofrece un mirador con vistas a la sala de estar de la planta baja, un refugio privado, similar a una terraza oculta dentro de la propiedad. La planta superior está dedicada al dormitorio principal y a dos habitaciones de invitados, cada una de ellas con su propio encanto e impresionantes vistas al campo de golf y al mar Mediterráneo.
La planta baja alberga el resto de dormitorios, el salón y la cocina, una armoniosa mezcla de funcionalidad y estilo. Toda la planta baja se abre sin esfuerzo al jardín, dando la bienvenida al aire fresco y la luz natural en la propiedad.
La joya de la corona de esta residencia es el espectacular jardín, de gran tamaño y meticulosamente cuidado.
Un paraíso para los amantes del aire libre, el jardín cuenta con una tentadora piscina con azulejos azul oscuro que invita a un refrescante baño, mientras que el cenador integrado junto a la piscina ofrece un entorno idílico para la relajación. Majestuosas palmeras bordean el jardín, complementando las amplias vistas del campo de golf y la costa mediterránea. El encantador paisajismo, con impresionantes parterres de flores y arbustos meticulosamente recortados, añade un toque de belleza natural. Con su privilegiada ubicación en primera línea de golf, su impresionante arquitectura y su ambiente incomparable, esta propiedad verdaderamente única es un testimonio del encanto de Finca Cortesín Resort.
- 24/10/2025
- 795 m2
- 10.943,4 €/m2
- 6
- 8
Immo Toro
Contactar
Compartir
Tu opinión





























