Apartamento en venta en Estepona zona Parque Selwo
Datos básicos
- NB-94222
- 341.000 €
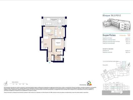
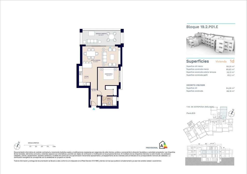
- 86 m2(3.965 €/m2)
- Málaga
- Estepona
- Parque Selwo
Distribución e instalaciones
- 1
- 1
Varios
- Sí
Certificado energético
Detalles
341.000 €
Exclusivo Resort Residencial con Spa y Piscinas en la Zona de Selwo, Estepona
Ubicación privilegiada entre naturaleza y mar en la Costa del Sol
Este exclusivo resort de obra nueva se encuentra en la cotizada zona de Selwo, entre Estepona y San Pedro de Alcántara, una ubicación estratégica en plena Milla de Oro de la Costa del Sol. A tan solo 1 km de la playa y junto al parque natural Selwo Aventura, el complejo ofrece un entorno natural excepcional con vistas al mar, acceso a servicios y una amplia oferta de ocio al aire libre.
Estepona, uno de los municipios más destacados del litoral malagueño, se sitúa entre dos de los puertos deportivos más prestigiosos del Mediterráneo: Puerto Banús y Sotogrande. La zona combina naturaleza, playa, golf, gastronomía y cultura con excelentes comunicaciones.
Viviendas modernas con excelentes calidades y vistas
La promoción incluye apartamentos de 1, 2, 3 y 4 dormitorios, con tipologías para todos los estilos de vida:
Plantas bajas con jardín privado
Viviendas intermedias con grandes terrazas
Áticos con vistas al mar y algunas unidades con solárium privado
Cada unidad incluye al menos una plaza de aparcamiento y un trastero.
Las viviendas destacan por su diseño contemporáneo, grandes ventanales y acabados de alta calidad.
Cocinas amuebladas con electrodomésticos incluidos
Aire acondicionado por conductos totalmente instalado
Persianas eléctricas en dormitorios
Opciones de personalización disponibles
Instalaciones premium para una vida de resort
Este complejo residencial ofrece un estilo de vida exclusivo gracias a sus completas zonas comunes:
4 piscinas exteriores
Spa con piscina cubierta y climatizada
Gimnasio
Cine privado
Youth Club
Espacio de coworking
Conectividad y puntos de interés cercanos
Playa más cercana: 1 km
Selwo Aventura: 500 m
Puerto Banús (Marbella): 13 km
Centro de Estepona: 9 km
Sotogrande: 37 km
Aeropuerto de Málaga-Costa del Sol: 71 km
Aeropuerto de Gibraltar: 49 km
Estación AVE María Zambrano (Málaga): 75 km
Campos de golf cercanos: La Resina Golf (2 km), Valle Romano Golf (10 km), Los Flamingos Golf (5 km)
Disfrute del verdadero estilo de vida mediterráneo
Viva en un entorno natural único sin renunciar a la cercanía de la ciudad, el mar y los mejores servicios. Contacte con nosotros hoy mismo para más información o para concertar una visita a este excepcional resort residencial en Estepona.
- hace 28 días
- 86 m2
- 3.965,12 €/m2
- 1
- 1
Buy in Spain
Contactar
Compartir
Tu opinión














