Apartamento en venta en Estepona zona Reinoso
Datos básicos
- NB-36202
- 1.065.000 €
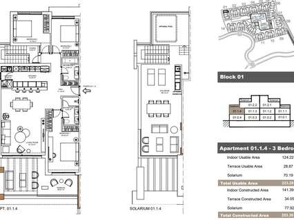
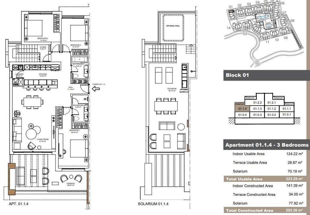
- 141 m2(7.553 €/m2)
- Málaga
- Estepona
- Reinoso
Distribución e instalaciones
- 3
- 2
Varios
- Sí
Certificado energético
Detalles
1.065.000 €
COMPLEJO RESIDENCIAL DE OBRA NUEVA EN ESTEPONA
Nuevo complejo residencial de lujo en Estepona.
Complejo residencial de 140 exclusivos bungalows de 2 a 3 dormitorios y áticos de 3 a 4 dormitorios en una comunidad tropical y cerrada.
Viviendas con amplios interiores, terrazas privadas. Viviendas en la última planta con solárium en la azotea. Domótica inalámbrica en todos los apartamentos. Aire acondicionado y calefacción por suelo radiante de alta eficiencia energética de Daikin.
COMUNIDAD :
- Casa club con sala de trabajo, cafetería, spa, gimnasio y piscina cubierta.
- Seguridad 24 horas
- Dos piscinas de estilo resort, una de ellas climatizada, con chiringuito y piscina para niños.
- 27.000 m2 de jardines tropicales
UBICACIÓN:
- Situado en la "Nueva Milla de Oro" de Estepona
- A sólo 5 minutos del vibrante centro de Estepona
- 500m andando a la playa
- Excelentes conexiones de transporte por carretera, ferrocarril y avión.
Se puede llegar al aeropuerto de Gibraltar en 30 minutos y al aeropuerto de Málaga a sólo 45 minutos en coche.
505
- hace 1 hora
- 141 m2
- 7.553,19 €/m2
- 3
- 2
Buy in Spain
Contactar
Compartir
Tu opinión
























