Apartamento en venta en Estepona zona La Gaspara

39
Apartamento en venta en Estepona zona La Gaspara
Datos básicos
  • PSC-23760
  • 495.000
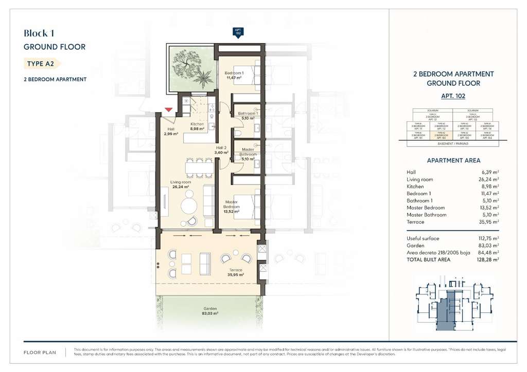
  • 128 m2(3.867 €/m2)
  • Málaga
  • Estepona
  • La Gaspara
Distribución e instalaciones
  • 2
  • 2
Varios
Certificado energético
  • B
Detalles
495.000
Moderno Residencial en Estepona: Amplios apartamentos con soleadas terrazas Su hogar ideal le espera Bienvenido a la residencia de sus sueños en Estepona, una encantadora localidad costera conocida por su ambiente relajado y su impresionante belleza natural. Este moderno complejo residencial, diseñado por el prestigioso estudio de arquitectura Villarroel, cuenta con amplios apartamentos de 2 y 3 dormitorios y lujosos áticos. Con un enfoque en la comodidad y la elegancia, esta comunidad cerrada ofrece un entorno ideal para aquellos que buscan un estilo de vida tranquilo. Servicios y características inigualables Cada apartamento está diseñado con estándares de alta calidad y tecnología de vanguardia, garantizando la eficiencia energética y la sostenibilidad medioambiental. Disfrute de amplias terrazas bañadas por el sol, perfectas para relajarse al aire libre. Cada residencia viene con una cocina totalmente amueblada, baños completos, aparcamiento subterráneo privado y trasteros incluidos en el precio. Oasis exterior La urbanización cuenta con una piscina al aire libre rodeada de exuberantes jardines, creando un ambiente sereno. Disfrute de tranquilos paseos por pintorescos caminos diseñados pensando en la durabilidad y la estética. Los jardines cuentan con un sistema de riego inteligente e iluminación LED de bajo consumo, realzando la belleza al tiempo que promueven la sostenibilidad. Ubicación privilegiada Situado en Estepona, este complejo ofrece un cómodo acceso a diversos puntos de interés. Está a sólo 1 km de la playa más cercana, a 10 km del Club de Golf de Estepona y a 20 minutos en coche de Marbella. El aeropuerto más cercano, Málaga-Costa del Sol, está a sólo 70 km, por lo que viajar no supone ningún esfuerzo. Los centros comerciales y restaurantes locales están a poca distancia, proporcionando todas las comodidades necesarias. Seguridad y protección La seguridad es primordial en esta urbanización de lujo. Con puertas automáticas para vehículos y peatones, los residentes pueden disfrutar de tranquilidad en esta comunidad totalmente vallada. Le espera un estilo de vida único Experimente un estilo de vida único lleno de confort y sofisticación en Estepona. Tanto si busca una acogedora casa familiar como un elegante retiro, este moderno complejo residencial es el lugar perfecto para crear recuerdos duraderos. No pierda la oportunidad de hacer de esta exquisita propiedad su nuevo hogar.
  • hace 25 días
  • 128 m2
  • 3.867,19 €/m2
  • 2
  • 2
Contactar
Compartir
Tu opinión
×Esta web utiliza cookies técnicas, de personalización y análisis, propias y de terceros, para facilitarle la navegación de forma anónima y analizar estadísticas del uso de la web. Consideramos que si continúa navegando, acepta su uso. Más información.