Ático en venta en Estepona zona Parque Central
Datos básicos
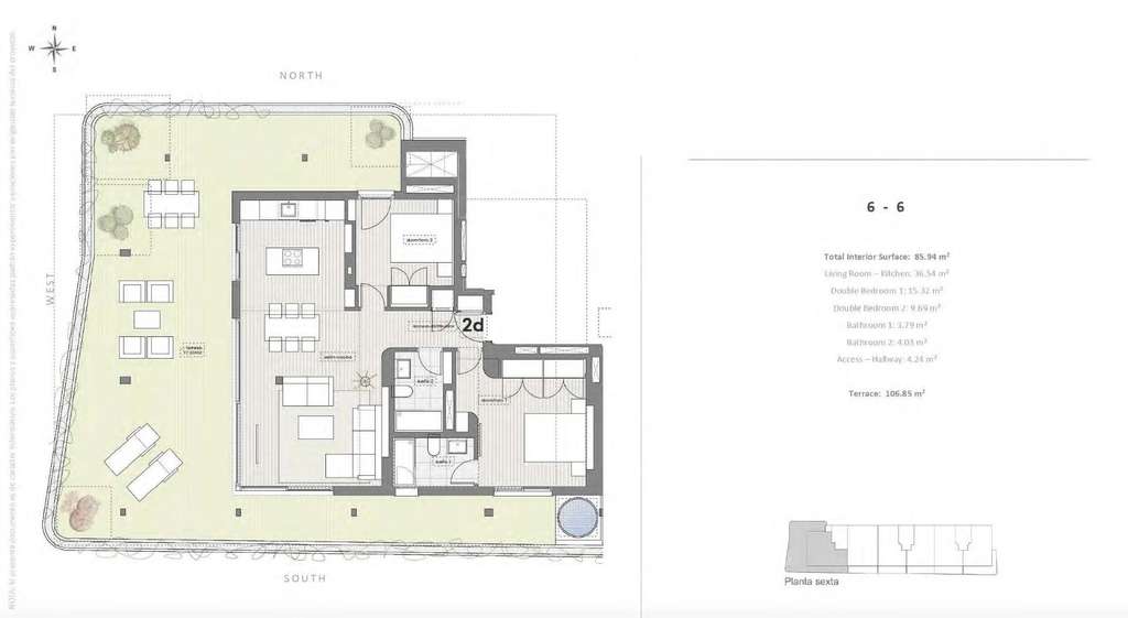
- SP-43138
- 790.000 €
- 85 m2(9.294 €/m2)
- Málaga
- Estepona
- Parque Central
Distribución e instalaciones
- 2
- 2
Varios
- Sí
Certificado energético
- B
Detalles
790.000 €
Apartamentos de nueva construcción en el centro de Estepona: vida moderna cerca de la playa
Bienvenido a un proyecto de nueva construcción único en el corazón del animado barrio Parque Central de Estepona. Esta exclusiva urbanización ofrece 43 elegantes apartamentos diseñados para combinar la arquitectura moderna con el confort urbano, a pocos pasos de la playa y del centro histórico de la ciudad.
Viviendas modernas con un diseño distintivo
La promoción ofrece apartamentos de 1, 2 y 3 dormitorios, todos ellos cuidadosamente diseñados con grandes ventanales panorámicos, formas orgánicas fluidas y amplias terrazas. Estos elementos se combinan para crear viviendas llenas de luz natural, carácter y elegancia contemporánea. Muchas de las viviendas cuentan con doble o triple orientación para mejorar la ventilación y disfrutar de unas vistas panorámicas.
Características premium y confort sostenible
Cada apartamento está equipado con:
Puertas de entrada reforzadas
Cocinas totalmente amuebladas con electrodomésticos integrados
Aire acondicionado y calefacción centralizados por conductos
Sistemas aerotérmicos de alta eficiencia para agua caliente
Estas viviendas están construidas pensando en el confort, la eficiencia energética y el estilo, ideales para vivir todo el año o como lujoso refugio vacacional.
Servicios exclusivos en el corazón de Estepona
Esta urbanización boutique incluye:
Piscina comunitaria en la azotea con vistas panorámicas
Zonas de relajación y espacio para tomar el sol
Gimnasio totalmente equipado
Aparcamiento subterráneo y trasteros opcionales
Recepción con servicio de conserjería
El oasis de la azotea ofrece un refugio tranquilo sobre la ciudad, perfecto para relajarse o entretenerse mientras se disfruta de la brisa marina y las puestas de sol mediterráneas.
Ubicación privilegiada en la Costa del Sol
Situado en la zona del Parque Central de Estepona, este proyecto ofrece una ubicación inmejorable a poca distancia de todo:
Playa: 5 minutos
Casco antiguo: 2 minutos
Puerto deportivo de Estepona: 15 minutos
Supermercado: 3 minutos
Puerto Banús: 25 km
Marbella: 30 km
Aeropuerto de Málaga: 80 km
Estepona Golf: 7 km
Con fácil acceso a colegios, tiendas, parques, restaurantes y lugares de interés cultural, esta ubicación combina la tranquilidad con un ambiente social animado.
Entrega prevista: primer trimestre de 2026
Asegúrese hoy mismo el apartamento de sus sueños en el centro de Estepona. Póngase en contacto con nosotros para obtener más información o concertar una visita personalizada.
- 29/09/2025
- 85 m2
- 9.294,12 €/m2
- 2
- 2
WGN Spain
Contactar
Compartir
Tu opinión










