Ático en venta en Estepona zona Playa de La Rada
Datos básicos
- SP-13384
- 782.700 €
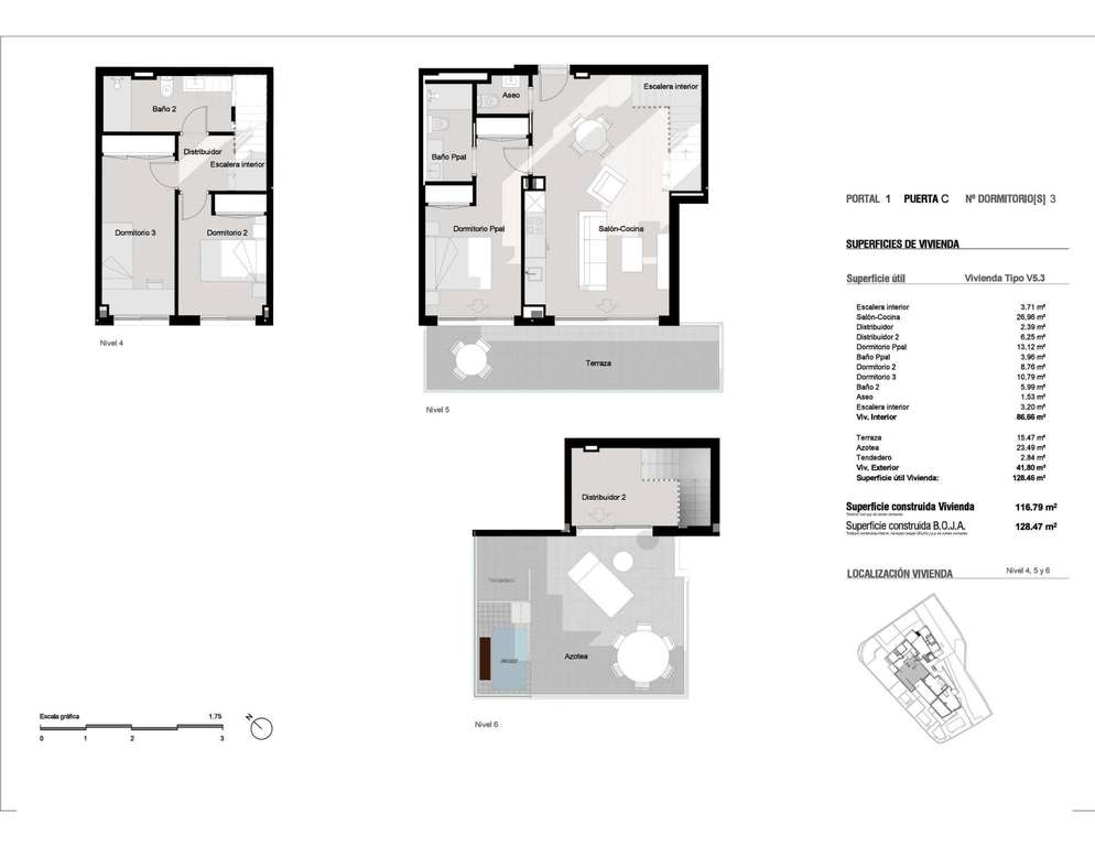
- 128 m2(6.115 €/m2)
- Málaga
- Estepona
- Playa de La Rada
Distribución e instalaciones
- 3
- 2
Varios
- Sí
Certificado energético
- B
Detalles
782.700 €
Apartamentos de Obra Nueva en Estepona: Lujo y Confort en la Costa del Sol
Viviendas exclusivas a pocos metros del mar
Descubre este exclusivo complejo residencial en el corazón de Estepona, una oportunidad única para disfrutar de la vibrante vida costera de la Costa del Sol. A tan solo 200 metros de la playa y del puerto de Estepona, este conjunto de 22 apartamentos redefine el lujo y la comodidad con un diseño moderno y vistas impresionantes al mar Mediterráneo, el Peñón de Gibraltar y la costa africana.
Diseño moderno y espacios amplios
Este nuevo desarrollo ofrece apartamentos de 2 y 3 dormitorios con distribución optimizada para el máximo confort. Desde las plantas más altas, los residentes podrán disfrutar de impresionantes puestas de sol sobre el mar. Además, cada vivienda incluye plaza de parking para mayor comodidad.
Los bajos cuentan con jardines privados, las plantas intermedias con amplias terrazas y los áticos con solárium privado, proporcionando un espacio ideal para relajarse y disfrutar del excepcional clima de la Costa del Sol.
Zonas comunes y servicios premium
El complejo ofrece instalaciones de primer nivel que garantizan una experiencia de vida inigualable:
Piscina comunitaria, perfecta para disfrutar del sol durante todo el año.
Acabados de alta calidad y diseño elegante en cada detalle.
Ubicación privilegiada cerca de servicios esenciales, restaurantes y actividades de ocio.
Ubicación inmejorable: cerca de todo lo que necesitas
Estepona es un destino excepcional en la Costa del Sol, reconocido por su encanto tradicional y sus modernas infraestructuras. Su casco antiguo está lleno de calles adoquinadas, plazas floridas y una oferta cultural vibrante con museos, galerías de arte y eventos durante todo el año.
Desde esta urbanización, podrás acceder fácilmente a los principales puntos de interés de la región:
Puerto de Estepona: 200 m
Marbella: 30 km
Puerto Banús: 20 km
Aeropuerto de Málaga: 80 km
Ronda: 60 km
Tarifa: 70 km
Para los amantes del deporte, Estepona está rodeada de algunos de los mejores campos de golf de la Costa del Sol, además de contar con instalaciones para tenis, pádel y deportes acuáticos. También podrás explorar el Parque Natural de los Alcornocales y la Sierra Bermeja, ideales para senderismo y aventuras al aire libre.
Tu nuevo hogar en la Costa del Sol te espera
Ya sea como primera o segunda residencia, vivienda vacacional o inversión, este residencial es la opción perfecta para quienes buscan un estilo de vida exclusivo, rodeados de belleza natural y comodidades modernas. ¡No dejes pasar esta oportunidad y descubre tu paraíso junto al mar!
- ayer
- 128 m2
- 6.114,84 €/m2
- 3
- 2
Global Spain
Contactar
Compartir
Tu opinión












