Ático en venta en Estepona zona Buenas Noches
Datos básicos
- PSC-26247
- 1.250.000 €
- 109 m2(11.468 €/m2)
- Málaga
- Estepona
- Buenas Noches
Distribución e instalaciones
- 3
- 2
Varios
- Sí
Certificado energético
- B
Detalles
1.250.000 €
COMPLEJO RESIDENCIAL DE OBRA NUEVA CERCA DE ESTEPONA
Nuevo complejo residencial de apartamentos de lujo en Buenas Noches, cerca de Estepona.
Complejo situado a sólo 220 metros de la playa y consta de sólo 3 bloques, cada uno con 5 apartamentos, en una comunidad cerrada con video vigilancia, proporcionando la máxima privacidad y comodidad personal.
Este proyecto de nueva construcción ofrece distribuciones modernas bien pensadas y ventanas panorámicas, algo poco común en esta ubicación. El proyecto destaca por el uso de materiales de alta calidad y una construcción de primera categoría.
La ubicación excepcional y la arquitectura bien concebida asegurarán a los futuros residentes unas vistas inolvidables desde sus ventanas y terrazas, así como la oportunidad de presenciar el amanecer cada mañana con la costa del mar como telón de fondo.
Buenas Noches es una zona pequeña y bien establecida de Estepona. Se encuentra a ambos lados de la autopista A-7, a unos 5 km al oeste de la ciudad de Estepona, en dirección a Sabinillas y Puerto Duquesa. Junto a la carretera de la costa se encuentra el Hotel Pedro Paloma, que abre en verano, y también hay un centro comercial, una gasolinera y una pasarela peatonal. La mayoría de las propiedades tienen buenas vistas al mar ya que la zona es naturalmente montañosa. Hay una pequeña playa tranquila llamada Playa de la Galera o Playa Buenas Noches, en uno de cuyos extremos se encuentra el Islote de las Palomas.
- hace 12 días
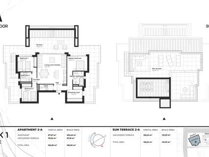
- 109 m2
- 11.467,89 €/m2
- 3
- 2
Global Spain
Contactar
Compartir
Tu opinión

















