Planta baja en venta en Estepona zona La Gaspara
Datos básicos
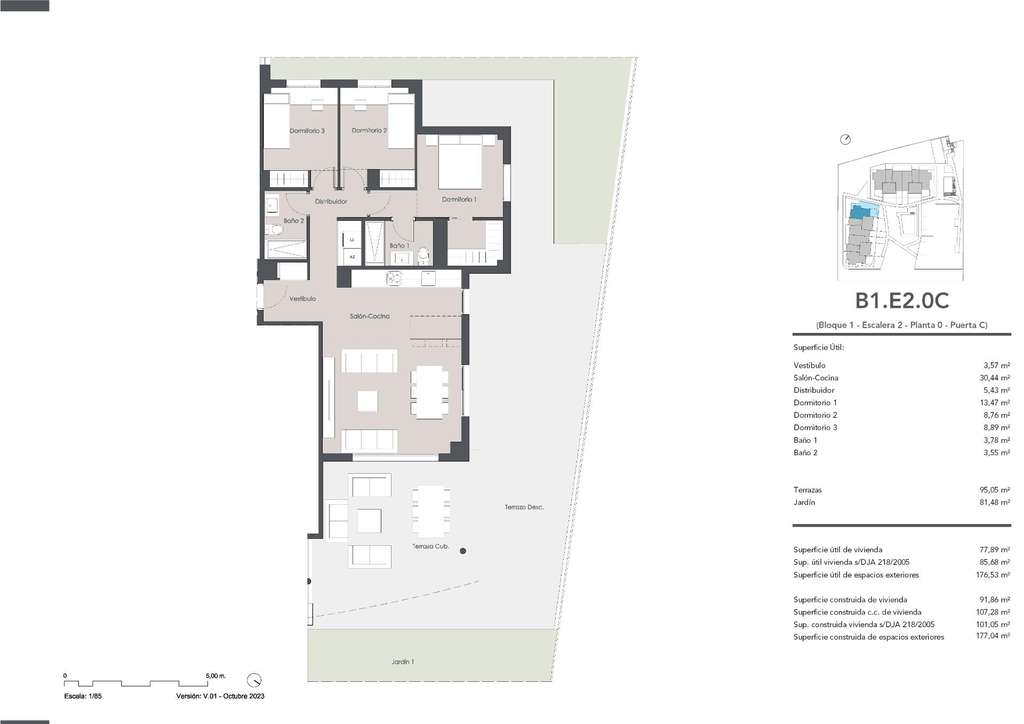
- SP-24419
- 525.000 €
- 91 m2(5.769 €/m2)
- Málaga
- Estepona
- La Gaspara
Distribución e instalaciones
- 3
- 2
Varios
- Sí
Certificado energético
- B
Detalles
525.000 €
COMPLEJO RESIDENCIAL DE OBRA NUEVA EN ESTEPONA
Complejo residencial de obra nueva de apartamentos de 2 y 3 dormitorios situado en Estepona donde disfrutará de impresionantes vistas al mar.
La urbanización se compone de 3 bloques de tres plantas con:
- Planta baja con jardín y terrazas
- Planta intermedia
- Áticos con solarium y amplias terrazas
El residencial dispone de aparcamiento subterráneo y trasteros.
El residencial ofrece viviendas diseñadas para proporcionar el máximo confort a sus propietarios. Con una selección de materiales de primera calidad y un diseño muy cuidado, se trata de una promoción que no pasará desapercibida.
Destaca por sus amplios interiores con grandes ventanales a través de los cuales se puede disfrutar de las maravillosas vistas al mar y además recibe luz natural.
Las zonas comunes han sido diseñadas para ofrecer un espacio en el que disfrutar y relajarse.
Encontrará:
- Amplias zonas verdes ideales para descansar y desconectar de la rutina
- Piscina comunitaria de diseño vanguardista
- Zona Chill Out
- Espacio Coworking
- Gimnasio
Con sus calles empedradas, edificios encalados con flores Estepona tiene un encanto único que la ha convertido en un destino muy popular.
En sus alrededores se encuentran algunos de los campos de golf más prestigiosos de Europa, la más completa oferta de restaurantes y hoteles, fantásticas playas y exclusivas zonas comerciales.
El complejo se caracteriza por sus excelentes comunicaciones, ya que está a sólo 5 minutos en coche de Estepona, a 10 minutos de Puerto Banús y a 20 de Marbella.
- 29/09/2025
- 91 m2
- 5.769,23 €/m2
- 3
- 2
WGN Spain
Contactar
Compartir
Tu opinión









