Villa en venta en Estepona zona Bel Air
Datos básicos
- REX-28834
- 2.750.000 €
- 359 m2(7.660 €/m2)
- Málaga
- Estepona
- Bel Air
Distribución e instalaciones
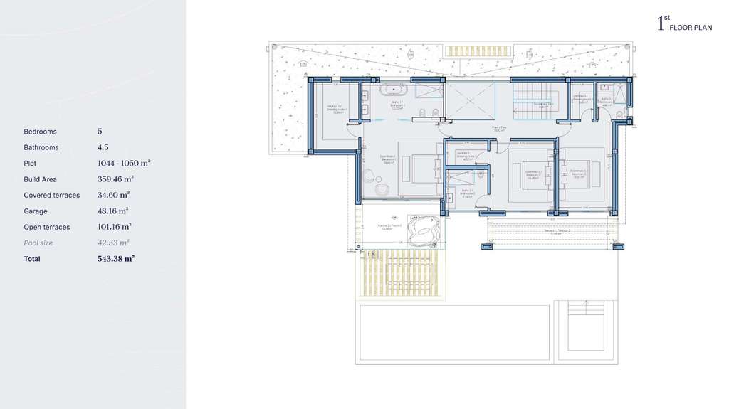
- 5
- 4
Varios
- Sí
Certificado energético
Detalles
2.750.000 €
Nuevas villas de lujo en Bel-Air, Marbella: vive un verano sin fin en la Costa del Sol
Vida mediterránea modernaExperimente la verdadera esencia del estilo de vida de la Costa del Sol con esta exclusiva colección de 11 villas de lujo nuevas en Bel-Air, Marbella, donde el sol brilla más de 325 días al año. Diseñadas para aquellos que valoran la elegancia, la privacidad y la proximidad al mar, estas villas ofrecen una extraordinaria combinación de comodidad y arquitectura contemporánea.
Cada residencia está construida en parcelas de más de 1000 m² y distribuida en dos niveles, con 4 o 5 dormitorios, piscinas privadas y amplias terrazas perfectas para disfrutar del aire libre. Algunas villas incluso cuentan con impresionantes vistas al mar desde la planta superior. La finalización está prevista para principios de 2026, lo que le brinda la oportunidad de hacer realidad su sueño mediterráneo.
Diseño premium y características de alta gamaTodas las villas han sido diseñadas para ofrecer los más altos estándares de lujo, combinando una estética refinada con tecnología de vanguardia. Las características principales incluyen:Sistema domótico inteligenteCocinas totalmente amuebladas y equipadas con electrodomésticos de primeras marcasSuelos de gres porcelánico de alta resistenciaSistema de aire acondicionado por conductos de DaikinAparcamiento doble privadoAmplias terrazas en la planta baja y en la primera plantaPiscina privadaCaracterísticas de seguridad mejoradas en ventanas y puertas
Estas viviendas están diseñadas para garantizar la máxima privacidad, comodidad y durabilidad, ofreciendo un enfoque moderno y sostenible de la vida en la costa.
Ubicación privilegiada en la Nueva Milla de OroSituada en la prestigiosa zona de Bel-Air, entre Marbella y Estepona, esta comunidad cerrada disfruta de una de las ubicaciones más deseadas de la Nueva Milla de Oro. El mar Mediterráneo está a solo 1 km, mientras que el club de golf Villa Padierna y otros campos de golf de renombre se encuentran a pocos minutos de su puerta.
El centro de Estepona está a menos de 15 minutos, Puerto Banús a solo 20 km y la glamurosa Marbella a unos 20 minutos. El aeropuerto internacional de Málaga está a unos 70 km y el de Gibraltar a solo 60 km. Los servicios esenciales, como supermercados, restaurantes y el centro médico Cancelada, se encuentran a 5 minutos en coche, lo que garantiza una vida cotidiana sin complicaciones.
Un estilo de vida incomparableBel-Air ofrece un equilibrio único entre tranquilidad, accesibilidad y sofisticación. Rodeado de playas, campos de golf y belleza natural, es el entorno ideal para aquellos que buscan tanto relajación como un estilo de vida activo.
La villa de sus sueños le esperaNo pierda la oportunidad de adquirir una de estas excepcionales villas de lujo en Bel-Air, Marbella. Póngase en contacto con nosotros hoy mismo para concertar una visita o solicitar más información sobre su futuro hogar en la Costa del Sol.
Vida mediterránea modernaExperimente la verdadera esencia del estilo de vida de la Costa del Sol con esta exclusiva colección de 11 villas de lujo nuevas en Bel-Air, Marbella, donde el sol brilla más de 325 días al año. Diseñadas para aquellos que valoran la elegancia, la privacidad y la proximidad al mar, estas villas ofrecen una extraordinaria combinación de comodidad y arquitectura contemporánea.
Cada residencia está construida en parcelas de más de 1000 m² y distribuida en dos niveles, con 4 o 5 dormitorios, piscinas privadas y amplias terrazas perfectas para disfrutar del aire libre. Algunas villas incluso cuentan con impresionantes vistas al mar desde la planta superior. La finalización está prevista para principios de 2026, lo que le brinda la oportunidad de hacer realidad su sueño mediterráneo.
Diseño premium y características de alta gamaTodas las villas han sido diseñadas para ofrecer los más altos estándares de lujo, combinando una estética refinada con tecnología de vanguardia. Las características principales incluyen:Sistema domótico inteligenteCocinas totalmente amuebladas y equipadas con electrodomésticos de primeras marcasSuelos de gres porcelánico de alta resistenciaSistema de aire acondicionado por conductos de DaikinAparcamiento doble privadoAmplias terrazas en la planta baja y en la primera plantaPiscina privadaCaracterísticas de seguridad mejoradas en ventanas y puertas
Estas viviendas están diseñadas para garantizar la máxima privacidad, comodidad y durabilidad, ofreciendo un enfoque moderno y sostenible de la vida en la costa.
Ubicación privilegiada en la Nueva Milla de OroSituada en la prestigiosa zona de Bel-Air, entre Marbella y Estepona, esta comunidad cerrada disfruta de una de las ubicaciones más deseadas de la Nueva Milla de Oro. El mar Mediterráneo está a solo 1 km, mientras que el club de golf Villa Padierna y otros campos de golf de renombre se encuentran a pocos minutos de su puerta.
El centro de Estepona está a menos de 15 minutos, Puerto Banús a solo 20 km y la glamurosa Marbella a unos 20 minutos. El aeropuerto internacional de Málaga está a unos 70 km y el de Gibraltar a solo 60 km. Los servicios esenciales, como supermercados, restaurantes y el centro médico Cancelada, se encuentran a 5 minutos en coche, lo que garantiza una vida cotidiana sin complicaciones.
Un estilo de vida incomparableBel-Air ofrece un equilibrio único entre tranquilidad, accesibilidad y sofisticación. Rodeado de playas, campos de golf y belleza natural, es el entorno ideal para aquellos que buscan tanto relajación como un estilo de vida activo.
La villa de sus sueños le esperaNo pierda la oportunidad de adquirir una de estas excepcionales villas de lujo en Bel-Air, Marbella. Póngase en contacto con nosotros hoy mismo para concertar una visita o solicitar más información sobre su futuro hogar en la Costa del Sol.
- 7/11/2025
- 359 m2
- 7.660,17 €/m2
- 5
- 4
Immo Toro
Contactar
Compartir
Tu opinión













