Villa en venta en Estepona zona Valle Romano
Datos básicos
- PSC-44310
- 1.100.000 €
- 210 m2(5.238 €/m2)
- Málaga
- Estepona
- Valle Romano
Distribución e instalaciones
- 3
- 3
Varios
- Sí
Certificado energético
- A
Detalles
1.100.000 €
Modernas villas de nueva construcción cerca de Estepona, cerca de la playa y del campo de golf Valle Romano
Vida mediterránea contemporánea en la Costa del Sol
Descubra este elegante proyecto de villas de nueva construcción situado junto a Estepona, en la Costa del Sol. Diseñadas con una arquitectura minimalista, líneas limpias y espacios abiertos y luminosos, estas viviendas combinan simplicidad, eficiencia y un estilo mediterráneo atemporal. Con orientación oeste, las villas disfrutan de una hermosa luz por la tarde y están idealmente situadas cerca de campos de golf, servicios y la playa.
Estepona es una de las localidades más atractivas de la Costa del Sol, conocida por su encantador casco antiguo, su puerto deportivo, sus playas de arena y sus más de 320 días de sol al año. La zona ofrece una calidad de vida excepcional, que combina la gastronomía internacional, las tradiciones locales y un ambiente costero relajado.
Los compradores pueden elegir entre dos tamaños de villa para adaptarse a sus necesidades:
160 m2 de superficie construida en una parcela de 434 m2
210 m2 de superficie construida en una parcela de 629 m2
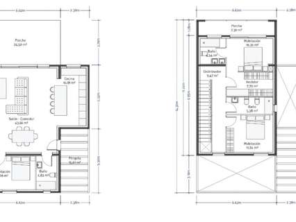
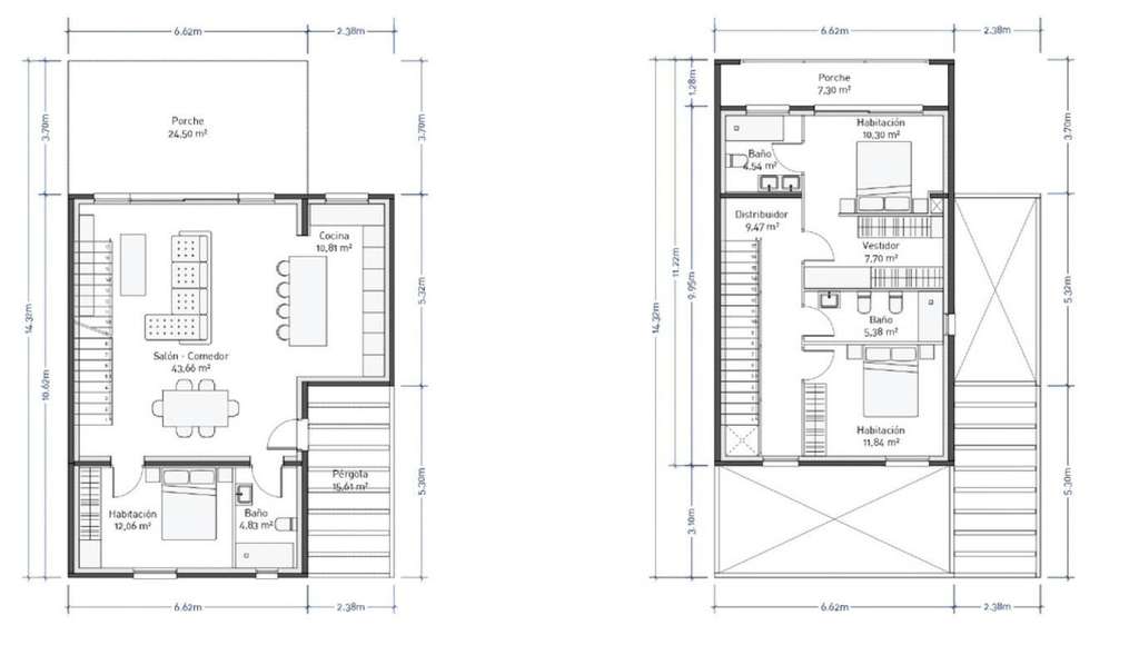
Cada villa se distribuye en un semisótano y dos plantas principales, lo que ofrece una distribución equilibrada y práctica.
El sótano incluye una sauna, un lavadero y un trastero, creando un espacio privado de bienestar y utilidad.
En la planta baja, el salón y la cocina de planta abierta conectan directamente con la terraza delantera y la piscina ecológica privada. Esta planta también cuenta con un dormitorio y un cuarto de baño completo.
La primera planta ofrece dos dormitorios adicionales y dos baños, uno de ellos en suite, junto con dos terrazas descubiertas en la parte delantera y trasera de la propiedad.
Las amplias terrazas y el sistema de balcones dobles amplían las zonas de estar al aire libre, mejorando la conexión entre los espacios interiores y el entorno mediterráneo.
Diseño energéticamente eficiente y especificaciones de alta calidad
Estas villas están diseñadas para la vida moderna, priorizando el confort, la sostenibilidad y el bajo consumo energético. Las características principales incluyen:
Cocinas y baños totalmente equipados
Preinstalación para aire acondicionado por conductos con sistema aerotérmico o bomba de calor
Sistema de energía renovable para agua caliente
Iluminación LED empotrada en toda la vivienda
Preinstalación para domótica
Paneles fotovoltaicos para autoconsumo de 4 kW
Clasificación energética de clase A
El plazo de construcción es de aproximadamente 14 meses desde la compra.
Excelente ubicación y distancias
Playa a 1,8 km
Valle Romano Golf a 1 km
Marbella a 15 km
Puerto Banús a 20 km
Aeropuerto de Málaga a 75 km
Asegúrese su villa contemporánea en Estepona
Este proyecto ofrece una oportunidad única de adquirir una villa moderna y energéticamente eficiente en una ubicación privilegiada cerca del golf y del mar. Póngase en contacto con nosotros hoy mismo para recibir más información y reservar su nueva vivienda en la Costa del Sol.
- hace 20 días
- 210 m2
- 5.238,1 €/m2
- 3
- 3
Global Spain
Contactar
Compartir
Tu opinión











