Casa en venta en Manilva zona Duquesa Sur
Datos básicos
- SP-51771
- 595.000 €
- 126 m2(4.722 €/m2)
- Málaga
- Manilva
- Duquesa Sur
Distribución e instalaciones
- 3
- 2
Varios
- Sí
Certificado energético
- B
Detalles
595.000 €
RESIDENCIAL DE OBRA NUEVA EN LAS ROCAS EN MANILVA
Residencial de obra nueva de 16 adosados y villas pareadas situado en Las Rocas en Manilva, en la Costa del Sol.
En el residencial disfrutará de las mejores y más espectaculares vistas al mar, llegando hasta Gibraltar y la costa marroquí con la mejor orientación. El entorno ideal para disfrutar del auténtico estilo de vida mediterráneo.
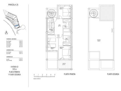
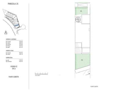
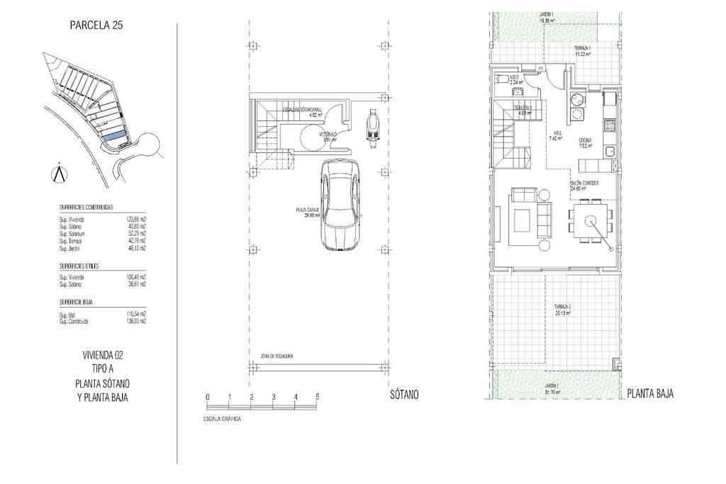
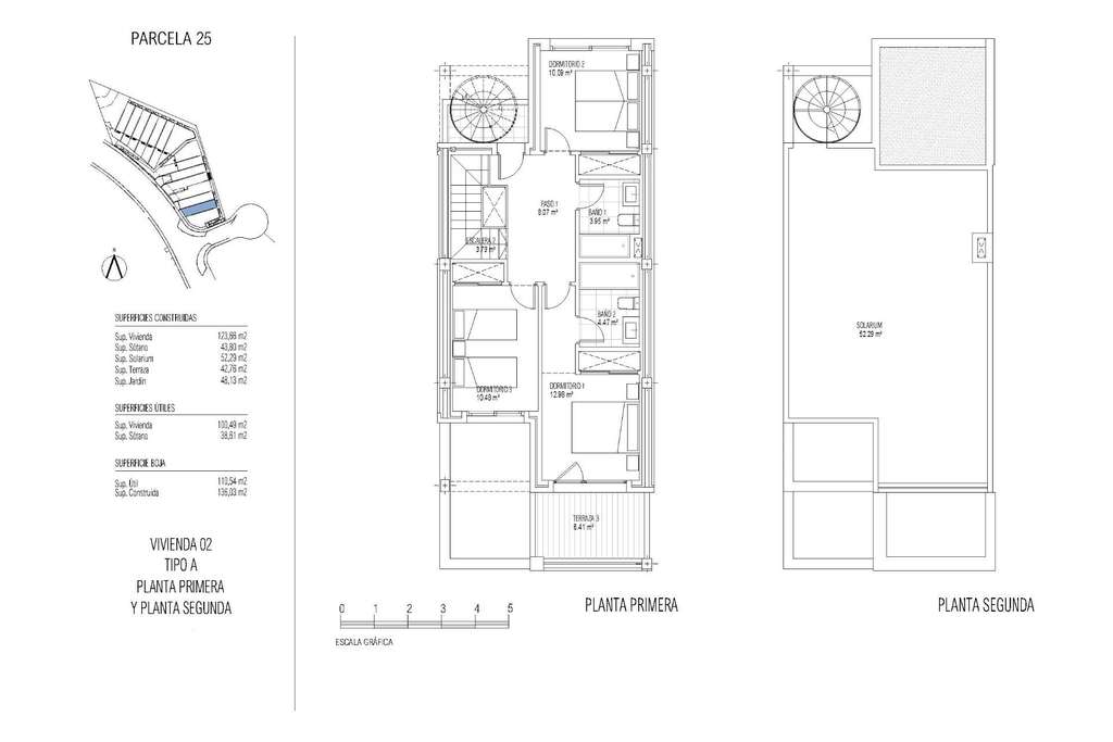
Viviendas modernas de 3 dormitorios, 2 baños, cocina americana con amplio salón, armarios empotrados, terrazas, solarium, jardín privado y sótano con garaje.
Conjunto residencial totalmente cerrado y vallado. Las zonas comunes cuentan con iluminación LED para una máxima eficiencia energética y rampas de acceso.
Plaza de aparcamiento privada para dos coches.
Podrá disfrutar de zonas comunes: la gran piscina incorporará tecnología moderna de última generación. También habrá pista de pádel, zona infantil.
Residencial situado en la ubicación perfecta entre Marbella y Sotogrande, en el corazón de la Costa del Sol y muy cerca de la playa. De fácil acceso con excelentes comunicaciones por carretera que conectan directamente con la N340 en el km150. Situado a tan sólo 1 hora del aeropuerto internacional de Málaga y a 25 minutos del aeropuerto de Gibraltar.
Rodeado de zonas verdes y de los mejores campos de golf de Europa. A tan solo 5 minutos se encuentra La Reserva Club en Sotogrande, una gran zona de ocio que incluye Golf, Hípica y resort con instalaciones de restauración, playa de arena blanca y laguna para actividades deportivas.
- hace 15 días
- 126 m2
- 4.722,22 €/m2
- 3
- 2
Global Spain
Contactar
Compartir
Tu opinión










