Casa en venta en Manilva zona Punta Chullera
Datos básicos
- SP-63845
- 465.000 €
- 163 m2(2.853 €/m2)
- Málaga
- Manilva
- Punta Chullera
Distribución e instalaciones
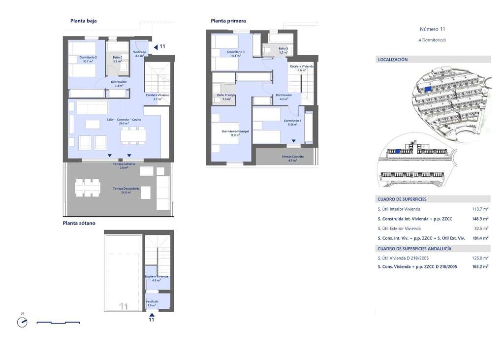
- 4
- 3
Varios
- Sí
Certificado energético
- B
Detalles
465.000 €
ADOSADOS DE OBRA NUEVA CON VISTAS AL MAR EN MANILVA
Precioso Residencial de Obra Nueva de adosados de 3 y 4 dormitorios en Manilva con espectaculares vistas al mar.
Cocinas totalmente equipadas.
Instalación de A/A y Aerotermia.
1 plaza de garaje incluida en el precio.
Piscina infinita y Casa Club con Spa y Gimnasio.
Junto al mejor campo de golf de Europa.
Todo tipo de servicios cercanos.
A tan solo 20 minutos del aeropuerto de Gibraltar.
A 5 minutos de Sotogrande y 20 de Marbella.
Rodeado de campos de golf y puertos deportivos.
Manilva es una ciudad costera de la provincia de Málaga en su límite con la provincia de Cádiz en la comunidad autónoma de Andalucía en España.
Manilva es una ciudad muy turística, especialmente en verano debido a su buen clima y ambiente. Es destino ideal para turistas que buscan descanso y tranquilidad rodeados de mar.
Villas situadas a 1 hora 10 minutos en coche del aeropuerto de Málaga.
- ayer
- 163 m2
- 2.852,76 €/m2
- 4
- 3
Global Spain
Contactar
Compartir
Tu opinión


















