Apartamento en venta en Marbella zona Los Monteros
Datos básicos
- NB-96771
- 679.000 € (antes 759.000 €)
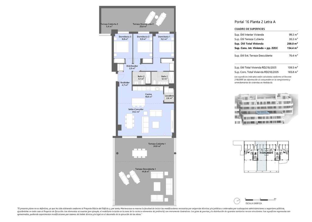
- 125 m2(5.432 €/m2)
- Málaga
- Marbella
- Los Monteros
Distribución e instalaciones
- 3
- 2
Varios
- Sí
Certificado energético
Detalles
679.000 € 759.000 €
COMPLEJO RESIDENCIAL DE OBRA NUEVA EN MARBELLA
Complejo residencial único de nueva construcción de 39 apartamentos y dúplex de 2, 3 y 4 dormitorios situado en Marbella, en una zona privilegiada de Altos de Los Monteros.
Naturaleza, vistas de ensueño, tranquilidad, ubicación de lujo... Descubra un nuevo estilo de vida en este lugar único.
Hay dos palabras que evocan a la perfección el innovador concepto de este complejo residencial: luz y vistas. En torno a estas dos palabras gira el diseño de los 39 apartamentos y áticos dúplex con solarium de este exclusivo residencial. Gracias a su excepcional ubicación, en la zona alta de Los Monteros, a sólo 10 minutos del centro de Marbella, aquí encontrará la tranquilidad y la vida de resort que siempre ha soñado.
Cuando se trata de su hogar, el espacio es lo más importante. Por eso hemos diseñado espacios amplios y diáfanos con cocinas de planta abierta y elementos de primera calidad en baños y dormitorios. La sensación de amplitud de las estancias se ve acentuada por la continuidad entre la terraza y el salón, que podrá personalizar a su gusto si lo desea.
Imagínese llegar a casa después de un largo día, ¿qué tal relajarse en el spa? O liberar adrenalina y quemar calorías en la zona de fitness con terraza al aire libre. O tomar una copa en el bar de la piscina. Imagina que no tuvieras que salir del complejo residencial para trabajar y pudieras hacerlo en su zona de coworking.
Mar, montaña, naturaleza, cultura, pueblos escondidos entre encinas... Todo esto y mucho más es la Costa del Sol. Sus más de 320 días de sol al año hacen que quienes la visitan siempre quieran volver. La Costa del Sol es conocida como la Costa del Golf entre los amantes de este deporte, gracias a sus más de 40 campos de golf. La mitad de ellos se encuentran en Marbella.
505
- 7/02/2026
- 125 m2
- 5.432 €/m2
- 10.5%
- 3
- 2
Buy in Spain
Contactar
Compartir
Tu opinión


































