Apartamento en venta en Marbella zona San Pedro de Alcántara

18
Apartamento en venta en Marbella zona San Pedro de Alcántara
Datos básicos
  • SP-42868
  • 725.000
  • 125 m2(5.800 €/m2)
  • Málaga
  • Marbella
  • San Pedro de Alcántara
Distribución e instalaciones
  • 4
  • 2
Varios
Certificado energético
  • B
Detalles
725.000
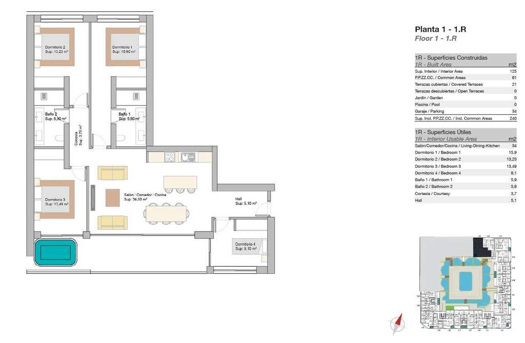
Apartamentos de lujo de nueva construcción en Marbella Oeste: elegante vida costera cerca de Puerto Banús Una promoción emblemática en el nuevo distrito de Marbella Oeste Descubra un exclusivo proyecto residencial situado en Marbella Oeste, un nuevo distrito diseñado para establecer nuevos estándares en la vida urbana sostenible en la Costa del Sol. Situado entre Nueva Andalucía y San Pedro de Alcántara, este complejo se encuentra a solo 1,4 km de la playa y a poca distancia en coche del prestigioso puerto deportivo de Puerto Banús. El distrito de Marbella Oeste combina amplios espacios verdes, servicios públicos, hostelería de lujo, colegios de primer nivel y una arquitectura de baja altura que preserva las vistas y la luz natural, ofreciendo un estilo de vida que equilibra la sofisticación y la serenidad. Apartamentos exclusivos con diseño contemporáneo Esta comunidad cerrada cuenta con 101 residencias de nueva construcción que van desde elegantes estudios hasta amplios apartamentos de 4 dormitorios. Diseñadas cuidadosamente para maximizar la luz natural y la vida al aire libre, todas las viviendas cuentan con interiores diáfanos y amplias terrazas. Los tipos de propiedades incluyen: Apartamentos en planta baja con jardines privados y algunas unidades con piscinas estilo playa Áticos de lujo con terrazas panorámicas en la azotea y piscinas privadas Todas las unidades cuentan con acabados de alta calidad y distribuciones luminosas y espaciosas. Servicios de estilo resort premium Cada elemento de la urbanización está creado para mejorar el bienestar y la comodidad. Los residentes disfrutarán de una amplia gama de lujosas instalaciones comunes, entre las que se incluyen: Piscina infinita en la azotea con vistas panorámicas. Piscina estilo playa con arena a nivel del jardín. Piscina cubierta climatizada y gimnasio totalmente equipado. Zona de spa con sauna y vestuarios. Club social y espacio de coworking Seguridad, conserje y recepción las 24 horas Jardines mediterráneos Aparcamiento subterráneo con puntos de recarga para vehículos eléctricos y trasteros privados Ubicación privilegiada con excelentes comunicaciones Estratégicamente situado, el proyecto ofrece un acceso inmejorable a los principales puntos de interés de Marbella: Puerto Banús: 4 km San Pedro de Alcántara: 2 km Nueva Andalucía: 3 km La Quinta Golf: 4,5 km Guadalmina Golf: 5 km Centro de Marbella: 10 km Aeropuerto de Málaga: 60 km (aprox. 40 minutos por autopista directa) Una inversión inteligente en el corazón de la Costa del Sol Esta promoción es más que una residencia, es un estilo de vida. Tanto si busca una vivienda para todo el año, un refugio vacacional o una inversión con gran potencial, este complejo le ofrece elegancia, tranquilidad y comodidad en una de las nuevas zonas más prometedoras de Marbella. Póngase en contacto con nosotros hoy mismo para concertar una visita privada y asegurarse su lugar en esta nueva y exclusiva promoción. 425
  • hace 5 días
  • 125 m2
  • 5.800 €/m2
  • 4
  • 2
Contactar
Compartir
Tu opinión
×Esta web utiliza cookies técnicas, de personalización y análisis, propias y de terceros, para facilitarle la navegación de forma anónima y analizar estadísticas del uso de la web. Consideramos que si continúa navegando, acepta su uso. Más información.