Casa en venta en Marbella zona Rio Real Golf
Datos básicos
- SP-57849
- 1.790.000 €
- 217 m2(8.249 €/m2)
- Málaga
- Marbella
- Rio Real Golf
Distribución e instalaciones
- 4
- 5
Varios
- Sí
Certificado energético
- B
Detalles
1.790.000 €
Lujosas casas adosadas de nueva construcción en Río Real, Marbella
Comunidad exclusiva con servicios de primera
Enclavada en la prestigiosa urbanización Río Real de Marbella, esta impresionante promoción ofrece 27 casas adosadas y pareadas, diseñadas para ofrecer la combinación perfecta de lujo y confort. Estas opulentas viviendas cuentan con amplios interiores, jardines privados y piscinas privadas en la azotea con solárium, todo ello complementado con espectaculares vistas al mar Mediterráneo.
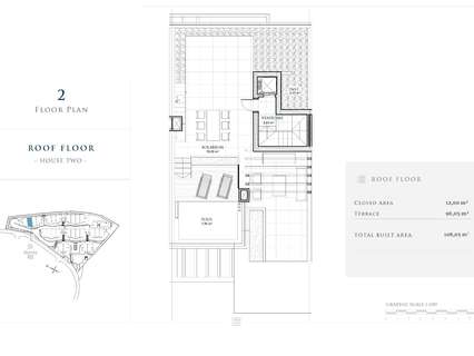
El solárium de la planta superior con piscina privada y solárium es el lugar perfecto para relajarse y disfrutar del glorioso sol de Marbella.
Diseño y distribución elegantes
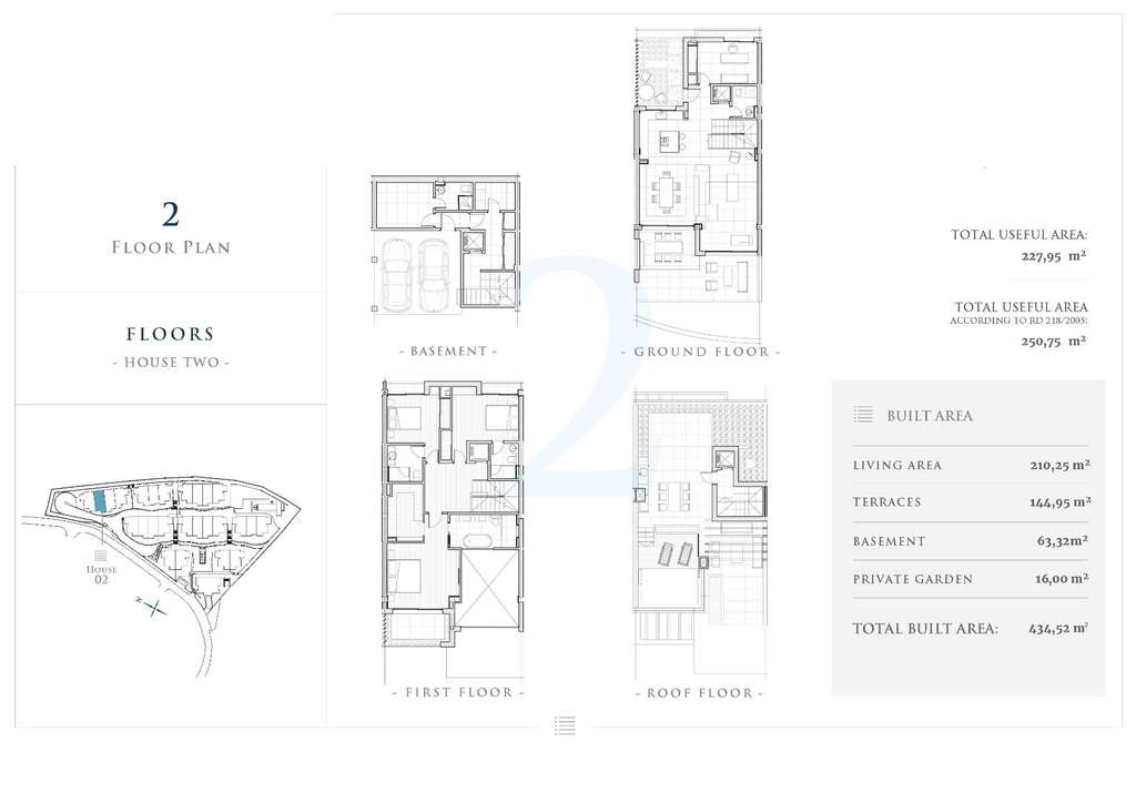
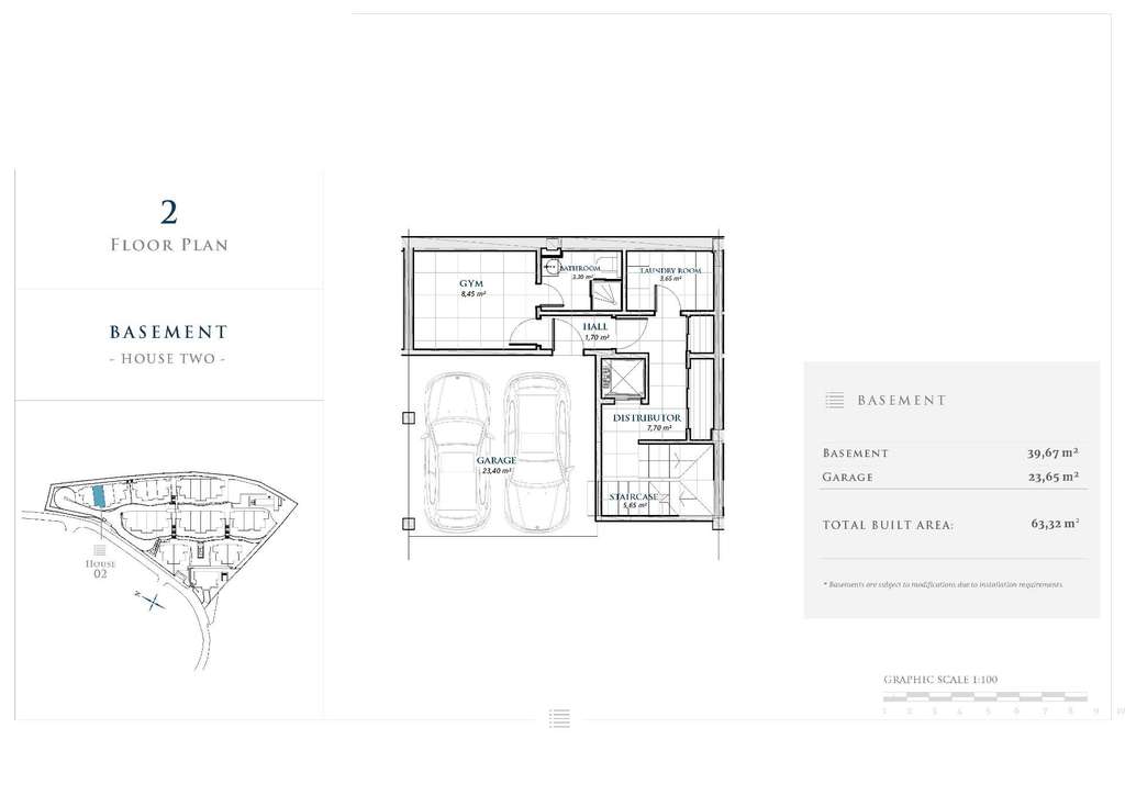
Cada casa cuenta con un diseño de varios niveles, lo que le permite disfrutar plenamente de vistas panorámicas al mar desde varios puntos de la propiedad. Con dos opciones de distribución disponibles, elija entre viviendas de 4 ó 5 dormitorios distribuidas en sótano, planta baja, primera planta y solárium. Los amplios interiores cuentan con acabados de alta gama, grandes ventanales y diseños de planta abierta, que combinan a la perfección los espacios interiores y exteriores. Además, cada vivienda incluye un garaje subterráneo privado para mayor comodidad.
Servicios de primera clase en una ubicación privilegiada
El complejo está diseñado con un enfoque en el bienestar y el ocio, ofreciendo una variedad de servicios comunes, incluyendo:
Una piscina exterior rodeada de exuberantes jardines.
Un gimnasio totalmente equipado para mantener su estilo de vida activo.
Una sauna y un baño turco para su máxima relajación.
Una sala de masajes para mejorar su bienestar. Espacio de trabajo conjunto.
Senderos que facilitan el acceso a todas las viviendas.
Proximidad a puntos de interés clave
Situada a sólo 5 minutos de la inmaculada playa de Río Real, esta comunidad le sitúa cerca de algunas de las atracciones y servicios más codiciados de Marbella:
Marbella centro: 10 km
Puerto deportivo de Puerto Banús: 16 km
Club de Golf Santa Clara: 3 km
Centro Comercial La Cañada: 8 km
Aeropuerto de Málaga: 50 km
Esta excepcional ubicación combina la tranquilidad de Río Real con un fácil acceso al vibrante estilo de vida de Marbella, famosa por sus excelentes restaurantes, tiendas de lujo y opciones de ocio de clase mundial.
Viviendas listas para entrar a vivir
Estas casas adosadas están listas para entrar a vivir, ofreciéndole la oportunidad de disfrutar inmediatamente de un estilo de vida sin igual en una de las zonas más prestigiosas de Marbella.
Programe su visita hoy mismo
Descubra la combinación perfecta de lujo, confort y comodidad en Río Real. Póngase en contacto con nosotros para concertar una visita y asegurarse la casa de sus sueños en Marbella.
- ayer
- 217 m2
- 8.248,85 €/m2
- 4
- 5
Global Spain
Contactar
Compartir
Tu opinión















