Villa en venta en Marbella zona Nueva Andalucía
Datos básicos
- NB-46533
- 5.950.000 €
- 461 m2(12.907 €/m2)
- Málaga
- Marbella
- Nueva Andalucía
Distribución e instalaciones
- 5
- 5
Varios
- Sí
Certificado energético
Detalles
5.950.000 €
VILLAS DE LUJO DE OBRA NUEVA CERCA DE MARBELLA
Ubicado en el ilustre enclave de Nueva Andalucía, el nuevo proyecto ofrece a los residentes una escapada de lujo que encarna la verdadera esencia de la vida de lujo. Gracias a su privilegiada ubicación en Nueva Andalucía, los residentes pueden acceder cómodamente a una plétora de servicios cercanos, así como disfrutar de unas impresionantes vistas de las montañas y el mar circundantes. La urbanización es un santuario de innovación y lujo, testimonio de la sinergia entre el diseño moderno y la elegancia atemporal. Los residentes disfrutarán de un estilo de vida elevado, con los mejores elementos de arquitectura, seguridad y personalización combinados.
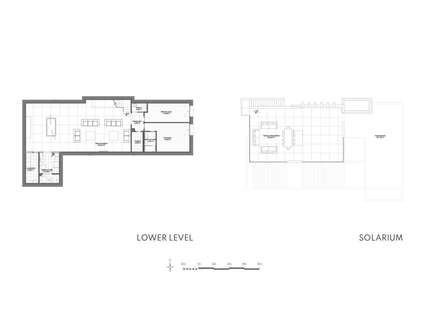
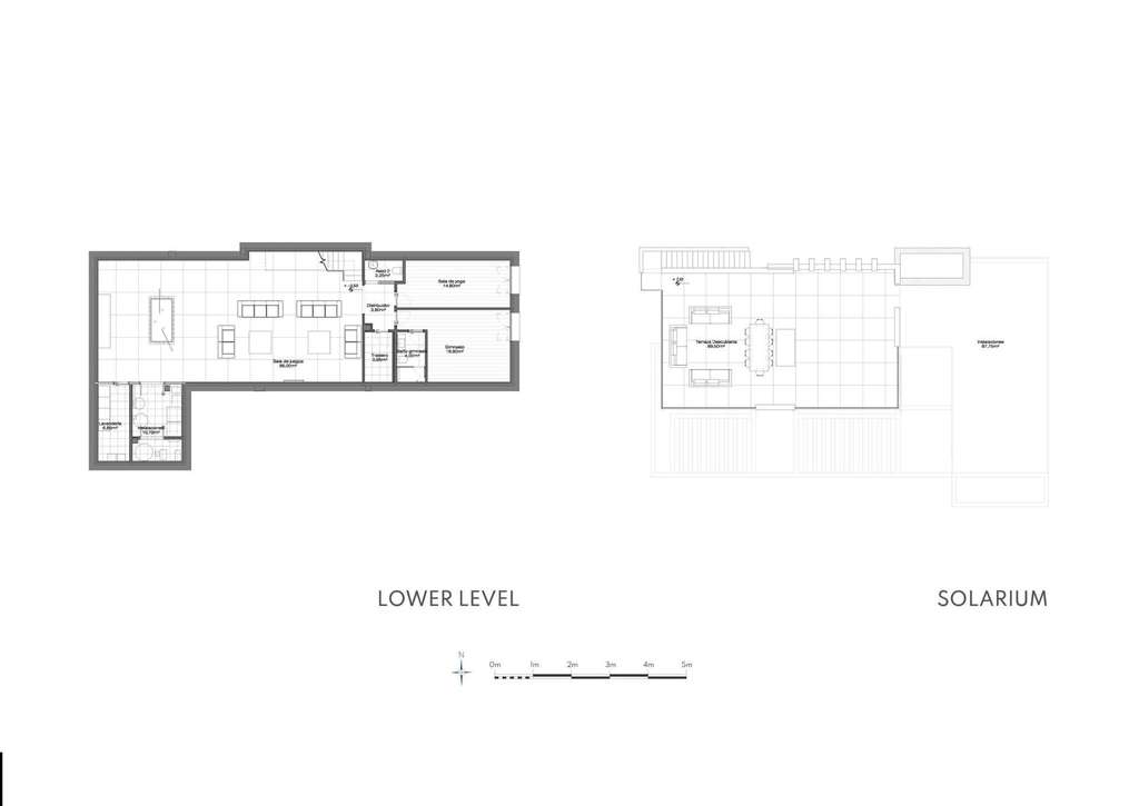
Este proyecto visionario redefine el concepto de urbanización moderna, ofreciendo un estilo de vida sin igual caracterizado por el refinamiento, la seguridad y el ingenio en el diseño. Compuesta por una colección de 26 villas de lujo de nueva construcción, la urbanización presenta una armoniosa mezcla de brillantez arquitectónica y elegancia funcional. Diseñadas por el visionario arquitecto Ismael Mérida, las villas se erigen como modernas maravillas, cada una de ellas abarcando tres niveles, incluyendo un solarium y un sótano, todos unidos por una planta baja. Orientadas hacia los puntos cardinales Sur, Este, Sureste y Oeste, las villas abrazan el recorrido del sol, proyectando encantadoras tonalidades y sombras a lo largo del día.
Lo que realmente distingue a este proyecto es su innovador enfoque de la circulación de vehículos. Debajo de las residencias, una avenida ingeniosamente diseñada acomoda el flujo de coches, así como el acceso a cocheras y garajes privados, discretamente ocultos a la vista. Desde una perspectiva aérea, lo que llama la atención no es una red de carreteras, sino una red de caminos peatonales y exuberantes paisajes, con vehículos escondidos debajo que conectan con garajes y cocheras. Esta cautivadora característica no sólo realza el atractivo estético, sino que también fomenta una atmósfera de serenidad.
Inmersa en la tranquilidad de una comunidad cerrada con vigilancia de seguridad las 24 horas, la urbanización garantiza un entorno de total tranquilidad. Un guardia de seguridad apostado en la entrada añade una capa adicional de seguridad y tranquilidad. Un único punto de entrada y salida no sólo mejora la seguridad, sino que también contribuye a la sensación de aislamiento y privacidad que define a este exclusivo enclave. Los residentes pueden estar seguros de que sólo ellos tendrán acceso a la comunidad, y a los invitados se les concederá acceso previa aprobación.
La diversidad florece en esta urbanización con tres tipologías distintas. Las residencias pequeñas y medianas comparten una refinada similitud, mientras que las villas más grandes de doble parcela ofrecen una vida expansiva a gran escala. Hay disponibles paquetes de mejora que permitirán a los residentes adaptar su villa a sus deseos precisos. 23 de estas casas cuentan con una armoniosa simetría en tamaño, proporcionando un ambiente consistente y acogedor en toda la comunidad. Las 23 viviendas se dividen en 2 tipologías: La tipología A, diseñada por GC-Studio, y la tipología B, diseñada por J. A. Flores. Añadiendo una capa adicional de distinción, 3 emblemáticas villas se erigen como hitos icónicos de prestigio, cada una exudando su propio encanto único. Estas 3 villas están clasificadas como Tipología C, diseñada por Pedro Peña. Todas las villas no sólo tienen sus propios servicios a medida, como salas de entretenimiento, home cinemas y gimnasios en casa, sino que también tienen acceso a servicios comunes como un increíble gimnasio y un SPA de última generación con piscina cubierta, hammam, sauna y baño de hielo.
Las villas de la tipología A comprenden residencias de menor tamaño, cada una caracterizada por un impecable diseño interior comisariado por el renombrado estudio de diseño GC-Studio. Estas villas se clasifican a su vez en dos subtipos, A1 y A2. Las diferencias entre estas tipolog...
- 30/10/2025
- 461 m2
- 12.906,72 €/m2
- 5
- 5
Buy in Spain
Contactar
Compartir
Tu opinión























